Eladó Ház- házrész
Hirdetéskód: 9270602
Duna House - Új-Lak Bázis Kft.
94.00 m2
ALAPTERÜLET4
SZOBASZÁMnincs megadva
ÉPÍTÉSnincs megadva
FŰTÉS- CSOK igénybe vehető nem
- Tetőtér beépíthető nem
- Építés éve 2026
- Klíma nem
- Szigetelt nem
A+++
A++
A+
A
B
C
D
E
F
G
H
I
Az ingatlan leírása
MENDE PUSZTASZENTISTVÁNI RÉSZÉN ÚJ ÉPÍTÉSŰ, 3 SZOBÁS OTTHON SAJÁT KERTTEL!
Ikerház: HÁTSÓ HÁZ
Vasútállomáshoz közel, mégis csendes, nyugodt környezetben!
Mendén, a közkedvelt Pusztaszentistváni részen, a vasútállomástól nem messze de kellő távolságra ahhoz, hogy a vonatok zaja ne legyen zavaró kínálok megvételre egy nettó 94 m²-es, új építésű, kiváló elosztású családi otthont.
A 981 m²-es telken elhelyezkedő hátsó ingatlanhoz 350 m² kizárólagos használatú kert tartozik tökéletes választás pihenéshez, kerti sütögetéshez, medencéhez vagy akár mobilgarázs kialakításához.
Itt valóban megvan az intimitás és a nyugalom!
MŰSZAKI TARTALOM IDŐTÁLLÓ MINŐSÉG
30 cm-es nútféderes tégla falazat
Fa födém
Antracit betoncserép fedés
15 cm EPS homlokzati szigetelés
10 cm Austrotherm padlószigetelés
25 cm ásványgyapot födémszigetelés
6 légkamrás, 3 rétegű üvegezésű nyílászárók
MODERN, GAZDASÁGOS FŰTÉS
10 kW-os monoblokkos hőszivattyú
Teljes körű padlófűtés
Alacsony fenntartás, korszerű megoldások.
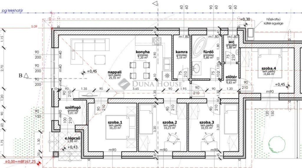
PRAKTIKUS, CSALÁDBARÁT ELRENDEZÉS
3 tágas szoba
Amerikai konyhás nappali
Fürdőszoba + külön WC
Külön háztartási helyiség
Átgondolt alaprajz, élhető terek.
VÁLASZTHATÓ BURKOLATOK ÉS SZANITEREK (KÖLTSÉGKERETEN BELÜL)
Hideg- és melegburkolatok: 5.000 Ft/m²-ig
Csaptelepek: 25.000 Ft/db
Kád vagy zuhany: 70.000 Ft
Beltéri ajtók: 50.000 Ft/db
Falsík mögötti WC rendszer
Magasabb kategória is választható, különbözet ráfizetésével.
ELEKTROMOS KIÉPÍTÉS
Szobákban: 3-3 konnektor
Nappaliban: 4 konnektor + internet + kábel TV
Konyhában: 6 konnektor
Helyiségenként világítási kiállás
Kábel TV előkészítés
Riasztó- és kapumozgató elektronika előkészítés
MEGBÍZHATÓ KIVITELEZŐ
A kivitelező Kókán,Sülysápon, több mint 30 ingatlant épített.
Referenciaházakat komoly érdeklődés esetén szívesen mutatok!
Várható átadás: 2026. SZEPTEMBER-OKTÓBER
Ha szeretné biztos, értékálló helyen tudni családja új otthonát Mendén, hívjon bizalommal!
Nézzük meg együtt leendő ÚJ OTTHONÁT!
Független hitelügyintézővel is segítem a vásárlást.
Ikerház: HÁTSÓ HÁZ
Vasútállomáshoz közel, mégis csendes, nyugodt környezetben!
Mendén, a közkedvelt Pusztaszentistváni részen, a vasútállomástól nem messze de kellő távolságra ahhoz, hogy a vonatok zaja ne legyen zavaró kínálok megvételre egy nettó 94 m²-es, új építésű, kiváló elosztású családi otthont.
A 981 m²-es telken elhelyezkedő hátsó ingatlanhoz 350 m² kizárólagos használatú kert tartozik tökéletes választás pihenéshez, kerti sütögetéshez, medencéhez vagy akár mobilgarázs kialakításához.
Itt valóban megvan az intimitás és a nyugalom!
MŰSZAKI TARTALOM IDŐTÁLLÓ MINŐSÉG
30 cm-es nútféderes tégla falazat
Fa födém
Antracit betoncserép fedés
15 cm EPS homlokzati szigetelés
10 cm Austrotherm padlószigetelés
25 cm ásványgyapot födémszigetelés
6 légkamrás, 3 rétegű üvegezésű nyílászárók
MODERN, GAZDASÁGOS FŰTÉS
10 kW-os monoblokkos hőszivattyú
Teljes körű padlófűtés
Alacsony fenntartás, korszerű megoldások.
PRAKTIKUS, CSALÁDBARÁT ELRENDEZÉS
3 tágas szoba
Amerikai konyhás nappali
Fürdőszoba + külön WC
Külön háztartási helyiség
Átgondolt alaprajz, élhető terek.
VÁLASZTHATÓ BURKOLATOK ÉS SZANITEREK (KÖLTSÉGKERETEN BELÜL)
Hideg- és melegburkolatok: 5.000 Ft/m²-ig
Csaptelepek: 25.000 Ft/db
Kád vagy zuhany: 70.000 Ft
Beltéri ajtók: 50.000 Ft/db
Falsík mögötti WC rendszer
Magasabb kategória is választható, különbözet ráfizetésével.
ELEKTROMOS KIÉPÍTÉS
Szobákban: 3-3 konnektor
Nappaliban: 4 konnektor + internet + kábel TV
Konyhában: 6 konnektor
Helyiségenként világítási kiállás
Kábel TV előkészítés
Riasztó- és kapumozgató elektronika előkészítés
MEGBÍZHATÓ KIVITELEZŐ
A kivitelező Kókán,Sülysápon, több mint 30 ingatlant épített.
Referenciaházakat komoly érdeklődés esetén szívesen mutatok!
Várható átadás: 2026. SZEPTEMBER-OKTÓBER
Ha szeretné biztos, értékálló helyen tudni családja új otthonát Mendén, hívjon bizalommal!
Nézzük meg együtt leendő ÚJ OTTHONÁT!
Független hitelügyintézővel is segítem a vásárlást.