Eladó Ház- házrész
Hirdetéskód: 9301575
GDN Ingatlanhálózat - KANKALIN Ingatlaniroda
Felújításhoz személyi kölcsönt keres? Kalkuláljon itt! →110.00 m2
ALAPTERÜLET4
SZOBASZÁMnincs megadva
ÉPÍTÉSGáz (cirkó)
FŰTÉS- CSOK igénybe vehető nem
- Tetőtér beépíthető nem
- Fűtés Gáz (cirkó)
- Klíma nem
- Szigetelt nem
A+++
A++
A+
A
B
C
D
E
F
G
H
I
Az ingatlan leírása
Eladó egy önálló családi ház Mende, Pusztaszentistván legszebb részén, lenyűgöző zöldövezetben, csendes utcában.
Az épület a 90-es években beton alapra, tégla falazattal épült, külső szigeteléssel ellátott, betoncserép tetőzettel rendelkezik (110 nm). A parkosított kertben (885 nm) medence, a kert végében kutya kennel, tárolók és baromfi tartásra kialakított alkalmas udvarrész is található a málna, eper és veteményes kert mellett. Az előkertben egy fedett autóbeálló valamint még egy gépkocsi beálló is található.
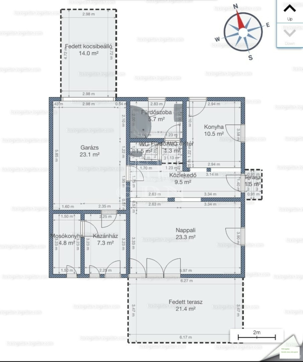
Az ingatlanba lépve az egy légtérben található közlekedő, konyha-étkező, nappali részre érkezünk. Innen nyílik egy sarokkádas fürdőszoba, egy mellékhelyiség, a lépcsőház az emeletre, illetve a házban lévő fűtött garázs felőli bejárat. A nagyméretű műanyag ablakoknak köszönhetően az egész élettér világos és barátságos. A nappaliból egy fedett terasz biztosítja a kertkapcsolatot. Az emeleti szinten két félszoba, egy fürdő w.c.-vel, valamint egy erkélyes hálószoba kapott helyet, kilátással a Gödöllői dombságra. A garázson keresztül érhető el a mosókonyha és kazánház ahonnan szintén kiléphetünk a kertbe, valamint a nagyméretű spájz is.
Az épület fűtését radiátoron keresztül gázkazán, elektromos kazán biztosítja, valamint a nappaliban található gázkandalló.
Az ár tartalmazza a teljes, igényes belső berendezést valamint a kerthez tartozó összes berendezést!!!
Mende település a 31-es főút mentén található az agglomerációban, Budapest határától 15 km-re a központtól 35 km-re. Csendes, barátságos kisváros 4250 fős lélekszámmal. Megközelíthető elővárosi vasúttal (Kelti pu) és busszal (Stadion busz pu) is. Településen belül helyi járat üzemel. Közelben bölcsőde, óvoda található.
Ez az a hely, ahol az őzek, nyulak, fácánok napi vendégek ahol a csend és nyugalom nem csak egy hangzatos szólam.
Amennyiben valódi nyugalomra vágyik itt megtalálja. ...TOVÁBBI, TÖBBEZRES INGATLAN KÍNÁLAT: - GDN azonosító: 393780
Az épület a 90-es években beton alapra, tégla falazattal épült, külső szigeteléssel ellátott, betoncserép tetőzettel rendelkezik (110 nm). A parkosított kertben (885 nm) medence, a kert végében kutya kennel, tárolók és baromfi tartásra kialakított alkalmas udvarrész is található a málna, eper és veteményes kert mellett. Az előkertben egy fedett autóbeálló valamint még egy gépkocsi beálló is található.
Az ingatlanba lépve az egy légtérben található közlekedő, konyha-étkező, nappali részre érkezünk. Innen nyílik egy sarokkádas fürdőszoba, egy mellékhelyiség, a lépcsőház az emeletre, illetve a házban lévő fűtött garázs felőli bejárat. A nagyméretű műanyag ablakoknak köszönhetően az egész élettér világos és barátságos. A nappaliból egy fedett terasz biztosítja a kertkapcsolatot. Az emeleti szinten két félszoba, egy fürdő w.c.-vel, valamint egy erkélyes hálószoba kapott helyet, kilátással a Gödöllői dombságra. A garázson keresztül érhető el a mosókonyha és kazánház ahonnan szintén kiléphetünk a kertbe, valamint a nagyméretű spájz is.
Az épület fűtését radiátoron keresztül gázkazán, elektromos kazán biztosítja, valamint a nappaliban található gázkandalló.
Az ár tartalmazza a teljes, igényes belső berendezést valamint a kerthez tartozó összes berendezést!!!
Mende település a 31-es főút mentén található az agglomerációban, Budapest határától 15 km-re a központtól 35 km-re. Csendes, barátságos kisváros 4250 fős lélekszámmal. Megközelíthető elővárosi vasúttal (Kelti pu) és busszal (Stadion busz pu) is. Településen belül helyi járat üzemel. Közelben bölcsőde, óvoda található.
Ez az a hely, ahol az őzek, nyulak, fácánok napi vendégek ahol a csend és nyugalom nem csak egy hangzatos szólam.
Amennyiben valódi nyugalomra vágyik itt megtalálja. ...TOVÁBBI, TÖBBEZRES INGATLAN KÍNÁLAT: - GDN azonosító: 393780