Eladó Ház- házrész
Hirdetéskód: 9242388
Fővállalkozó Balla és Balla Kft
Felújításhoz személyi kölcsönt keres? Kalkuláljon itt! →
Ez a hirdetés megfelelhet a FIX 3%-os programnak.
Tudj meg többet a részletekről itt.
117.00 m2
ALAPTERÜLET2
SZOBASZÁMnincs megadva
ÉPÍTÉSnincs megadva
FŰTÉS- CSOK igénybe vehető nem
- Tetőtér beépíthető nem
- Építés éve 2025
- Klíma nem
- Szigetelt nem
A+++
A++
A+
A
B
C
D
E
F
G
H
I
Az ingatlan leírása
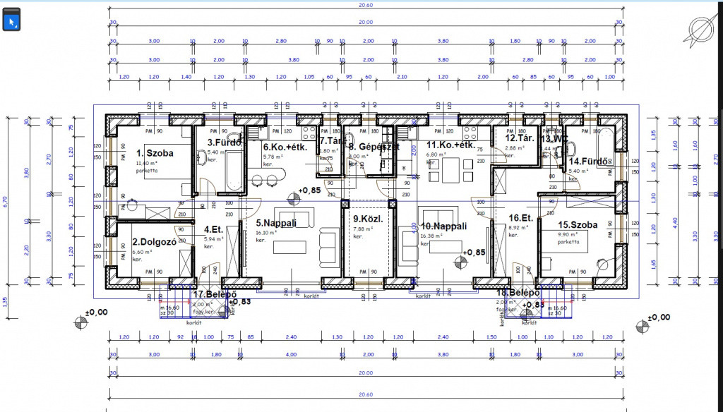
Mendén: 2 lakrész 1 szinten – szinte készen – szép helyen!
Eladó egy új építésű, befejezésre váró földszintes családi házzal, Mende nyugodt, mégis jól megközelíthető részén, gyönyörű kilátással.
A környezet átmenőforgalomtól mentes, az egyik oldalon lakóház, a másikon természet. Kirándulásra csábító, zöld környezet, a közelben lovarda, a buszmegálló néhány perc sétára található.
________________________________________
Telek
– 1334 nm, közel vízszintes
– tágas, jól használható, ritka adottság
Épület
– 117 nm-es, földszintes ház
– két lakrész kialakítására alkalmas elrendezés
– új építésű, befejezésre váró állapot
– belső ajtók, burkolatok, szaniterek kialakítása az új tulajdonosra vár
Műszaki tartalom
– levegős hőszivattyús fűtés
– padlófűtés, mennyezetfűtés és mennyezethűtés
– 15 cm külső hőszigetelés
– 3 rétegű üvegezésű nyílászárók
– riasztórendszer
________________________________________
Ez az ingatlan tudatosan megépített alap, ahol a korszerű műszaki tartalom már adott, a végső megjelenés pedig még az új tulajdonos elképzelései szerint formálható.
Ideális választás azoknak, akik nyugalmat, teret és természetközelséget keresnek kompromisszumok nélkül.
Eladó egy új építésű, befejezésre váró földszintes családi házzal, Mende nyugodt, mégis jól megközelíthető részén, gyönyörű kilátással.
A környezet átmenőforgalomtól mentes, az egyik oldalon lakóház, a másikon természet. Kirándulásra csábító, zöld környezet, a közelben lovarda, a buszmegálló néhány perc sétára található.
________________________________________
Telek
– 1334 nm, közel vízszintes
– tágas, jól használható, ritka adottság
Épület
– 117 nm-es, földszintes ház
– két lakrész kialakítására alkalmas elrendezés
– új építésű, befejezésre váró állapot
– belső ajtók, burkolatok, szaniterek kialakítása az új tulajdonosra vár
Műszaki tartalom
– levegős hőszivattyús fűtés
– padlófűtés, mennyezetfűtés és mennyezethűtés
– 15 cm külső hőszigetelés
– 3 rétegű üvegezésű nyílászárók
– riasztórendszer
________________________________________
Ez az ingatlan tudatosan megépített alap, ahol a korszerű műszaki tartalom már adott, a végső megjelenés pedig még az új tulajdonos elképzelései szerint formálható.
Ideális választás azoknak, akik nyugalmat, teret és természetközelséget keresnek kompromisszumok nélkül.