Eladó Ház- házrész
Hirdetéskód: 9265828
GDN Ingatlanhálózat - Vác
86.00 m2
ALAPTERÜLET2
SZOBASZÁMnincs megadva
ÉPÍTÉSGáz (cirkó)
FŰTÉS- CSOK igénybe vehető nem
- Tetőtér beépíthető nem
- Fűtés Gáz (cirkó)
- Klíma nem
- Szigetelt nem
A+++
A++
A+
A
B
C
D
E
F
G
H
I
Az ingatlan leírása
Eladó 2 szobás felújított családi ház Mátraszelén – bővítési lehetőséggel!
Eladásra kínálunk egy 86 m2-es felújított házat a Mátra északi lábánál lévő dombvidéken, Mátraszelén.
Az erdő szélén fekvő, 907 m2-es, az utca felé enyhén lejtős telekre épült ingatlan a falu egyik kicsi aszfaltozott zsákutcájában található, víz, villany, gáz és csatorna rendelkezésre áll.
Az kő alapra épült régi vályogház magas lábazati fallal rendelkezik, így a felújításkor a száraz, jó állapotú, 40-50 cm-es falakat és a födémet megtartották. A belső helyiségek aljzatát szigetelték, belső válaszfalakat az új tervek alapján téglából készítették el.
Az épület teljesen új tetőszerkezete betoncseréppel fedett. Az elektromos- és vízvezetékek cseréje megtörtént. A ház régi ablakai helyére újak kerültek: a vályogtégla falak esetén zsalugáteres fa ablakok, a téglafalaknál műanyag ablakok.
A szobákban meleg, természetes hatású vörösfenyő padló, a közös terekben pedig padlófűtésre alkalmas, esztétikus járólap található.
A fűtés kondenzációs gázkazánnal történik padlófűtéses és radiátoros hőleadó egységekkel. Kialakításra került egy modern zuhanyzó WC-vel és egy külön WC is. A ház hátsó, kert felé néző részében található a konyha, ahonnan az 50 m2-es teraszra van kijárat.
Többirányú tájolás: nappali ablakai Ny-i irányból kapnak napsütést, konyha-étkező K felé néz.
A ház bejáratát egy könnyűszerkezetes szélfogó védi, amihez egy kényelmes lépcsőn jutunk fel.
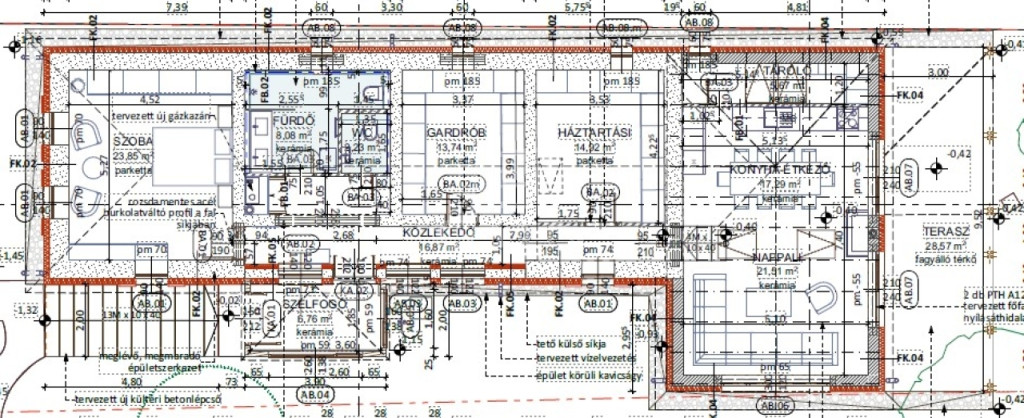
Helyiségek:
- Szélfogó: 6,76 m2
- Folyosó: 16,87 m2
- Nappali: 23,85 m2
- Hálószoba: 13,74 m2
- Fürdőszoba: 8,08 m2
- WC: 2,23 m2
- Konyha - Étkező: 14,92
A kapun belüli gyeprácsos parkolóhelyen 3 autó kényelmesen elfér. Az erdő felőli oldalon természetes földpart zárja le a telket, benne kialakított pincékkel. (1 nagyobb és 2 kisebb).
Az ősz folyamán sok új fát és cserjét ültettek el kertépítészeti terv alapján.
A 2023-ban kezdődött felújítást fotókkal dokumentálták.
A ház a jelenlegi készültségi szinten eladó, a befejezés az új tulajdonosra vár.
A ház engedélyes tervekkel rendelkezik 50 m2-rel történő bővítésre. Ennek az alapja már elkészült, ez a jelenlegi a terasz. Megvalósítás esetén ide kerülne a hangulatos amerikai-konyhás nappali, kandallóval, magas légtérrel – szintközi födém nélkül. Így összesen 130 m2-es, 3 szobás korszerű és stílusos állandó vagy második otthon kialakítására van lehetőség.
Falusi CSOK és CSOK+ is igényelhető.
A településen minden fontos intézmény és szolgáltatás megtalálható: orvosi rendelő, iskola, óvoda, posta, élelmiszerboltok, valamint kocsma és bisztró-pizzázó is működik.
A Palócföld peremén, erdős nógrádi dombok között fekvő, mintegy 900 fős falut a Zagyva szeli át. Természeti látnivalókban gazdag térség, népszerű túraútvonalak teszik vonzóvá a kirándulók számára. Számos horgásztó található erre max. 25 km-es távolságban, köztük a legismertebb a Maconkai-víztározó Bátonyterenyén. Budapest autóval kb. 70 perc alatt elérhető.
Ajánljuk ezt a házat azoknak, akik kedvelik és keresik a nyugalmat, és arra vágynak, hogy mindennapjaik természet közelségében, friss levegőn teljenek. Befektetésként vagy turisztikai hasznosítás szempontjából is megfontolandó választás.
A ház külső megjelenése és megőrzött állapota magában hordozza az itt eltöltött idő hangulatát.
Keressen minket, ha felkeltette érdeklődését ez a kikapcsolódásra ideális hely!
Amiben segíteni tudjuk ingatlanvásárlását:
- jogi háttér
- földhivatali ügyintézés
- ingyenes, bankfüggetlen hitelügyintézés (CSOK, Otthon Start, Babaváró ügyintézése is.)
- energetikai tanúsítvány elkészítése
- biztosítás
- belsőépítész ...TOVÁBBI, TÖBBEZRES INGATLAN KÍNÁLAT: - GDN azonosító: 391951
Eladásra kínálunk egy 86 m2-es felújított házat a Mátra északi lábánál lévő dombvidéken, Mátraszelén.
Az erdő szélén fekvő, 907 m2-es, az utca felé enyhén lejtős telekre épült ingatlan a falu egyik kicsi aszfaltozott zsákutcájában található, víz, villany, gáz és csatorna rendelkezésre áll.
Az kő alapra épült régi vályogház magas lábazati fallal rendelkezik, így a felújításkor a száraz, jó állapotú, 40-50 cm-es falakat és a födémet megtartották. A belső helyiségek aljzatát szigetelték, belső válaszfalakat az új tervek alapján téglából készítették el.
Az épület teljesen új tetőszerkezete betoncseréppel fedett. Az elektromos- és vízvezetékek cseréje megtörtént. A ház régi ablakai helyére újak kerültek: a vályogtégla falak esetén zsalugáteres fa ablakok, a téglafalaknál műanyag ablakok.
A szobákban meleg, természetes hatású vörösfenyő padló, a közös terekben pedig padlófűtésre alkalmas, esztétikus járólap található.
A fűtés kondenzációs gázkazánnal történik padlófűtéses és radiátoros hőleadó egységekkel. Kialakításra került egy modern zuhanyzó WC-vel és egy külön WC is. A ház hátsó, kert felé néző részében található a konyha, ahonnan az 50 m2-es teraszra van kijárat.
Többirányú tájolás: nappali ablakai Ny-i irányból kapnak napsütést, konyha-étkező K felé néz.
A ház bejáratát egy könnyűszerkezetes szélfogó védi, amihez egy kényelmes lépcsőn jutunk fel.
Helyiségek:
- Szélfogó: 6,76 m2
- Folyosó: 16,87 m2
- Nappali: 23,85 m2
- Hálószoba: 13,74 m2
- Fürdőszoba: 8,08 m2
- WC: 2,23 m2
- Konyha - Étkező: 14,92
A kapun belüli gyeprácsos parkolóhelyen 3 autó kényelmesen elfér. Az erdő felőli oldalon természetes földpart zárja le a telket, benne kialakított pincékkel. (1 nagyobb és 2 kisebb).
Az ősz folyamán sok új fát és cserjét ültettek el kertépítészeti terv alapján.
A 2023-ban kezdődött felújítást fotókkal dokumentálták.
A ház a jelenlegi készültségi szinten eladó, a befejezés az új tulajdonosra vár.
A ház engedélyes tervekkel rendelkezik 50 m2-rel történő bővítésre. Ennek az alapja már elkészült, ez a jelenlegi a terasz. Megvalósítás esetén ide kerülne a hangulatos amerikai-konyhás nappali, kandallóval, magas légtérrel – szintközi födém nélkül. Így összesen 130 m2-es, 3 szobás korszerű és stílusos állandó vagy második otthon kialakítására van lehetőség.
Falusi CSOK és CSOK+ is igényelhető.
A településen minden fontos intézmény és szolgáltatás megtalálható: orvosi rendelő, iskola, óvoda, posta, élelmiszerboltok, valamint kocsma és bisztró-pizzázó is működik.
A Palócföld peremén, erdős nógrádi dombok között fekvő, mintegy 900 fős falut a Zagyva szeli át. Természeti látnivalókban gazdag térség, népszerű túraútvonalak teszik vonzóvá a kirándulók számára. Számos horgásztó található erre max. 25 km-es távolságban, köztük a legismertebb a Maconkai-víztározó Bátonyterenyén. Budapest autóval kb. 70 perc alatt elérhető.
Ajánljuk ezt a házat azoknak, akik kedvelik és keresik a nyugalmat, és arra vágynak, hogy mindennapjaik természet közelségében, friss levegőn teljenek. Befektetésként vagy turisztikai hasznosítás szempontjából is megfontolandó választás.
A ház külső megjelenése és megőrzött állapota magában hordozza az itt eltöltött idő hangulatát.
Keressen minket, ha felkeltette érdeklődését ez a kikapcsolódásra ideális hely!
Amiben segíteni tudjuk ingatlanvásárlását:
- jogi háttér
- földhivatali ügyintézés
- ingyenes, bankfüggetlen hitelügyintézés (CSOK, Otthon Start, Babaváró ügyintézése is.)
- energetikai tanúsítvány elkészítése
- biztosítás
- belsőépítész ...TOVÁBBI, TÖBBEZRES INGATLAN KÍNÁLAT: - GDN azonosító: 391951