Eladó Ház- házrész
Hirdetéskód: 9180265
Velence Tópart utca 47 - OTP Ingatlanpont Iroda
1846 m2
ALAPTERÜLET5
SZOBASZÁMnincs megadva
ÉPÍTÉSnincs megadva
FŰTÉS- CSOK igénybe vehető nem
- Tetőtér beépíthető nem
- Építés éve 1982
- Klíma nem
- Szigetelt nem
A+++
A++
A+
A
B
C
D
E
F
G
H
I
Az ingatlan leírása
Martonvásár szívében, csendes környezetben eladó egy 137 nm-es, kétszintes, téglaépítésű családi ház egy 1 846 nm-es belterületi telken.
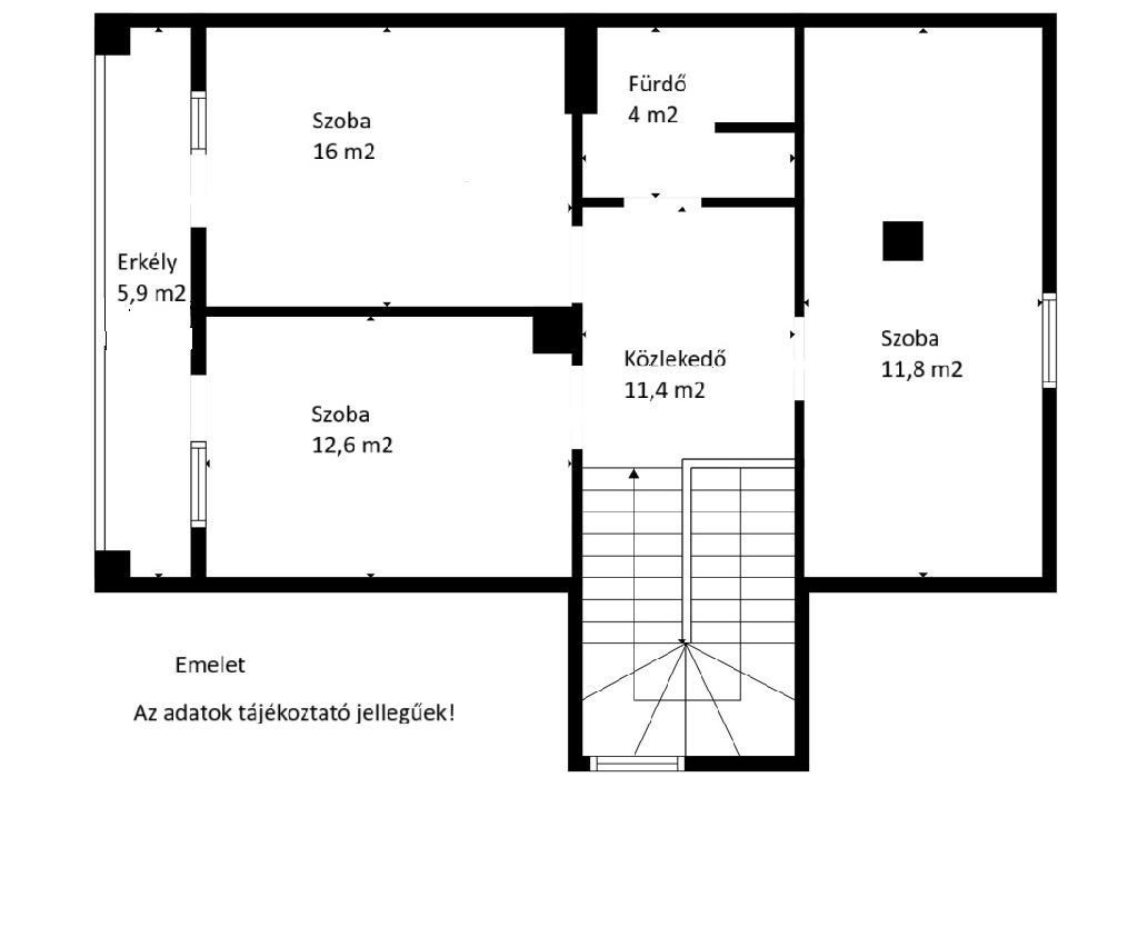
Az ingatlan 5 szobával, konyhával, kamrával, 2 fürdővel és wc-vel rendelkezik.
A földszinten hálószoba, tágas nappali étkezővel, konyha és fürdőszoba található, az emeleten további 3 szoba, erkélyek és egy fürdőszoba került kialakításra.
A ház 60 nm-es alápincézett résszel, fedett garázzsal és több parkolóhellyel rendelkezik, így nagyobb családok vagy több generáció együttélésére is kiváló.
Az épület összközműves, gázkazános, radiátoros fűtéssel ellátott. Belső tere részben felújítandó, így igény szerint alakítható.
A telek akár leválasztható, befektetésre is alkalmas.
Kiváló közlekedés: Budapest 15?20 perc, Székesfehérvár és Dunaújváros kb. 15 perc, Velencei-tó 10 perc alatt elérhető.
87500000 Ft
Az ingatlan 5 szobával, konyhával, kamrával, 2 fürdővel és wc-vel rendelkezik.
A földszinten hálószoba, tágas nappali étkezővel, konyha és fürdőszoba található, az emeleten további 3 szoba, erkélyek és egy fürdőszoba került kialakításra.
A ház 60 nm-es alápincézett résszel, fedett garázzsal és több parkolóhellyel rendelkezik, így nagyobb családok vagy több generáció együttélésére is kiváló.
Az épület összközműves, gázkazános, radiátoros fűtéssel ellátott. Belső tere részben felújítandó, így igény szerint alakítható.
A telek akár leválasztható, befektetésre is alkalmas.
Kiváló közlekedés: Budapest 15?20 perc, Székesfehérvár és Dunaújváros kb. 15 perc, Velencei-tó 10 perc alatt elérhető.
87500000 Ft