Eladó Ház- házrész
Hirdetéskód: 9252304
Velence Tópart utca 47 - OTP Ingatlanpont Iroda
Felújításhoz személyi kölcsönt keres? Kalkuláljon itt! →
Ez a hirdetés megfelelhet a FIX 3%-os programnak.
Tudj meg többet a részletekről itt.
117.00 m2
ALAPTERÜLET4
SZOBASZÁMnincs megadva
ÉPÍTÉSnincs megadva
FŰTÉS- CSOK igénybe vehető nem
- Tetőtér beépíthető nem
- Építés éve 2026
- Klíma nem
- Szigetelt nem
A+++
A++
A+
A
B
C
D
E
F
G
H
I
Az ingatlan leírása
Eladó új építésű családi ház Martonvásár központjában, mégis csendes környezetben!
Martonvásár frekventált, mégis nyugodt részén kínálunk megvételre egy új építésű, kétszintes családi házat, rendezett, nyeles telken, magánútról megközelíthető elhelyezkedéssel.
A telek 18 méter széles, közművesített (víz, villany a telken), a további közművek a főúton elérhetők. Boltok, intézmények, szolgáltatások 10 percen belül elérhetők.
A ház főbb jellemzői:
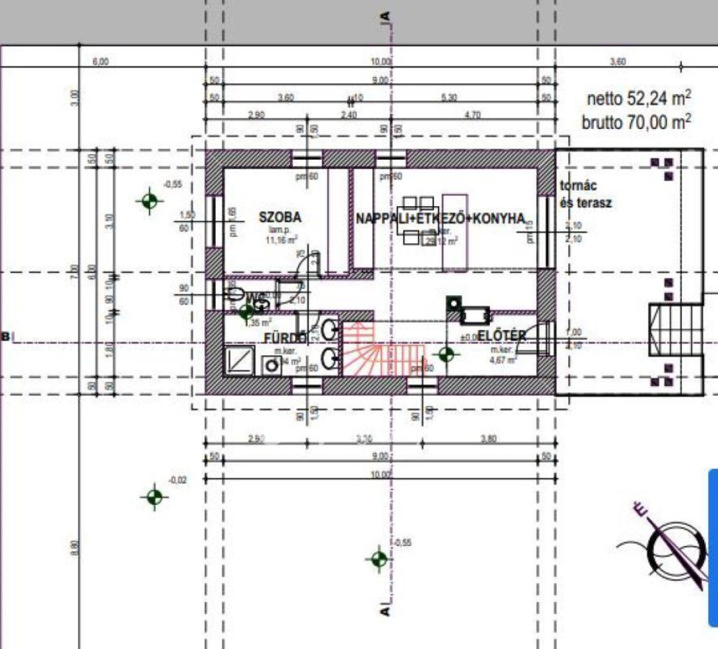
- Összes alapterület: 119,74 m2
- Kétszintes kialakítás, praktikus elosztás
- Választható burkolatok
- Választható külső szín
- Igény szerint módosítható tetőtér
Helyiségek elosztása:
Alsó szint:
- Nappali + konyha
- 1 hálószoba
- 1 fürdőszoba
- Külön WC
Felső szint (igény szerint kérhető tetőtér-módosítással):
- 3 hálószoba
- 1 fürdőszoba
Ár:
- Kulcsrakész kivitelezéssel: 144 millió Ft
- Telek + látványterv: 53,5 millió Ft
Fizetési ütemezés:
- 40% szerződéskötéskor
- 30% kivitelezés során
- 15% 80%-os készültségi foknál
- 15% kulcsátadáskor
Finanszírozás:
- CSOK igényelhető
- Otthon Start hitel felvehető
Az ingatlan ideális választás családoknak, akik modern, jól alakítható otthont keresnek kiváló lokációban, valamint befektetők számára is értékálló lehetőség.
További információért és tervekkel kapcsolatban várom megkeresését!
144000000 Ft
Martonvásár frekventált, mégis nyugodt részén kínálunk megvételre egy új építésű, kétszintes családi házat, rendezett, nyeles telken, magánútról megközelíthető elhelyezkedéssel.
A telek 18 méter széles, közművesített (víz, villany a telken), a további közművek a főúton elérhetők. Boltok, intézmények, szolgáltatások 10 percen belül elérhetők.
A ház főbb jellemzői:
- Összes alapterület: 119,74 m2
- Kétszintes kialakítás, praktikus elosztás
- Választható burkolatok
- Választható külső szín
- Igény szerint módosítható tetőtér
Helyiségek elosztása:
Alsó szint:
- Nappali + konyha
- 1 hálószoba
- 1 fürdőszoba
- Külön WC
Felső szint (igény szerint kérhető tetőtér-módosítással):
- 3 hálószoba
- 1 fürdőszoba
Ár:
- Kulcsrakész kivitelezéssel: 144 millió Ft
- Telek + látványterv: 53,5 millió Ft
Fizetési ütemezés:
- 40% szerződéskötéskor
- 30% kivitelezés során
- 15% 80%-os készültségi foknál
- 15% kulcsátadáskor
Finanszírozás:
- CSOK igényelhető
- Otthon Start hitel felvehető
Az ingatlan ideális választás családoknak, akik modern, jól alakítható otthont keresnek kiváló lokációban, valamint befektetők számára is értékálló lehetőség.
További információért és tervekkel kapcsolatban várom megkeresését!
144000000 Ft