Eladó Ház- házrész
Hirdetéskód: 9305300
Győr Bajcsy-Zsilinszky út 27 - OTP Ingatlanpont Iroda
Felújításhoz személyi kölcsönt keres? Kalkuláljon itt! →90.00 m2
ALAPTERÜLET4
SZOBASZÁMnincs megadva
ÉPÍTÉSGeotermikus
FŰTÉS- CSOK igénybe vehető nem
- Tetőtér beépíthető nem
- Építés éve 2025
- Fűtés Geotermikus
- Klíma nem
- Szigetelt nem
A+++
A++
A+
A
B
C
D
E
F
G
H
I
Az ingatlan leírása
Újépítésű, A++ energiabesorolású családi ház eladó - modern technológia termálvíz használattal, alacsony rezsi, kiváló lokáció!
Mosonmagyaróvár közvetlen határában van, de közigazgatásilag Máriakálnokhoz tartozik.
3%-os Otthon Start Program igényelhető!
CSOK igényelhető!
2026. májusi átadás - geotermikus vagy hőszivattyú, padlófűtés!
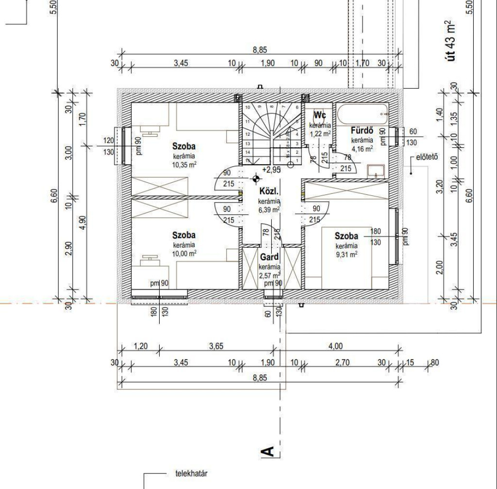
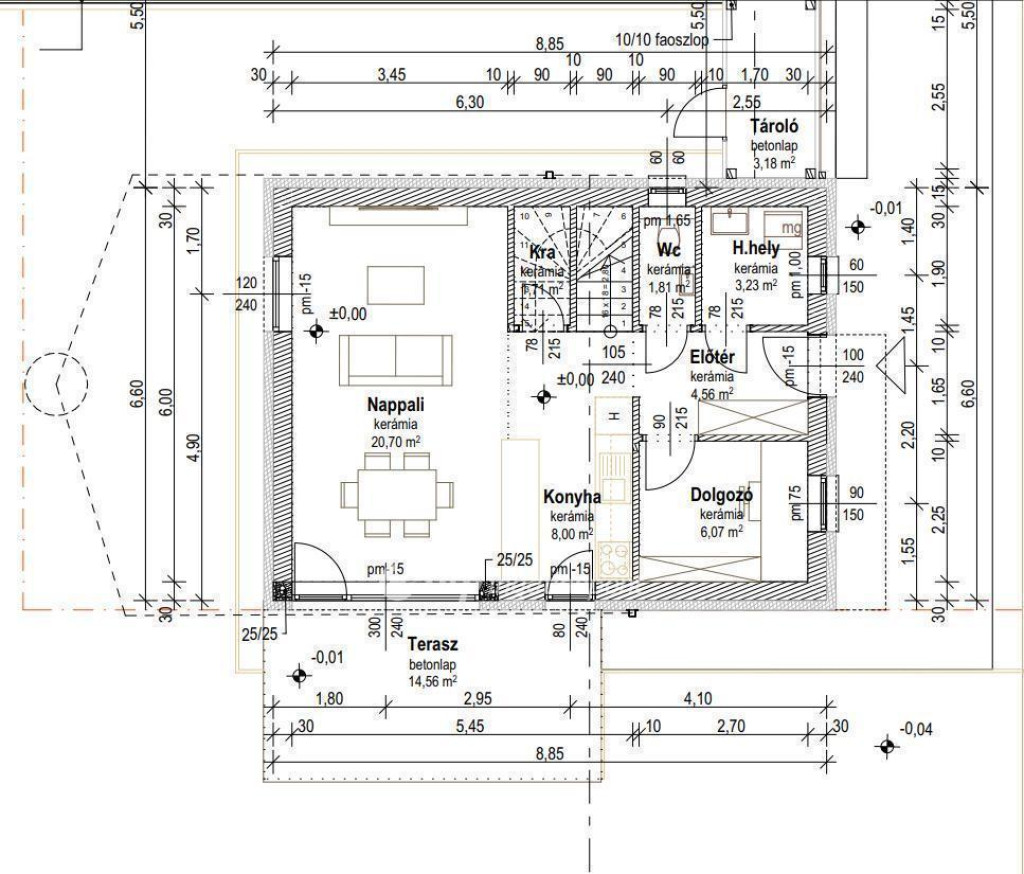
Hasznos alapterület: 90 nm | 4 + 1 szoba.
Telekterület: 315 nm.
Kétszintes, újépítésű családi ház.
Energetikai besorolás: A++.
Fűtés: geotermikus vagy hőszivattyú + padlófűtés, melegvíz ellátással.
Győr-Moson-Sopron megye egyik dinamikusan fejlődő, kedvelt környékén kínálok eladásra egy 2025-ben épülő, prémium műszaki tartalommal rendelkező, energiatakarékos családi házat.
A modern technológiáknak és a geotermikus fűtésnek köszönhetően minimális rezsiköltség, kimagasló komfort és hosszú távú értékállóság jellemzi az ingatlant.
Főbb jellemzők:
90 nm nettó alapterület.
315 nm saját telek.
4+1 szoba - ideális nagyobb családoknak vagy otthoni irodához.
Új építésű, modern, minőségi kivitelezés.
Geotermikus hűtés-fűtés vagy hőszivattyús rendszer.
Padlófűtés a teljes ingatlanban.
Geotermikus termálvíz vagy Hőszivattyú biztosítja a melegvizet is.
A++ energiaosztály - kiemelkedően alacsony fenntartási költségek.
Kétszintes modern elrendezés.
Geotermikus fűtés:
Az ingatlan különlegessége a Villapark saját, 300 méter mélyről feltörő, természetes ásványvíz minőségű termálvize, amely nemcsak a padlófűtést, hanem a teljes melegvíz-ellátást is biztosítja. Környezetbarát, fenntartható, és a legmagasabb kényelmi szintet nyújta - kompromisszumok nélkül.
Elhelyezkedés:
A fejlesztés csendes, rendezett környezetben valósul meg, kiváló közlekedéssel és minden szükséges szolgáltatás közelségével. A környék ideális családoknak, határ közeli munkavállalóknak és azoknak, akik természetközeli életre vágynak, ez által értékálló, korszerű otthont keresnek.
Az OTP Ingatlanpont előnyei:
CSOK és 3%-os OTTHON START PROGRAM igénybe vehető.
Teljes körű ügyintézés.
Kedvezményes OTP Banki hitel- és támogatási lehetőségek.
Gyors, rugalmas ügyintézés.
Megbízható ügyvédi háttér.
Ne maradjon le erről a kiemelkedő lehetőségről!
Hívjon bizalommal időpont egyeztetésért vagy további információért - akár hétvégén is rendelkezésre állok.
Referenciaszám: M317919
Mosonmagyaróvár közvetlen határában van, de közigazgatásilag Máriakálnokhoz tartozik.
3%-os Otthon Start Program igényelhető!
CSOK igényelhető!
2026. májusi átadás - geotermikus vagy hőszivattyú, padlófűtés!
Hasznos alapterület: 90 nm | 4 + 1 szoba.
Telekterület: 315 nm.
Kétszintes, újépítésű családi ház.
Energetikai besorolás: A++.
Fűtés: geotermikus vagy hőszivattyú + padlófűtés, melegvíz ellátással.
Győr-Moson-Sopron megye egyik dinamikusan fejlődő, kedvelt környékén kínálok eladásra egy 2025-ben épülő, prémium műszaki tartalommal rendelkező, energiatakarékos családi házat.
A modern technológiáknak és a geotermikus fűtésnek köszönhetően minimális rezsiköltség, kimagasló komfort és hosszú távú értékállóság jellemzi az ingatlant.
Főbb jellemzők:
90 nm nettó alapterület.
315 nm saját telek.
4+1 szoba - ideális nagyobb családoknak vagy otthoni irodához.
Új építésű, modern, minőségi kivitelezés.
Geotermikus hűtés-fűtés vagy hőszivattyús rendszer.
Padlófűtés a teljes ingatlanban.
Geotermikus termálvíz vagy Hőszivattyú biztosítja a melegvizet is.
A++ energiaosztály - kiemelkedően alacsony fenntartási költségek.
Kétszintes modern elrendezés.
Geotermikus fűtés:
Az ingatlan különlegessége a Villapark saját, 300 méter mélyről feltörő, természetes ásványvíz minőségű termálvize, amely nemcsak a padlófűtést, hanem a teljes melegvíz-ellátást is biztosítja. Környezetbarát, fenntartható, és a legmagasabb kényelmi szintet nyújta - kompromisszumok nélkül.
Elhelyezkedés:
A fejlesztés csendes, rendezett környezetben valósul meg, kiváló közlekedéssel és minden szükséges szolgáltatás közelségével. A környék ideális családoknak, határ közeli munkavállalóknak és azoknak, akik természetközeli életre vágynak, ez által értékálló, korszerű otthont keresnek.
Az OTP Ingatlanpont előnyei:
CSOK és 3%-os OTTHON START PROGRAM igénybe vehető.
Teljes körű ügyintézés.
Kedvezményes OTP Banki hitel- és támogatási lehetőségek.
Gyors, rugalmas ügyintézés.
Megbízható ügyvédi háttér.
Ne maradjon le erről a kiemelkedő lehetőségről!
Hívjon bizalommal időpont egyeztetésért vagy további információért - akár hétvégén is rendelkezésre állok.
Referenciaszám: M317919