Eladó Ház- házrész
Hirdetéskód: 9187195
OC-Nagykanizsa, Fő út 5.
Ez a hirdetés megfelelhet a FIX 3%-os programnak.
Tudj meg többet a részletekről itt.
195 m2
ALAPTERÜLET6
SZOBASZÁMnincs megadva
ÉPÍTÉSnincs megadva
FŰTÉS- CSOK igénybe vehető nem
- Tetőtér beépíthető nem
- Építés éve 1990
- Klíma nem
- Szigetelt nem
A+++
A++
A+
A
B
C
D
E
F
G
H
I
Az ingatlan leírása
A Balatontól 14 kilométerre délre található a 11 ezer fő lakosú Marcali város.
A település szőlő- és borgazdasági szempontból a Balatonboglári borvidék részét képezi.
Számos bevásárlási lehetőség, jó közlekedési infrastruktúra, széleskörű egészségügyi ellátás, sokoldalú sportolási , fürdőzési lehetőség és a pihenni vágyóknak pedig nyugalmat biztosító környezet.
Marcali egyik legkedveltebb kertvárosi övezetében található ez a három szintes, egyedi tervezésű családi ház.
Ebben a barátságos környezetben vált eladóvá ez a jó állapotú, Porotherm, hungarocellel szigetelt tégla falazatú, beton alapra épült családi ház.
Az ingatlan jellemzői:
- Nettó 195 m2-es lakótér.
- Földszint: gardrób, konyha-étkező, fürdőszoba-wc, közlekedő, tágas déli tájolású nappali terasszal, dolgozószoba, előszoba
- Emelet: 4 szoba, ebből az egyik vizes kiállásokkal rendelkezik, így fürőszobává is alakítható, közlekedő, WC-kézmosóval
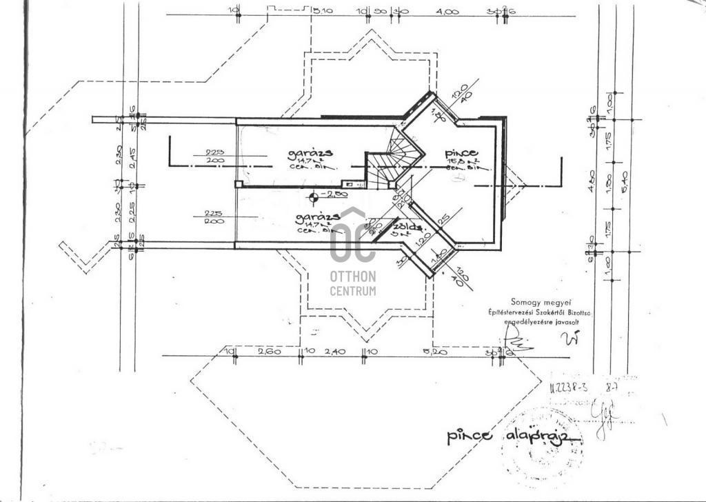
- Pinceszint: dupla garázs, mely jelenleg műhelyként van berendezve, tároló, kazán, kamra, mosókonyha
- A ház mindhárom szintje belső lépcsőn közelithető meg.
- Terei tágasak, jó elosztásúak, világosak, 1990-ben épült egyedi tervezésű épület.
- A földszinten fából készült szigetelt üvegezésű nyílászárók, míg az emeleten a tavalyi évben műanyag szigetelt üvegezésű nyílászárók kerültek beszerelésre.
- Dupla garázs a pinceszinten és az udvaron rendelkezésre áll még egy különálló garázs is.
- Víz, villany, csatorna, gáz a házba bekötve. A fűtés gázkazánról működik, valamint a házban 3db hűtő-fűtő klíma is helyet kapott.
- Tehermentes, rendezett tulajdonviszonyok.
- A földszinten rendelkezésre áll a lehetőség akár kandalló vagy cserépkályha beépítésére is.
-A szobák laminált parkettával, a többi helyiség járólappal, a földszinti nappali parkettával burkoltak.
- A telek ideális 886 m2 nagyságú, nagy zöld felülettel, kerti tóval, gyönyörűen parkosított udvarral, gyümölcsfákkal, tárolókkal rendelkezik.
- Az árba - igény szerint - a bútorok is beleértendőek.
Irodánk teljes körű, ingyenes szolgáltatást nyújt kereső ügyfeleinknek.
Szakszerű tanácsadással, hitel ügyintézéssel, energetikai tanúsítvány elkészítésével és kedvező díjszabású ügyvéddel nyújtunk segítséget!
A település szőlő- és borgazdasági szempontból a Balatonboglári borvidék részét képezi.
Számos bevásárlási lehetőség, jó közlekedési infrastruktúra, széleskörű egészségügyi ellátás, sokoldalú sportolási , fürdőzési lehetőség és a pihenni vágyóknak pedig nyugalmat biztosító környezet.
Marcali egyik legkedveltebb kertvárosi övezetében található ez a három szintes, egyedi tervezésű családi ház.
Ebben a barátságos környezetben vált eladóvá ez a jó állapotú, Porotherm, hungarocellel szigetelt tégla falazatú, beton alapra épült családi ház.
Az ingatlan jellemzői:
- Nettó 195 m2-es lakótér.
- Földszint: gardrób, konyha-étkező, fürdőszoba-wc, közlekedő, tágas déli tájolású nappali terasszal, dolgozószoba, előszoba
- Emelet: 4 szoba, ebből az egyik vizes kiállásokkal rendelkezik, így fürőszobává is alakítható, közlekedő, WC-kézmosóval
- Pinceszint: dupla garázs, mely jelenleg műhelyként van berendezve, tároló, kazán, kamra, mosókonyha
- A ház mindhárom szintje belső lépcsőn közelithető meg.
- Terei tágasak, jó elosztásúak, világosak, 1990-ben épült egyedi tervezésű épület.
- A földszinten fából készült szigetelt üvegezésű nyílászárók, míg az emeleten a tavalyi évben műanyag szigetelt üvegezésű nyílászárók kerültek beszerelésre.
- Dupla garázs a pinceszinten és az udvaron rendelkezésre áll még egy különálló garázs is.
- Víz, villany, csatorna, gáz a házba bekötve. A fűtés gázkazánról működik, valamint a házban 3db hűtő-fűtő klíma is helyet kapott.
- Tehermentes, rendezett tulajdonviszonyok.
- A földszinten rendelkezésre áll a lehetőség akár kandalló vagy cserépkályha beépítésére is.
-A szobák laminált parkettával, a többi helyiség járólappal, a földszinti nappali parkettával burkoltak.
- A telek ideális 886 m2 nagyságú, nagy zöld felülettel, kerti tóval, gyönyörűen parkosított udvarral, gyümölcsfákkal, tárolókkal rendelkezik.
- Az árba - igény szerint - a bútorok is beleértendőek.
Irodánk teljes körű, ingyenes szolgáltatást nyújt kereső ügyfeleinknek.
Szakszerű tanácsadással, hitel ügyintézéssel, energetikai tanúsítvány elkészítésével és kedvező díjszabású ügyvéddel nyújtunk segítséget!