Eladó Ház- házrész
Hirdetéskód: 9295193
Nagy Ingatlan
Felújításhoz személyi kölcsönt keres? Kalkuláljon itt! →
Ez a hirdetés megfelelhet a FIX 3%-os programnak.
Tudj meg többet a részletekről itt.
73.00 m2
ALAPTERÜLET2
SZOBASZÁMnincs megadva
ÉPÍTÉSnincs megadva
FŰTÉS- CSOK igénybe vehető nem
- Tetőtér beépíthető nem
- Klíma nem
- Szigetelt nem
A+++
A++
A+
A
B
C
D
E
F
G
H
I
Az ingatlan leírása
Majosházán önálló családi ház nagy telekkel eladó
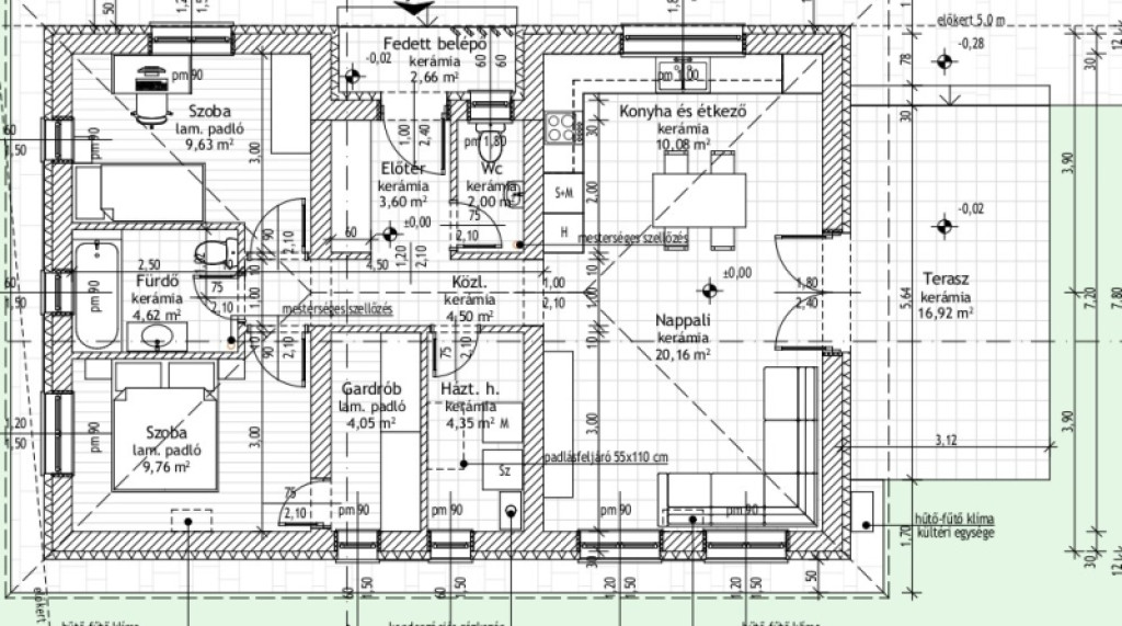
Pest vármegyében, Majosházán eladó egy 73 m²-es önálló családi ház, 848 m²-es telken.
Az ingatlan praktikus elrendezésű:
2 szoba
amerikai konyhás nappali
fürdőszoba
közlekedő
terasz 17 m2
A ház korszerű műszaki tartalommal rendelkezik:
hőszivattyús padlófűtés
12 cm homlokzati szigetelés
35 cm födémszigetelés, amely hozzájárul az alacsony rezsiköltséghez.
A 848 m²-es telek tágas, ideális kertészkedéshez, pihenéshez vagy akár további bővítési lehetőségekhez.
Majosháza csendes, nyugodt település, a Ráckevei–Soroksári Duna-ág közelében, így a természet és a vízpart szerelmeseinek kiváló választás. A környék lehetőséget kínál horgászatra, kirándulásra és vízi sportokra.
A közlekedés kedvező:
Budapest autóval az 51-es főúton könnyen megközelíthető,
a közelben Ráckevei HÉV és Volánbusz járatok biztosítják a tömegközlekedést.
Ideális választás azoknak, akik nyugodt, zöld környezetben szeretnének élni, mégis elérhető közelségben Budapesthez.
A családi ház 2026 év végéig elkészül.
Irodánk teljes körű INGYENES hitelügyintézést vállal az ország összes bankjával! Kulcsátadásig követjük az ügymenetet. Szerződéskötéshez, és bármilyen jogi kérdésben saját ügyvédeink állnak rendelkezésre !
Ha megtekintené keressen akár hétvégén is!
Pest vármegyében, Majosházán eladó egy 73 m²-es önálló családi ház, 848 m²-es telken.
Az ingatlan praktikus elrendezésű:
2 szoba
amerikai konyhás nappali
fürdőszoba
közlekedő
terasz 17 m2
A ház korszerű műszaki tartalommal rendelkezik:
hőszivattyús padlófűtés
12 cm homlokzati szigetelés
35 cm födémszigetelés, amely hozzájárul az alacsony rezsiköltséghez.
A 848 m²-es telek tágas, ideális kertészkedéshez, pihenéshez vagy akár további bővítési lehetőségekhez.
Majosháza csendes, nyugodt település, a Ráckevei–Soroksári Duna-ág közelében, így a természet és a vízpart szerelmeseinek kiváló választás. A környék lehetőséget kínál horgászatra, kirándulásra és vízi sportokra.
A közlekedés kedvező:
Budapest autóval az 51-es főúton könnyen megközelíthető,
a közelben Ráckevei HÉV és Volánbusz járatok biztosítják a tömegközlekedést.
Ideális választás azoknak, akik nyugodt, zöld környezetben szeretnének élni, mégis elérhető közelségben Budapesthez.
A családi ház 2026 év végéig elkészül.
Irodánk teljes körű INGYENES hitelügyintézést vállal az ország összes bankjával! Kulcsátadásig követjük az ügymenetet. Szerződéskötéshez, és bármilyen jogi kérdésben saját ügyvédeink állnak rendelkezésre !
Ha megtekintené keressen akár hétvégén is!