Eladó Ház- házrész
Hirdetéskód: 9313085

OTP Ingatlanpont Siófok

Felújításhoz személyi kölcsönt keres? Kalkuláljon itt! →
FIX 3% Program

Ez a hirdetés megfelelhet a FIX 3%-os programnak.
Tudj meg többet a részletekről itt.

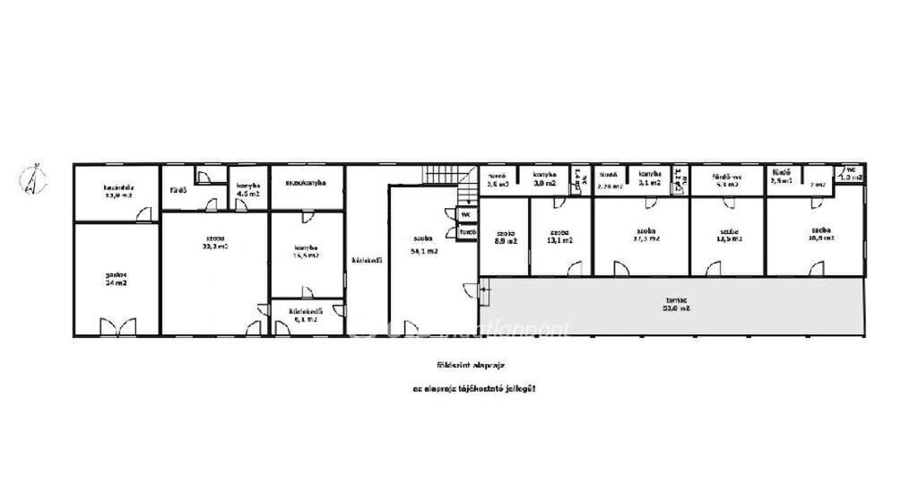
380.00 m2
ALAPTERÜLET
15
SZOBASZÁM
nincs megadva
ÉPÍTÉS
Elektromos
FŰTÉS
  • CSOK igénybe vehető nem
  • Tetőtér beépíthető nem
  • Építés éve 2001
  • Fűtés Elektromos
  • Klíma nem
  • Szigetelt nem
Energetikai besorolás: Nincs meghatározva
A+++
A++
A+
A
B
C
D
E
F
G
H
I

Az MBH Bank személyi kölcsön ajánlata

Fizetett hirdetés
1 millió Ft
6 évre
20 585 Ft/hó
THM: 14.5%
Részletek →
2 millió Ft
6 évre
41 169 Ft/hó
THM: 14.5%
Részletek →
3 millió Ft
6 évre
61 754 Ft/hó
THM: 14.5%
Részletek →

A tájékoztatás nem teljes körű és nem minősül ajánlattételnek.

Az ingatlan leírása

Megvételre kínálok Lullán, a Balaton déli partjához közeli településen, egy 380 m2-es lakóházat. Az ingatlan kialakítása alkalmassá teszi kereskedelmi szálláshelyként, munkásszállásként, rehabilitációs/rekreációs/egészségügyi központként való hasznosításra.14 szobának van jelenleg saját fürdőszobája. A konyha előírásoknak megfelelően került kialakításra. Két épület helyezkedik el egymás mellett: az utca felőli vályog, mely a hátsó téglaépület építésekor (2001) részben felújításra került, 4 éve új tetőt, a legutóbbi felújítás során pedig új burkolatokat kapott. A hátsó, kétszintes tégla épület teljeskörű felújítása az elmúlt 2 évben történt. Az épület új tetőt kapott napelemmel (47 kW). A felújítás kiterjedt a villany-, és vízvezetékek, valamint a burkolatok és szaniterek cseréjére is.
Az ingatlan villany, víz közművekkel rendelkezik jelenleg. ( A gáz visszakötésére van lehetőség. ) Fűtése hűtő-, fűtő klímákkal, elektromos fali fűtőpanelekkel megoldott. A házat körülölelő 7323 m2-es telek is számtalan lehetőséget kínál. A terület enyhe lejtésű, szabályos téglalap alakú. Lulla távolsága a Balatontól mindössze 16 km. További információkért, megtekintésért kérem hívjon!

Az energetikai tanúsítvány készítése folyamatban van, amint rendelkezésre áll, úgy azzal a hirdetés frissítésre kerül.

Térkép

Ingatlan adásvétel ügyvédi díja
450 000 Ft
a hirdetésben szereplő ár alapján
  • A vételár 0,45%-a
  • Szerződéscsomag teljeskörű képviselettel
  • Ingyenes tulajdoni lap ellenőrzés
  • Az ÁFA-t már tartalmazza
Érdekel az ajánlat →
A tájékoztatás nem teljes körű és nem minősül ajánlattételnek. Minimum díj: 150 000 Ft, maximum díj: 600 000 Ft. A díj kizárólag lakóingatlan adásvételére vonatkozik.

A hirdető elérhetősége

OTP Ingatlanpont Siófok

Szűcs Adrienn
+36 70 698