Eladó Ház- házrész
Hirdetéskód: 9295360
Gyémánt Ingatlaniroda Salgótarján
Felújításhoz személyi kölcsönt keres? Kalkuláljon itt! →
Ez a hirdetés megfelelhet a FIX 3%-os programnak.
Tudj meg többet a részletekről itt.
67.00 m2
ALAPTERÜLET3
SZOBASZÁMnincs megadva
ÉPÍTÉSKandalló
FŰTÉS- Építés éve 2004
- Fűtés Kandalló
A+++
A++
A+
A
B
C
D
E
F
G
H
I
Az ingatlan leírása
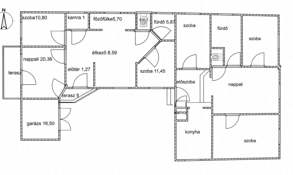
Lőrinciben, forgalmas főút mellett kínálunk megvételre egy különleges adottságokkal rendelkező ingatlant, amely két különálló családi házból áll egy 735 nm-es telken. Az ingatlan elhelyezkedése és kialakítása miatt ideális választás befektetőknek, többgenerációs családoknak, illetve azoknak, akik lakhatásukat saját vállalkozásukkal szeretnék összekapcsolni.
A két ingatlan egyben és külön is megvásárolható, így befektetési szempontból is rugalmas lehetőséget kínál: akár bérbeadásra, akár üzleti célú hasznosításra is kiváló választás.
Az ingatlan kiváló láthatóságú, jól megközelíthető helyen található, közvetlen kapcsolattal a négysávos 21-es főúthoz, valamint mindössze néhány perc autóútra a Hatvani csomóponttól, ami üzleti szempontból is kiemelkedő értéket képvisel.
1. épület – 67 nm-es családi ház (2004)
A 2004-ben téglából épült, 67 nm-es családi ház elrendezése: 2 szoba, nappali, étkező-konyha, fürdőszoba és külön WC. Fűtése vízteres kandallóval megoldott, jelenleg gázóra nincs. Az épület fa nyílászárókkal rendelkezik, a homlokzat külső vakolatot kapott, festés és igény szerint szigetelés javasolt. Az ingatlanhoz 16,5 nm-es garázs is tartozik.
Irányár: 38,5 millió Ft.
2. épület – 93 nm-es felújított családi ház
A telken található egy 93 nm-es, téglából és blokkból épült családi ház, amely 2002-ben teljes körű felújításon esett át. A felújítás során megtörtént a tetőcsere, a villamoshálózat korszerűsítése, a fürdőszoba felújítása, a nyílászárók cseréje, a fűtés korszerűsítése, a hideg- és melegburkolatok cseréje, valamint a külső homlokzat szigetelése és színezése. Elrendezése: 3 szoba, nappali, konyha, előszoba, kamra, fürdőszoba és külön WC. A ház részben alápincézett, klímával felszerelt, fűtése vegyestüzelésű kazánnal és gázcirkóval is megoldható, valamint teljes közművel rendelkezik. Az ingatlan részben bútorozva kerül értékesítésre.
Irányár: 54 millió Ft.
A két ház közös udvari bejárattal rendelkezik, és a nagy forgalmú főút melletti elhelyezkedésnek köszönhetően vállalkozási célra is kiváló lehetőséget kínál. Az egyik épület könnyen átalakítható üzlethelyiséggé, például cukrászda, kávézó, szépségszalon, fodrászat, masszázs- vagy egészségügyi rendelő, iroda, bemutatóterem vagy webshop átvételi pont céljára. További előny, hogy az utcafront felől külön bejárat is kialakítható, így az üzlet és a lakótér teljesen elkülöníthető.
Ez az ingatlan kiváló befektetési lehetőség, hiszen egyszerre kínál lakhatási, bérbeadási és üzleti hasznosítási potenciált egy jól látható, forgalmas elhelyezkedésű telken.
A két ingatlan egyben és külön is megvásárolható, így befektetési szempontból is rugalmas lehetőséget kínál: akár bérbeadásra, akár üzleti célú hasznosításra is kiváló választás.
Az ingatlan kiváló láthatóságú, jól megközelíthető helyen található, közvetlen kapcsolattal a négysávos 21-es főúthoz, valamint mindössze néhány perc autóútra a Hatvani csomóponttól, ami üzleti szempontból is kiemelkedő értéket képvisel.
1. épület – 67 nm-es családi ház (2004)
A 2004-ben téglából épült, 67 nm-es családi ház elrendezése: 2 szoba, nappali, étkező-konyha, fürdőszoba és külön WC. Fűtése vízteres kandallóval megoldott, jelenleg gázóra nincs. Az épület fa nyílászárókkal rendelkezik, a homlokzat külső vakolatot kapott, festés és igény szerint szigetelés javasolt. Az ingatlanhoz 16,5 nm-es garázs is tartozik.
Irányár: 38,5 millió Ft.
2. épület – 93 nm-es felújított családi ház
A telken található egy 93 nm-es, téglából és blokkból épült családi ház, amely 2002-ben teljes körű felújításon esett át. A felújítás során megtörtént a tetőcsere, a villamoshálózat korszerűsítése, a fürdőszoba felújítása, a nyílászárók cseréje, a fűtés korszerűsítése, a hideg- és melegburkolatok cseréje, valamint a külső homlokzat szigetelése és színezése. Elrendezése: 3 szoba, nappali, konyha, előszoba, kamra, fürdőszoba és külön WC. A ház részben alápincézett, klímával felszerelt, fűtése vegyestüzelésű kazánnal és gázcirkóval is megoldható, valamint teljes közművel rendelkezik. Az ingatlan részben bútorozva kerül értékesítésre.
Irányár: 54 millió Ft.
A két ház közös udvari bejárattal rendelkezik, és a nagy forgalmú főút melletti elhelyezkedésnek köszönhetően vállalkozási célra is kiváló lehetőséget kínál. Az egyik épület könnyen átalakítható üzlethelyiséggé, például cukrászda, kávézó, szépségszalon, fodrászat, masszázs- vagy egészségügyi rendelő, iroda, bemutatóterem vagy webshop átvételi pont céljára. További előny, hogy az utcafront felől külön bejárat is kialakítható, így az üzlet és a lakótér teljesen elkülöníthető.
Ez az ingatlan kiváló befektetési lehetőség, hiszen egyszerre kínál lakhatási, bérbeadási és üzleti hasznosítási potenciált egy jól látható, forgalmas elhelyezkedésű telken.