Eladó Ház- házrész
Hirdetéskód: 9220576
Albrecht Home Kft.
95 m2
ALAPTERÜLET4
SZOBASZÁMnincs megadva
ÉPÍTÉSnincs megadva
FŰTÉS- CSOK igénybe vehető nem
- Tetőtér beépíthető nem
- Építés éve 2026
- Klíma nem
- Szigetelt nem
A+++
A++
A+
A
B
C
D
E
F
G
H
I
Az ingatlan leírása
ELADÓ ÚJ ÉPÍTÉSŰ CSALÁDI HÁZ LIPÓTON!
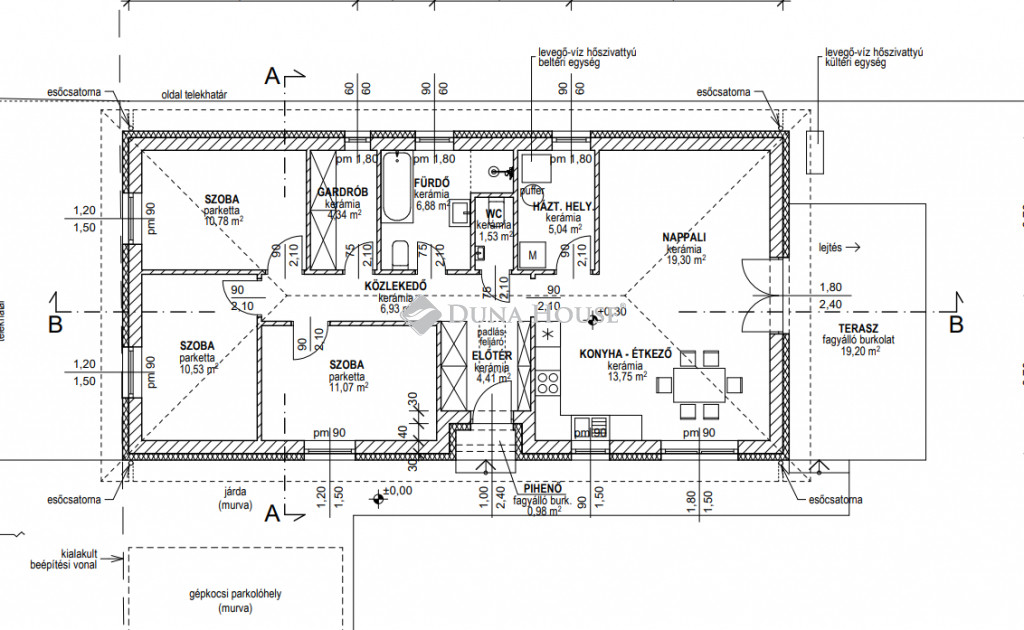
Eladásra kínálok Lipót egyik csendes utcájában egy önálló családi házat, 892nm-es telekrésszel!
Az ingatlan egy 1785nm-es telek első telekrészén helyezkedik el, 892 nm-es telekrészen. A családi ház nettó 95,54 nm hasznos alapterületű, 19,20nm terasszal.
Elosztása jól átgondolt, praktikus térkihasználtság jellemzi. Helyiségei a következők:
- 3 hálószoba
- gardrób
- közlekedő
- háztartási helyiség
- előtér
- konyha+ étkező
- nappal
- fürdőszoba
- wc
Műszaki jellemzők:
- 30cm- es csiszolt téglából épül, 15 cm hőszigetelést kap
- szeglemezes rácsos tetőszerkezet, BRAMAC antracit cseréppel és bádoggal
- 3 rétegű, KÖMMERLING ablakok, redőnnyel és szúnyoghálóval, a teraszajtón elektromos redőnnyel
- fűtés és melegvízellátás 16 kW hőszivattyúval, padlófűtéses hőleadással
- fűtésszabályozás: szobánként külön termosztát(3db)+ a nappaliban külön termosztát
EXTRÁK:- klímaelőkészítés az árban
- az első telekrész között és mögött 2 méter magas, elemes betonkerítés, a hátsó oldalon 3D kerítés az árban
- a szokványosnál magasabb árkategóriájú burkolatok választhatók.
A kivitelező számtalan referenciával rendelkezik, megbízható, stabil építési vállalat
- MEGBÍZHATÓ, KISZÁMÍTHATÓ MINŐSÉG!
Az ingatlan minden tekintetben megfelel a mai kor igényeinek, KULCSRAKÉSZ állapotban a várható átadási idő 2026. III. negyedév! Lipót kedvelt, remek infrastruktúrával rendelkező település, minden megtalálható itt, amire a hétköznapi életben szükséges lehet. Remek kikapcsolódási lehetőségeket nyújt, hiszen a Szigetköz közepén található, így a természetet kedvelőknek, vagy aktív kikapcsoldást kedvelőknek is ideális választás lehet Lipót. Az ingatlan minden jelenleg elérhető kamattámogatott konstrukcióval megvásárolható. Kiemelten ajánlom családalapítás előtt állóknak, kisgyermekes családoknak! Amennyiben felkeltette érdeklődését az ingatlan, hívjon bizalommal a hét bármely napján!
Eladásra kínálok Lipót egyik csendes utcájában egy önálló családi házat, 892nm-es telekrésszel!
Az ingatlan egy 1785nm-es telek első telekrészén helyezkedik el, 892 nm-es telekrészen. A családi ház nettó 95,54 nm hasznos alapterületű, 19,20nm terasszal.
Elosztása jól átgondolt, praktikus térkihasználtság jellemzi. Helyiségei a következők:
- 3 hálószoba
- gardrób
- közlekedő
- háztartási helyiség
- előtér
- konyha+ étkező
- nappal
- fürdőszoba
- wc
Műszaki jellemzők:
- 30cm- es csiszolt téglából épül, 15 cm hőszigetelést kap
- szeglemezes rácsos tetőszerkezet, BRAMAC antracit cseréppel és bádoggal
- 3 rétegű, KÖMMERLING ablakok, redőnnyel és szúnyoghálóval, a teraszajtón elektromos redőnnyel
- fűtés és melegvízellátás 16 kW hőszivattyúval, padlófűtéses hőleadással
- fűtésszabályozás: szobánként külön termosztát(3db)+ a nappaliban külön termosztát
EXTRÁK:- klímaelőkészítés az árban
- az első telekrész között és mögött 2 méter magas, elemes betonkerítés, a hátsó oldalon 3D kerítés az árban
- a szokványosnál magasabb árkategóriájú burkolatok választhatók.
A kivitelező számtalan referenciával rendelkezik, megbízható, stabil építési vállalat
- MEGBÍZHATÓ, KISZÁMÍTHATÓ MINŐSÉG!
Az ingatlan minden tekintetben megfelel a mai kor igényeinek, KULCSRAKÉSZ állapotban a várható átadási idő 2026. III. negyedév! Lipót kedvelt, remek infrastruktúrával rendelkező település, minden megtalálható itt, amire a hétköznapi életben szükséges lehet. Remek kikapcsolódási lehetőségeket nyújt, hiszen a Szigetköz közepén található, így a természetet kedvelőknek, vagy aktív kikapcsoldást kedvelőknek is ideális választás lehet Lipót. Az ingatlan minden jelenleg elérhető kamattámogatott konstrukcióval megvásárolható. Kiemelten ajánlom családalapítás előtt állóknak, kisgyermekes családoknak! Amennyiben felkeltette érdeklődését az ingatlan, hívjon bizalommal a hét bármely napján!