Eladó Ház- házrész
Hirdetéskód: 8990214

Heléna Ingatlancentrum

Felújításhoz személyi kölcsönt keres? Kalkuláljon itt! →
FIX 3% Program

Ez a hirdetés megfelelhet a FIX 3%-os programnak.
Tudj meg többet a részletekről itt.

90.00 m2
ALAPTERÜLET
4
SZOBASZÁM
Tégla
ÉPÍTÉS
Hőszivattyú
FŰTÉS
  • Parkolási lehetőség Udvari beálló
  • Építés éve 2024
  • Fűtés Hőszivattyú
  • Építőanyag Tégla
  • Erkély, terasz Terasz
  • Szigetelt igen
  • Bútorozott nem

Energetikai besorolás: A+

A+++
A++
A+
A
B
C
D
E
F
G
H
I

Az MBH Bank személyi kölcsön ajánlata

Fizetett hirdetés
1 millió Ft
6 évre
20 585 Ft/hó
THM: 14.5%
Részletek →
2 millió Ft
6 évre
41 169 Ft/hó
THM: 14.5%
Részletek →
3 millió Ft
6 évre
61 754 Ft/hó
THM: 14.5%
Részletek →

A tájékoztatás nem teljes körű és nem minősül ajánlattételnek.

Az ingatlan leírása

? Modern, új építésű családi ház Levélen – közvetlenül kivitelezőtől!


Igénybe vehető kedvezmények: ? CSOK+ és Otthon Start támogatás IGÉNYELHETŐ!
5% ÁFA | A energiaosztály | 10% foglalóval lefoglalható



? A ház főbb jellemzői




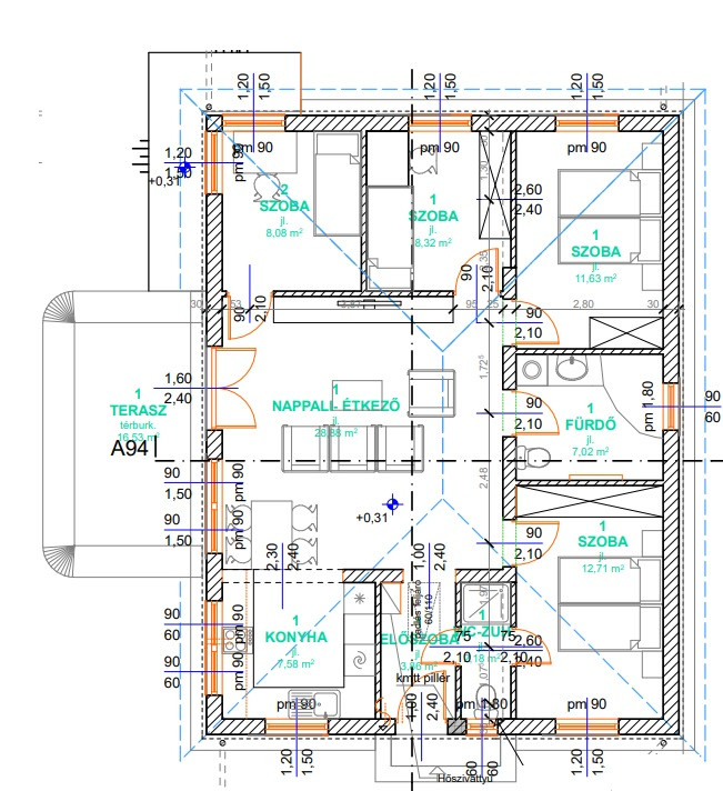
  • Telek mérete: 281 m² (összközműves)




  • Bruttó alapterület: 130 m²




  • Hasznos alapterület: 90,25 m²




  • Építés kezdete: 2023




  • Befejezés: 2025




  • Állapot: kulcsrakész – az ár a telket is tartalmazza!




Elrendezés:
Előtér • Nappali • Konyha-étkező • 4 szoba • 2 fürdő-WC • Terasz



⚒️ Prémium kivitelezés:


Az épület 30 cm Porotherm  tégla falazattal és 15 cm EPS hőszigeteléssel készül.
A tetőt  Bramac tetőcserép fedi, a nyílászárók 3 rétegű  fehér műanyag ablakok.


Tartalmazza:




  • homlokzati szigetelés és lábazati csepegtető




  • gépi vakolat, glettelés, festés




  • fehér műanyag párkányok




  • napelem és klíma előkészítés




  • villany-, internet- és kábel-TV előkészítés




  • fűtés: hőszivattyú padlófűtéssel




  • kerítés: alumínium porfúvott kapukkal és elemes betonkerítéssel




? A ház megfelel a legújabb energetikai előírásoknak, és A energiaosztályú minősítést kap.



? Kiváló elhelyezkedés – hármashatár központjában


A ház Levél községben található, ideális választás családoknak és ingázóknak.




  •  Osztrák határ: 5 km




  •  Szlovák határ: 15 km




  • ?️ Mosonmagyaróvár: 3 km




A közelben:
? óvoda • ? iskola • ? orvos • ? bolt 300 m-re



? Miért érdemes ezt az ingatlant választani?


✅ Modern, energiatakarékos, hőszivattyús otthon
✅ CSOK+ és Otthon Start támogatás igényelhető
✅ Saját telek, csendes környezet
✅ Kivitelezőtől, rejtett költségek nélkül
✅ Kiváló közlekedés és határközeli elhelyezkedés


#eladó #családi ház #Újépítésű  #Hőszivattyú #4 szobás ház #Kertes ház #Modern design #Csendes környezet #Családbarát környék
#Ingatlan #Eladó #Mosonmagyaróvár #Levél #Hegyeshalom #ausztriai #határnál


#eladóház #újépítésűház #Levél #Mosonmagyaróvár #családiház #ingatlan #Apluszenergia #hőszivattyú #CSOKplusz #OtthonStart #modernotthon #kertesotthon #újépítésűingatlan #energiatakarékosotthon #ausztriaihatárnál #szlovákhatárnál

Térkép

Ingatlan adásvétel ügyvédi díja
468 000 Ft
a hirdetésben szereplő ár alapján
  • A vételár 0,45%-a
  • Szerződéscsomag teljeskörű képviselettel
  • Ingyenes tulajdoni lap ellenőrzés
  • Az ÁFA-t már tartalmazza
Érdekel az ajánlat →
A tájékoztatás nem teljes körű és nem minősül ajánlattételnek. Minimum díj: 150 000 Ft, maximum díj: 600 000 Ft. A díj kizárólag lakóingatlan adásvételére vonatkozik.

A hirdető elérhetősége

Heléna Ingatlancentrum

Kanavosz Heléna
+36 70 611