Eladó Ház- házrész
Hirdetéskód: 9329262
Komplex Ingatlan
Felújításhoz személyi kölcsönt keres? Kalkuláljon itt! →94.00 m2
ALAPTERÜLET2
SZOBASZÁMnincs megadva
ÉPÍTÉSElektromos
FŰTÉS- CSOK igénybe vehető nem
- Belső szintek 1
- Tetőtér beépíthető nem
- Építés éve 2023
- Fűtés Elektromos
- Klíma nem
- Szigetelt nem
A+++
A++
A+
A
B
C
D
E
F
G
H
I
Az ingatlan leírása
???? Levél – 95 m²-es külön lakrész, saját ~368 m² telekrésszel, napelemmel! ????
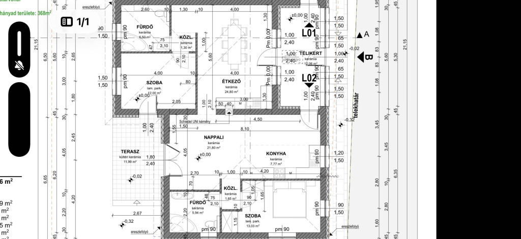
Levélen kínálunk megvételre egy kétlakásos családi ház nagyobbik, önálló bejáratú lakrészét, amely ideális választás családoknak vagy befektetésre is.
Az ingatlan rendezett, ügyvéd által ellenjegyzett használati megállapodással rendelkezik, a lakrészek jól elkülönülnek. A kisebbik lakás már elkelt, így most a tágasabb, kb. 95 m²-es lakrész érhető el.
---
???? Lakrész:
- nappali
- külön konyha + étkező
- több szoba
- fürdő + WC
- közlekedők
- 11,99 m² terasz
- világos, jól élhető terek
---
???? Telek:
- kb. 368 m² kizárólagos használatú telekrész
- udvari beállás lehetősége
- kertkapcsolat
---
⚙️ Műszaki tartalom:
- 30 cm Porotherm falazat
- 15 cm homlokzati hőszigetelés
- 4,1 kWp napelemes rendszer (~4260 kWh/év)
- kedvező fenntartási költségek
---
ℹ️ Fontos:
- nem társasház, hanem használati megállapodással megosztott ingatlan
- külön bejárat, jól elkülönített élettér
- rendezett jogi háttér
---
???? Ideális:
- családoknak
- első otthonnak
- befektetésnek
---
Tágas otthon saját kerttel, alacsony rezsivel – Levélen ritka lehetőség! ☀️
???? Érdeklődj bizalomma
Levélen kínálunk megvételre egy kétlakásos családi ház nagyobbik, önálló bejáratú lakrészét, amely ideális választás családoknak vagy befektetésre is.
Az ingatlan rendezett, ügyvéd által ellenjegyzett használati megállapodással rendelkezik, a lakrészek jól elkülönülnek. A kisebbik lakás már elkelt, így most a tágasabb, kb. 95 m²-es lakrész érhető el.
---
???? Lakrész:
- nappali
- külön konyha + étkező
- több szoba
- fürdő + WC
- közlekedők
- 11,99 m² terasz
- világos, jól élhető terek
---
???? Telek:
- kb. 368 m² kizárólagos használatú telekrész
- udvari beállás lehetősége
- kertkapcsolat
---
⚙️ Műszaki tartalom:
- 30 cm Porotherm falazat
- 15 cm homlokzati hőszigetelés
- 4,1 kWp napelemes rendszer (~4260 kWh/év)
- kedvező fenntartási költségek
---
ℹ️ Fontos:
- nem társasház, hanem használati megállapodással megosztott ingatlan
- külön bejárat, jól elkülönített élettér
- rendezett jogi háttér
---
???? Ideális:
- családoknak
- első otthonnak
- befektetésnek
---
Tágas otthon saját kerttel, alacsony rezsivel – Levélen ritka lehetőség! ☀️
???? Érdeklődj bizalomma