Eladó Ház- házrész
Hirdetéskód: 9240121

OTP Ingatlanpont Csongrád

115 m2
ALAPTERÜLET
4
SZOBASZÁM
nincs megadva
ÉPÍTÉS
nincs megadva
FŰTÉS
  • CSOK igénybe vehető nem
  • Tetőtér beépíthető nem
  • Építés éve 1950
  • Klíma nem
  • Szigetelt nem
Energetikai besorolás: Nincs meghatározva
A+++
A++
A+
A
B
C
D
E
F
G
H
I

Az ingatlan leírása

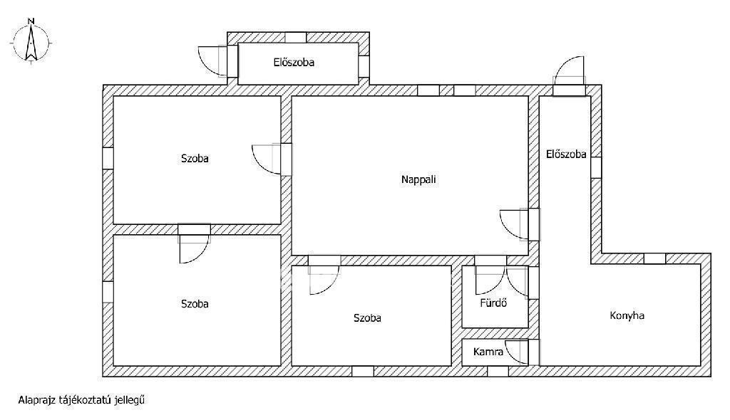
Tágas otthon Kunágotán nagy telekkel, tehermentes, azonnal költözhető! Ha vidéki nyugalomra vágyik, ez az ingatlan Önre vár! Eladásra kínálunk, Békés vármegyébe, egy 115 nm-es családi házat Kunágotán, csendes utcában, a központhoz közel. A tágas, 2089 nm-es telek számos lehetőséget rejt magában. A melléképületben nyárikonyha, több tárolóhelyiség, garázs, valamint állattartásra kialakított disznóólak és tyúkólak, disznóvágásra alkalmas terek találhatóak. A telek másik felében, gyümölcsfák vannak, kertészkedésre, gazdálkodásra tökéletesen alkalmas. A ház három szobával, nappalival, konyhával, fürdőszobával, kamrával és két előszobával rendelkezik, így ideális lehet nagyobb családok számára is. A mindennapok kényelméről gázkazános fűtés, bojleres meleg víz és klíma gondoskodik, így télen-nyáron kellemes hőmérséklet várja. Az ingatlan költözhető állapotú, csupán egy tisztasági festés után máris új élet költözhet a falak közé. Ráadásul tehermentes és hitelezhető, így akár azonnal belevághat új otthona megteremtésébe. Ha Ön is érzi, hogy ez lehet az a hely, ahol igazán otthonra találhat, hívjon bizalommal! Az OTP Ingatlanpont a banki háttérrel eladóink, és vevőink igényeit teljeskörűen ki tudja szolgálni, az eladástól a vevői finanszírozásig és az ingatlan birtokbaadásáig. Hitel igénylés esetén akár egyedi kamatkedvezménnyel, jogosultság esetén az állami támogatásokhoz kapcsolódó felvilágosítással, teljeskörű pénzügyi tanácsadással és ügyintézéssel állunk ügyfeleink rendelkezésére. A pénzügyi tanácsadás és ügyintézői szolgáltatásunk díjmentes. ***VÁLASSZUK KI EGYÜTT AZ ÖNNEK LEGMEGFELELŐBB AJÁNLATOT! BANKI SORBAN ÁLLÁS NÉLKÜL! ***

Térkép

A hirdető elérhetősége

OTP Ingatlanpont Csongrád

Orovecz Józsefné
+36 30 535