Eladó Ház- házrész
Hirdetéskód: 9184174

OTP Ingatlanpont Csongrád

Felújításhoz személyi kölcsönt keres? Kalkuláljon itt! →
FIX 3% Program

Ez a hirdetés megfelelhet a FIX 3%-os programnak.
Tudj meg többet a részletekről itt.

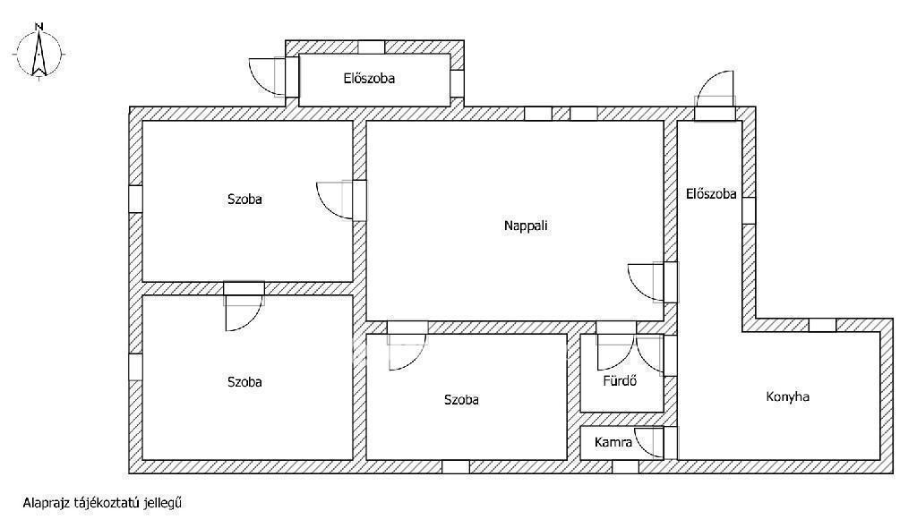
115.00 m2
ALAPTERÜLET
4
SZOBASZÁM
nincs megadva
ÉPÍTÉS
Gáz (cirkó)
FŰTÉS
  • CSOK igénybe vehető nem
  • Tetőtér beépíthető nem
  • Építés éve 1950
  • Fűtés Gáz (cirkó)
  • Klíma nem
  • Szigetelt nem
Energetikai besorolás: Nincs meghatározva
A+++
A++
A+
A
B
C
D
E
F
G
H
I

Az MBH Bank személyi kölcsön ajánlata

Fizetett hirdetés
1 millió Ft
6 évre
20 585 Ft/hó
THM: 14.5%
Részletek →
2 millió Ft
6 évre
41 169 Ft/hó
THM: 14.5%
Részletek →
3 millió Ft
6 évre
61 754 Ft/hó
THM: 14.5%
Részletek →

A tájékoztatás nem teljes körű és nem minősül ajánlattételnek.

Az ingatlan leírása

Tágas otthon Kunágotán nagy telekkel, tehermentes, azonnal költözhető! Ha vidéki nyugalomra vágyik, ez az ingatlan Önre vár! Eladásra kínálunk, Békés vármegyébe, egy 115 nm-es családi házat Kunágotán, csendes utcában, a központhoz közel. A tágas, 2089 nm-es telek számos lehetőséget rejt magában. A melléképületben nyárikonyha, több tárolóhelyiség, garázs, valamint állattartásra kialakított disznóólak és tyúkólak, disznóvágásra alkalmas terek találhatóak. A telek másik felében, gyümölcsfák vannak, kertészkedésre, gazdálkodásra tökéletesen alkalmas. A ház három szobával, nappalival, konyhával, fürdőszobával, kamrával és két előszobával rendelkezik, így ideális lehet nagyobb családok számára is. A mindennapok kényelméről gázkazános fűtés, bojleres meleg víz és klíma gondoskodik, így télen-nyáron kellemes hőmérséklet várja. Az ingatlan költözhető állapotú, csupán egy tisztasági festés után máris új élet költözhet a falak közé. Ráadásul tehermentes és hitelezhető, így akár azonnal belevághat új otthona megteremtésébe. Ha Ön is érzi, hogy ez lehet az a hely, ahol igazán otthonra találhat, hívjon bizalommal! Az OTP Ingatlanpont a banki háttérrel eladóink, és vevőink igényeit teljeskörűen ki tudja szolgálni, az eladástól a vevői finanszírozásig és az ingatlan birtokbaadásáig. Hitel igénylés esetén akár egyedi kamatkedvezménnyel, jogosultság esetén az állami támogatásokhoz kapcsolódó felvilágosítással, teljeskörű pénzügyi tanácsadással és ügyintézéssel állunk ügyfeleink rendelkezésére. A pénzügyi tanácsadás és ügyintézői szolgáltatásunk díjmentes. ***VÁLASSZUK KI EGYÜTT AZ ÖNNEK LEGMEGFELELŐBB AJÁNLATOT! BANKI SORBAN ÁLLÁS NÉLKÜL! ***

Az energetikai tanúsítvány készítése folyamatban van, amint rendelkezésre áll, úgy azzal a hirdetés frissítésre kerül.

Térkép

Ingatlan adásvétel ügyvédi díja
150 000 Ft
a hirdetésben szereplő ár alapján
  • A vételár 0,45%-a
  • Szerződéscsomag teljeskörű képviselettel
  • Ingyenes tulajdoni lap ellenőrzés
  • Az ÁFA-t már tartalmazza
Érdekel az ajánlat →
A tájékoztatás nem teljes körű és nem minősül ajánlattételnek. Minimum díj: 150 000 Ft, maximum díj: 600 000 Ft. A díj kizárólag lakóingatlan adásvételére vonatkozik.

A hirdető elérhetősége

OTP Ingatlanpont Csongrád

Pócsik Attila
+36 20 405