Eladó Ház- házrész
Hirdetéskód: 9302271

Győr Bajcsy-Zsilinszky út 27 - OTP Ingatlanpont Iroda

Felújításhoz személyi kölcsönt keres? Kalkuláljon itt! →
FIX 3% Program

Ez a hirdetés megfelelhet a FIX 3%-os programnak.
Tudj meg többet a részletekről itt.

195.00 m2
ALAPTERÜLET
4
SZOBASZÁM
nincs megadva
ÉPÍTÉS
nincs megadva
FŰTÉS
  • CSOK igénybe vehető nem
  • Tetőtér beépíthető nem
  • Építés éve 1987
  • Klíma nem
  • Szigetelt nem
Energetikai besorolás: Nincs meghatározva
A+++
A++
A+
A
B
C
D
E
F
G
H
I

Az MBH Bank személyi kölcsön ajánlata

Fizetett hirdetés
1 millió Ft
6 évre
20 585 Ft/hó
THM: 14.5%
Részletek →
2 millió Ft
6 évre
41 169 Ft/hó
THM: 14.5%
Részletek →
3 millió Ft
6 évre
61 754 Ft/hó
THM: 14.5%
Részletek →

A tájékoztatás nem teljes körű és nem minősül ajánlattételnek.

Az ingatlan leírása

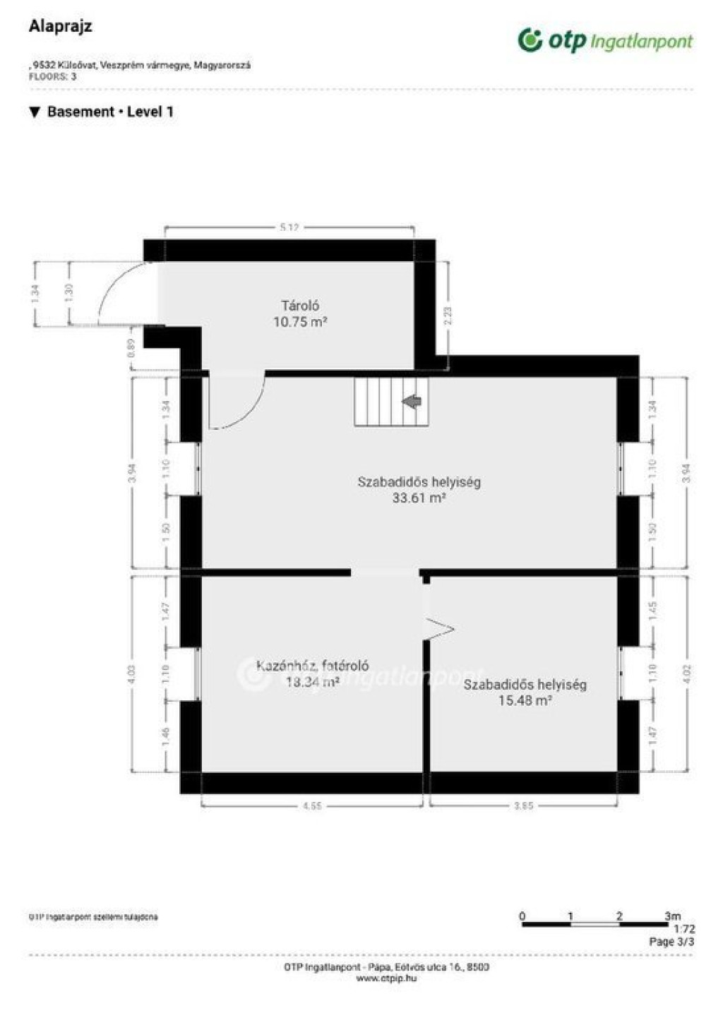
Eladásra kínálok Veszprém vármegyében, Külsővat rendezett-gondozott településén, egy 1987-ben épült 195,9 m2 alapterületű, felújított, tégla falazatú, részben beépített tetőteres családi házat 2079 m2-es telken. Külsővat a Kisalföldön, a Marcal-medence nyugati szélén helyezkedik el a kiemelkedő Bakony és a lesüllyedő Győri-medence között. A legközelebbi város Celldömölk, amelynek központjától alig 8 kilométer választja el; Pápától mintegy 20 kilométerre fekszik. A faluban található egy óvoda, így ideális hely a családok számára, a településen megtalálhatók az alapvető szolgáltatások, mint például bolt, posta. A ház elosztását tekintve áll, az alsó szint: előszobából, konyhából, 3 szobából, fürdőszobából, közlekedőből, kamrából, valamint egy elő teraszból. A tetőtér elosztását tekintve áll: előtérből, 1 teljes értékű-külön bejáratú erkélyes lakószobából, valamint további 2 szobából és 1 fürdőszobából és WC-ből. Tartozik az ingatlanhoz 78,2 m2 nagyságú pince is, 3 helységgel, és gépészeti helység is itt található. A nagy területű udvari rész zárt, körbekerített. A konyhakertben a kiváló minőségű termőföld jelenleg is lehetővé teszi a zöldség és gyümölcstermelést. Az udvarban garázs és további tárolók találhatók még. Az ingatlan kiváló statikai és szerkezeti állapotnak örvend. A nyílászárók ujjak, redőnnyel látottak, műanyagokra lettek cserélve, amik által a ház energetikai besorolás még kedvezőbb lett. A ház fűtése kazánnal megoldott. A meleg vizet villanybojler szolgáltatja. Az ingatlan elhelyezkedésé is kivételes, nyugodt környezetben található. Tökéletes választás nagycsaládosoknak vagy azoknak, akik nyugodt környezetben. Ajánlom mindazon érdeklődők figyelmébe, akik falun, több városhoz közel, nyugodt családias környezetben keresnek otthont, pihenésre vágynak csendes környezetben. Az OTP Ingatlanpont teljes körű ügyintézéssel áll az eladók és a vevők rendelkezésére. A kínálatunkból választott ingatlan finanszírozásához kedvezményes hitelkonstrukciót kínálunk. Az adásvételi szerződés megkötéséhez igény szerint megbízható ügyvédi közreműködést biztosítunk, és segítséget nyújtunk az adásvételhez kapcsolódó ügyek intézéséhez is. Amennyiben felkeltette érdeklődését az általam kínált ingatlan, keressen bizalommal. A hirdetési szöveg és képek az Otp Ingatlanpont tulajdona. Amennyiben felkeltette érdeklődését az általam kínált ingatlan, keressen bizalommal. Ne habozzon tovább, hiszen ez a ház valóban páratlan lehetőséget kínál! SZEREZZE MEG, HÍVJA MOST A MEGADOTT TELEFONSZÁMOT!

Térkép

A hirdető elérhetősége

Győr Bajcsy-Zsilinszky út 27 - OTP Ingatlanpont Iroda

Hima Zsuzsanna
+36 20 419