Eladó Ház- házrész
Hirdetéskód: 9254521
Velence Tópart utca 47 - OTP Ingatlanpont Iroda
117.00 m2
ALAPTERÜLET4
SZOBASZÁMnincs megadva
ÉPÍTÉSnincs megadva
FŰTÉS- CSOK igénybe vehető nem
- Tetőtér beépíthető nem
- Építés éve 2026
- Klíma nem
- Szigetelt nem
A+++
A++
A+
A
B
C
D
E
F
G
H
I
Az ingatlan leírása
Kulcson, Fejér vármegyében kínálunk eladásra egy modern, új építésű, 117 nm-es családi házat, amely egy 1422 nm-es, tágas telken található. Az épület borovi fenyő falvázzal és betonalappal készül, 15 cm-es kőzetgyapot szigeteléssel, így kimagasló energetikai hatékonyságot biztosít. A ház fűtéséről és hűtéséről hőszivattyús klímák gondoskodnak majd, valamint egy 5 kW teljesítményű napelemrendszer is telepítésre kerül, amely tovább csökkenti a rezsiköltségeket.
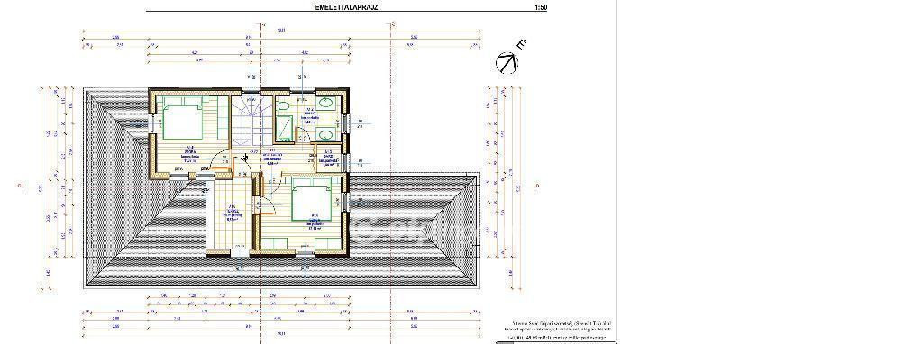
A földszinten egy előtér, hálószoba, fürdő, külön WC, valamint egy tágas, amerikai konyhás nappali-étkező kerül kialakításra. Az emeletre vezető lépcső egy kényelmes, világos térbe vezet majd, ahol két hálószoba, egy dolgozószoba, egy gardrób és egy fürdőszoba kap helyet. Az emeleti szobákhoz közös terasz is tartozik, amely tökéletes helyszín a pihenéshez és kikapcsolódáshoz.
Az ingatlan ideális választás mindazok számára, akik Kulcs kedvelt részén keresnek új építésű, környezettudatos, kényelmes otthont. A ház építése során a minőségi anyaghasználat és az átgondolt tervezés volt a fő szempont, így egy modern, időtálló otthon várja új tulajdonosát.
72000000 Ft
A földszinten egy előtér, hálószoba, fürdő, külön WC, valamint egy tágas, amerikai konyhás nappali-étkező kerül kialakításra. Az emeletre vezető lépcső egy kényelmes, világos térbe vezet majd, ahol két hálószoba, egy dolgozószoba, egy gardrób és egy fürdőszoba kap helyet. Az emeleti szobákhoz közös terasz is tartozik, amely tökéletes helyszín a pihenéshez és kikapcsolódáshoz.
Az ingatlan ideális választás mindazok számára, akik Kulcs kedvelt részén keresnek új építésű, környezettudatos, kényelmes otthont. A ház építése során a minőségi anyaghasználat és az átgondolt tervezés volt a fő szempont, így egy modern, időtálló otthon várja új tulajdonosát.
72000000 Ft