Eladó Ház- házrész
Hirdetéskód: 9312439
OTP Ingatlanpont Csongrád
Felújításhoz személyi kölcsönt keres? Kalkuláljon itt! →
Ez a hirdetés megfelelhet a FIX 3%-os programnak.
Tudj meg többet a részletekről itt.
75.00 m2
ALAPTERÜLET2
SZOBASZÁMnincs megadva
ÉPÍTÉSEgyéb fűtés
FŰTÉS- CSOK igénybe vehető nem
- Tetőtér beépíthető nem
- Építés éve 1974
- Fűtés Egyéb fűtés
- Klíma nem
- Szigetelt nem
A+++
A++
A+
A
B
C
D
E
F
G
H
I
Az ingatlan leírása
Csak az OTP Ingatlanpontnál!!!
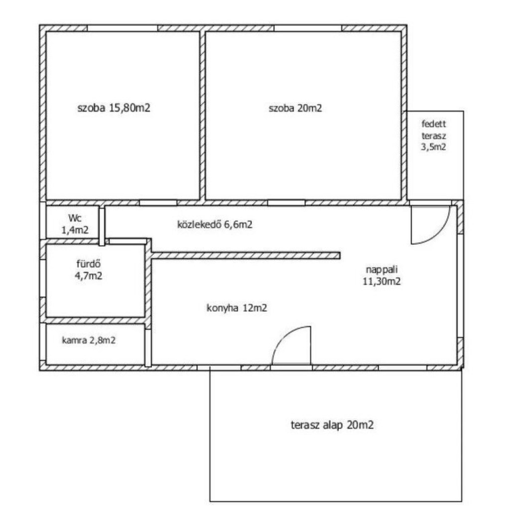
Eladásra kínálunk Körösladány város szélén egy tégla építésű, kiváló adottságokkal rendelkező családi házat, amely ideális választás lehet mindazok számára, akik saját ízlésük szerint szeretnék befejezni és kialakítani otthonukat. A 1630 m2-es telek bőséges teret biztosít kertészkedéshez, pihenéshez vagy akár további fejlesztésekhez, míg a jelenlegi 75 m2-es hasznos alapterület jól átgondolt belső elrendezést kapott. A betonozott padlásfödém lehetőséget ad a tetőtér beépítésére, így az ingatlan könnyedén bővíthető.
A felújítási munkálatokat a tulajdonos már megkezdte, így az új tulajdonos egy korszerű alapokra helyezett, de még szabadon alakítható házat vehet birtokba. Jelenleg két szoba, egy amerikai konyhás nappali, fürdőszoba, külön WC és kamra került kialakításra. A műanyag nyílászárók hőszigetelt üvegezéssel készültek, a vízvezetékek, a fűtési rendszer csövei és a vízszigetelés teljeskörűen megújultak és falba süllyesztve lettek kialakítva. A villanyhálózat szintén teljesen új, 3x16 amperrel, rézkábelezéssel és áramvédő főkapcsolóval, a kapcsolók és konnektorok burkolatai már csak felszerelésre várnak. A nappaliból kilépve egy terasz építése is elkezdődött, amely kellemes helyszíne lehet a nyári pihenésnek és családi összejöveteleknek.
Körösladány elhelyezkedése kiváló, hiszen a 47-es főút mentén, Békéscsabától csak 39 km-re, a Sebes-Körös közelében található, természeti értékekkel körülvéve. A város nyugodt, barátságos hangulatú, a környék pedig számos kirándulási és kikapcsolódási lehetőséget kínál. A közeli folyópart ideális a természet szerelmeseinek, a környék látnivalói és gyógyfürdői pedig tovább növelik az itt élés élményét. Ez az ingatlan remek lehetőség azok számára, akik egy csendes, mégis jól megközelíthető helyen szeretnének hosszú távon otthonra találni, vagy akár befektetésben gondolkodnak.
Az OTP Bankcsoport teljes körű ügyintézéssel áll az eladók és a vevők rendelkezésére! A kínálatunkból választott ingatlan finanszírozásához kedvezményes hitel konstrukciókat kínálunk. Legújabb szolgáltatásként ajánlom minden kedves ügyfelem részére az OTP Bank által közvetített Babaváró, CSOK PLUSZ, vagy egyéb kölcsönök intézését. Az adásvételi szerződés megkötéséhez igény szerint megbízható ügyvédi közreműködést biztosítunk, és segítséget nyújtunk az adásvételhez kapcsolódó ügyek intézéséhez. Akár hétvégén is hívható vagyok! Amennyiben igényli, kérem küldjön SMS-t és szívesen visszahívom!
Kedvező hitelajánlatokkal (BABAVÁRÓ hitel, piaci hitel, és szabadfelhasználású hitel) várjuk jelentkezését. Számos konstrukció közül választhatnak. Irodáink Szentes, Petőfi utca 12. A buszmegálló felől, és Csongrád, Fő utca 54. szám alatt várja a személyes érdeklődőket. ***VÁLASSZUK KI EGYÜTT AZ ÖNNEK LEGMEGFELELŐBB AJÁNLATOT! BANKI SORBAN ÁLLÁS NÉLKÜL! ***
Eladásra kínálunk Körösladány város szélén egy tégla építésű, kiváló adottságokkal rendelkező családi házat, amely ideális választás lehet mindazok számára, akik saját ízlésük szerint szeretnék befejezni és kialakítani otthonukat. A 1630 m2-es telek bőséges teret biztosít kertészkedéshez, pihenéshez vagy akár további fejlesztésekhez, míg a jelenlegi 75 m2-es hasznos alapterület jól átgondolt belső elrendezést kapott. A betonozott padlásfödém lehetőséget ad a tetőtér beépítésére, így az ingatlan könnyedén bővíthető.
A felújítási munkálatokat a tulajdonos már megkezdte, így az új tulajdonos egy korszerű alapokra helyezett, de még szabadon alakítható házat vehet birtokba. Jelenleg két szoba, egy amerikai konyhás nappali, fürdőszoba, külön WC és kamra került kialakításra. A műanyag nyílászárók hőszigetelt üvegezéssel készültek, a vízvezetékek, a fűtési rendszer csövei és a vízszigetelés teljeskörűen megújultak és falba süllyesztve lettek kialakítva. A villanyhálózat szintén teljesen új, 3x16 amperrel, rézkábelezéssel és áramvédő főkapcsolóval, a kapcsolók és konnektorok burkolatai már csak felszerelésre várnak. A nappaliból kilépve egy terasz építése is elkezdődött, amely kellemes helyszíne lehet a nyári pihenésnek és családi összejöveteleknek.
Körösladány elhelyezkedése kiváló, hiszen a 47-es főút mentén, Békéscsabától csak 39 km-re, a Sebes-Körös közelében található, természeti értékekkel körülvéve. A város nyugodt, barátságos hangulatú, a környék pedig számos kirándulási és kikapcsolódási lehetőséget kínál. A közeli folyópart ideális a természet szerelmeseinek, a környék látnivalói és gyógyfürdői pedig tovább növelik az itt élés élményét. Ez az ingatlan remek lehetőség azok számára, akik egy csendes, mégis jól megközelíthető helyen szeretnének hosszú távon otthonra találni, vagy akár befektetésben gondolkodnak.
Az OTP Bankcsoport teljes körű ügyintézéssel áll az eladók és a vevők rendelkezésére! A kínálatunkból választott ingatlan finanszírozásához kedvezményes hitel konstrukciókat kínálunk. Legújabb szolgáltatásként ajánlom minden kedves ügyfelem részére az OTP Bank által közvetített Babaváró, CSOK PLUSZ, vagy egyéb kölcsönök intézését. Az adásvételi szerződés megkötéséhez igény szerint megbízható ügyvédi közreműködést biztosítunk, és segítséget nyújtunk az adásvételhez kapcsolódó ügyek intézéséhez. Akár hétvégén is hívható vagyok! Amennyiben igényli, kérem küldjön SMS-t és szívesen visszahívom!
Kedvező hitelajánlatokkal (BABAVÁRÓ hitel, piaci hitel, és szabadfelhasználású hitel) várjuk jelentkezését. Számos konstrukció közül választhatnak. Irodáink Szentes, Petőfi utca 12. A buszmegálló felől, és Csongrád, Fő utca 54. szám alatt várja a személyes érdeklődőket. ***VÁLASSZUK KI EGYÜTT AZ ÖNNEK LEGMEGFELELŐBB AJÁNLATOT! BANKI SORBAN ÁLLÁS NÉLKÜL! ***