Eladó Ház- házrész
Hirdetéskód: 9217050
Duna House - Új-Lak Bázis Kft.
Ez a hirdetés megfelelhet a FIX 3%-os programnak.
Tudj meg többet a részletekről itt.
113 m2
ALAPTERÜLET4
SZOBASZÁMnincs megadva
ÉPÍTÉSnincs megadva
FŰTÉS- CSOK igénybe vehető nem
- Tetőtér beépíthető nem
- Építés éve 2026
- Klíma nem
- Szigetelt nem
A+++
A++
A+
A
B
C
D
E
F
G
H
I
Az ingatlan leírása
Meghitt, új építésű ikerházfél eladó Kókán saját kerttel, családok számára tökéletes választás
Ha olyan helyet keres, ahol családja végre igazán otthon érzi magát, akkor Kóka egyik legbarátságosabb utcájában megtalálhatja az ideális új otthont!
A frissen épülő ikerházfél kiváló lehetőség mindazoknak, akik nyugalomra, jó levegőre és biztonságos, családias környezetre vágynak.
A 492 m²-es saját telek elegendő teret kínál ahhoz, hogy a gyerekek a kertben játszhassanak, a szülők pedig élvezhessék a közös grillezéseket, pihenéseket. A 17,7 m²-es tágas terasz akár a családi hétvégék központja is lehet.
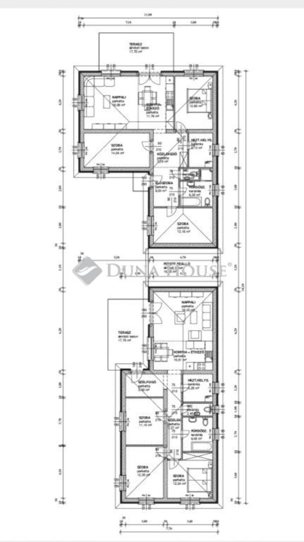
Belül egy jól átgondolt kialakítás várja új tulajdonosát:
Három nagy méretű szoba, amelyek könnyedén berendezhetők gyerekszobának, hálónak vagy dolgozónak
Világos amerikai konyhás nappali, ahol a család minden tagja együtt lehet a mindennapokban
Külön háztartási helyiség, ami nagy segítség a rend és kényelem megőrzésében
A ház új építésű, modern házak szomszédságában található, így rendezett, igényes környezet fogadja az itt élőket. A közelben található buszmegálló gyalog is könnyedén elérhető, ami nagy előny, ha iskolába, munkába vagy bevásárolni indulnának.
A vételár a következőket tartalmazza:
Kényelmet és minőséget biztosító felszereltségek:
Meleg burkolatok: 3 500 Ft/m²-ig
Hideg burkolatok: 4 000 Ft/m²-ig
Beltéri ajtók: 30 000 Ft/db-ig
Csaptelepek: 15 000 Ft/db-ig
Kád: 40 000 Ft-ig
Mosdó: 20 000 Ft-ig
WC: 20 000 Ft-ig
Továbbá:
Tereprendezés az átadás végén
Klíma kiépítése egyeztetést követően megoldható
Miért szerethető ez az otthon?
Barátságos, csendes utca
Új építésű, kis forgalmú környezet
Saját kert a szabadidős pillanatokhoz
Tágas, napfényes terek a család minden tagja számára
Kiváló elosztás életszerű, átgondolt tervezés
Közlekedés szempontjából is praktikus elhelyezkedés
Egy olyan otthon ez, ahol minden nap jó érzés lesz hazaérkezni.
Legyen ez az új kezdet helyszíne költözzön egy valóban szerethető otthonba Kókán!
Ha olyan helyet keres, ahol családja végre igazán otthon érzi magát, akkor Kóka egyik legbarátságosabb utcájában megtalálhatja az ideális új otthont!
A frissen épülő ikerházfél kiváló lehetőség mindazoknak, akik nyugalomra, jó levegőre és biztonságos, családias környezetre vágynak.
A 492 m²-es saját telek elegendő teret kínál ahhoz, hogy a gyerekek a kertben játszhassanak, a szülők pedig élvezhessék a közös grillezéseket, pihenéseket. A 17,7 m²-es tágas terasz akár a családi hétvégék központja is lehet.
Belül egy jól átgondolt kialakítás várja új tulajdonosát:
Három nagy méretű szoba, amelyek könnyedén berendezhetők gyerekszobának, hálónak vagy dolgozónak
Világos amerikai konyhás nappali, ahol a család minden tagja együtt lehet a mindennapokban
Külön háztartási helyiség, ami nagy segítség a rend és kényelem megőrzésében
A ház új építésű, modern házak szomszédságában található, így rendezett, igényes környezet fogadja az itt élőket. A közelben található buszmegálló gyalog is könnyedén elérhető, ami nagy előny, ha iskolába, munkába vagy bevásárolni indulnának.
A vételár a következőket tartalmazza:
Kényelmet és minőséget biztosító felszereltségek:
Meleg burkolatok: 3 500 Ft/m²-ig
Hideg burkolatok: 4 000 Ft/m²-ig
Beltéri ajtók: 30 000 Ft/db-ig
Csaptelepek: 15 000 Ft/db-ig
Kád: 40 000 Ft-ig
Mosdó: 20 000 Ft-ig
WC: 20 000 Ft-ig
Továbbá:
Tereprendezés az átadás végén
Klíma kiépítése egyeztetést követően megoldható
Miért szerethető ez az otthon?
Barátságos, csendes utca
Új építésű, kis forgalmú környezet
Saját kert a szabadidős pillanatokhoz
Tágas, napfényes terek a család minden tagja számára
Kiváló elosztás életszerű, átgondolt tervezés
Közlekedés szempontjából is praktikus elhelyezkedés
Egy olyan otthon ez, ahol minden nap jó érzés lesz hazaérkezni.
Legyen ez az új kezdet helyszíne költözzön egy valóban szerethető otthonba Kókán!