Eladó Ház- házrész
Hirdetéskód: 9257582
Duna House - Új-Lak Bázis Kft.
97.00 m2
ALAPTERÜLET4
SZOBASZÁMnincs megadva
ÉPÍTÉSnincs megadva
FŰTÉS- CSOK igénybe vehető nem
- Tetőtér beépíthető nem
- Építés éve 2026
- Klíma nem
- Szigetelt nem
A+++
A++
A+
A
B
C
D
E
F
G
H
I
Az ingatlan leírása
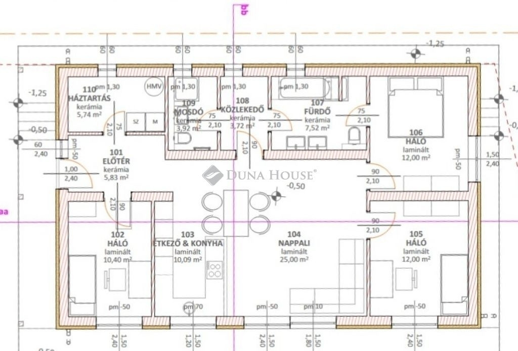
Kókán eladó egy 2026- ban épülő 3 szoba, nappalis ház 700m2-es telken.
A ház terve, és minden dokumentációja megtekinthető, ezen kívül referencia munkát is tudunk mutatni.
A házat a cég megrendelés esetén 20% befizetés esetén azonnal elkezdi építeni és maximum 10 hónap alatt kulcsrakészen átadásra kerül.
Vasalt beton alappal , porotherm 30-ból kerül megépítésre.
Koszorú monolit vasbeton, a födém fagerendás, gipszkarton álmennyezettel.
3 rétegű fehér műanyag nyílászárók kerülnek beépítésre, a belső ajtók MDF szerkezetűek .
A ház elrendezése kiváló, 3 szoba-amerikai konyhás nappalis kialakítású.
2 fürdőszoba, egyik tusolós másik kádas.
A cég a burkolatokat 4000ft/m2-ig állja, afelett a vevő terhe.
Szaniterek közép kategóriáig az ár részét képezik, prémium vagy egyedi igény esetén megbeszélés szerint a vevőt terheli. Ez összegben azt jelenti hogy 300.000 ft -ig a kivitelező állja a szanitereket, afeletti rész a vevő terhe.
A fűtést hőszivattyú biztosítja padlófűtéssel, puffertartályos rendszerleválasztással.
Amennyiben új építésű ingatlanban gondolkodik Budapest közelében ne habozzon, beszéljük át a részleteket!
Ügyvédi hátteret és a hitel teljes lebonyolítását végző szakértőt is biztosítunk!
A ház terve, és minden dokumentációja megtekinthető, ezen kívül referencia munkát is tudunk mutatni.
A házat a cég megrendelés esetén 20% befizetés esetén azonnal elkezdi építeni és maximum 10 hónap alatt kulcsrakészen átadásra kerül.
Vasalt beton alappal , porotherm 30-ból kerül megépítésre.
Koszorú monolit vasbeton, a födém fagerendás, gipszkarton álmennyezettel.
3 rétegű fehér műanyag nyílászárók kerülnek beépítésre, a belső ajtók MDF szerkezetűek .
A ház elrendezése kiváló, 3 szoba-amerikai konyhás nappalis kialakítású.
2 fürdőszoba, egyik tusolós másik kádas.
A cég a burkolatokat 4000ft/m2-ig állja, afelett a vevő terhe.
Szaniterek közép kategóriáig az ár részét képezik, prémium vagy egyedi igény esetén megbeszélés szerint a vevőt terheli. Ez összegben azt jelenti hogy 300.000 ft -ig a kivitelező állja a szanitereket, afeletti rész a vevő terhe.
A fűtést hőszivattyú biztosítja padlófűtéssel, puffertartályos rendszerleválasztással.
Amennyiben új építésű ingatlanban gondolkodik Budapest közelében ne habozzon, beszéljük át a részleteket!
Ügyvédi hátteret és a hitel teljes lebonyolítását végző szakértőt is biztosítunk!