Eladó Ház- házrész
Hirdetéskód: 9305984
Duna House - Új-Lak Bázis Kft.
Felújításhoz személyi kölcsönt keres? Kalkuláljon itt! →
Ez a hirdetés megfelelhet a FIX 3%-os programnak.
Tudj meg többet a részletekről itt.
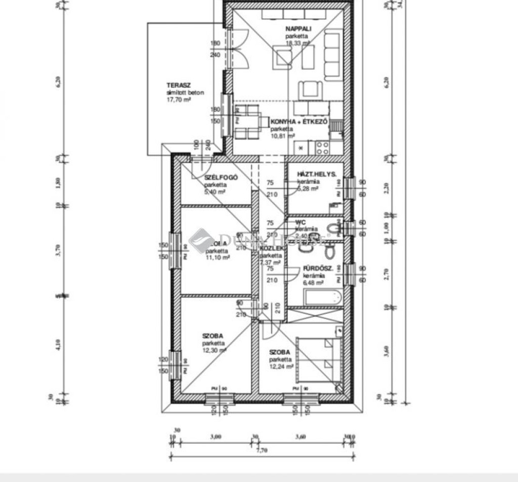
91.00 m2
ALAPTERÜLET4
SZOBASZÁMnincs megadva
ÉPÍTÉSEgyéb fűtés
FŰTÉS- CSOK igénybe vehető nem
- Tetőtér beépíthető nem
- Építés éve 2026
- Fűtés Egyéb fűtés
- Klíma nem
- Szigetelt nem
A+++
A++
A+
A
B
C
D
E
F
G
H
I
Az ingatlan leírása
PRÉMIUM IKERHÁZ KÓKÁN MODERN OTTHON SAJÁT KERTTEL, NYUGALMAS KÖRNYEZETBEN!
ELSŐ INGATLAN maximális privát szféra!
Kóka csendes, biztonságos részén kínálunk megvételre egy bruttó 109,41 m²-es, prémium minőségben megépített ikerházat, amelyhez teljesen külön leválasztott, saját telekrész tartozik. A modern kialakítás, az átgondolt elrendezés és a magas műszaki tartalom garantálja, hogy ide valóban csak költözni kell!
A ELSŐ elhelyezkedésnek és a leválasztott teleknek köszönhetően az ingatlan teljes értékű családi ház érzetét nyújtja, zavartalan nyugalommal.
Főbb jellemzők
91,71 m² hasznos + 17,70 m² terasz
3 tágas, jól bútorozható szoba
Világos, amerikai konyhás nappali közvetlen kertkapcsolattal
Külön háztartási helyiség praktikus tárolási megoldásokkal
Nyitott terasz tökéletes reggeli kávéhoz vagy esti kikapcsolódáshoz
Fedett kocsibeálló
Saját, körbekerített, privát kert
Klíma előkészítés igény szerint
Minőségi műszaki tartalom a vételárban
Burkolatok és nyílászárók:
Meleg burkolatok: 3 500 Ft/m²-ig
Hideg burkolatok: 4 000 Ft/m²-ig
Beltéri ajtók: 30 000 Ft/db-ig
Szaniterek:
Csaptelepek: 15 000 Ft/db-ig
Kád: 40 000 Ft-ig
Mosdó: 20 000 Ft-ig
WC: 20 000 Ft-ig
Kültéri munkák:
Tereprendezés a kulcsrakész ár részét képezi
Élettér, amit élmény használni
A nagy üvegfelületeknek köszönhetően a nappalit és az étkezőt egész nap természetes fény járja át. Az átgondolt belső kialakítás és a külön háztartási helyiség a mindennapi kényelmet szolgálja, míg a saját kert ideális pihenőkertnek, játszótérnek vagy akár egy hangulatos grillterasz kialakítására.
Kóka infrastruktúrája
Kóka kiváló választás azok számára, akik nyugodt, vidéki környezetben szeretnének élni, de fontos számukra a jó megközelíthetőség:
Budapest autóval kb. 35-40 perc alatt elérhető
Vasúti közlekedés a közeli településekről (pl. Tápiószecső, Sülysáp)
Helyi buszjáratok biztosítják a közlekedést a környező városok felé
Óvoda, iskola, orvosi rendelő, gyógyszertár a településen
Bevásárlási lehetőségek, kisebb üzletek, szolgáltatások helyben
Családbarát, biztonságos környezet
Várom megtisztelő hívását!
Igény esetén a kivitelező korábbi referencia munkáit is szívesen megmutatom, így meggyőződhet a minőségről.
Bankfüggetlen hitelügyintézéssel és teljes körű ügyintézéssel is segítem a vásárlást!
ELSŐ INGATLAN maximális privát szféra!
Kóka csendes, biztonságos részén kínálunk megvételre egy bruttó 109,41 m²-es, prémium minőségben megépített ikerházat, amelyhez teljesen külön leválasztott, saját telekrész tartozik. A modern kialakítás, az átgondolt elrendezés és a magas műszaki tartalom garantálja, hogy ide valóban csak költözni kell!
A ELSŐ elhelyezkedésnek és a leválasztott teleknek köszönhetően az ingatlan teljes értékű családi ház érzetét nyújtja, zavartalan nyugalommal.
Főbb jellemzők
91,71 m² hasznos + 17,70 m² terasz
3 tágas, jól bútorozható szoba
Világos, amerikai konyhás nappali közvetlen kertkapcsolattal
Külön háztartási helyiség praktikus tárolási megoldásokkal
Nyitott terasz tökéletes reggeli kávéhoz vagy esti kikapcsolódáshoz
Fedett kocsibeálló
Saját, körbekerített, privát kert
Klíma előkészítés igény szerint
Minőségi műszaki tartalom a vételárban
Burkolatok és nyílászárók:
Meleg burkolatok: 3 500 Ft/m²-ig
Hideg burkolatok: 4 000 Ft/m²-ig
Beltéri ajtók: 30 000 Ft/db-ig
Szaniterek:
Csaptelepek: 15 000 Ft/db-ig
Kád: 40 000 Ft-ig
Mosdó: 20 000 Ft-ig
WC: 20 000 Ft-ig
Kültéri munkák:
Tereprendezés a kulcsrakész ár részét képezi
Élettér, amit élmény használni
A nagy üvegfelületeknek köszönhetően a nappalit és az étkezőt egész nap természetes fény járja át. Az átgondolt belső kialakítás és a külön háztartási helyiség a mindennapi kényelmet szolgálja, míg a saját kert ideális pihenőkertnek, játszótérnek vagy akár egy hangulatos grillterasz kialakítására.
Kóka infrastruktúrája
Kóka kiváló választás azok számára, akik nyugodt, vidéki környezetben szeretnének élni, de fontos számukra a jó megközelíthetőség:
Budapest autóval kb. 35-40 perc alatt elérhető
Vasúti közlekedés a közeli településekről (pl. Tápiószecső, Sülysáp)
Helyi buszjáratok biztosítják a közlekedést a környező városok felé
Óvoda, iskola, orvosi rendelő, gyógyszertár a településen
Bevásárlási lehetőségek, kisebb üzletek, szolgáltatások helyben
Családbarát, biztonságos környezet
Várom megtisztelő hívását!
Igény esetén a kivitelező korábbi referencia munkáit is szívesen megmutatom, így meggyőződhet a minőségről.
Bankfüggetlen hitelügyintézéssel és teljes körű ügyintézéssel is segítem a vásárlást!