Eladó Ház- házrész
Hirdetéskód: 9300637
Duna House - Új-Lak Bázis Kft.
Felújításhoz személyi kölcsönt keres? Kalkuláljon itt! →108.00 m2
ALAPTERÜLET4
SZOBASZÁMnincs megadva
ÉPÍTÉSnincs megadva
FŰTÉS- CSOK igénybe vehető nem
- Tetőtér beépíthető nem
- Építés éve 2026
- Klíma nem
- Szigetelt nem
A+++
A++
A+
A
B
C
D
E
F
G
H
I
Az ingatlan leírása
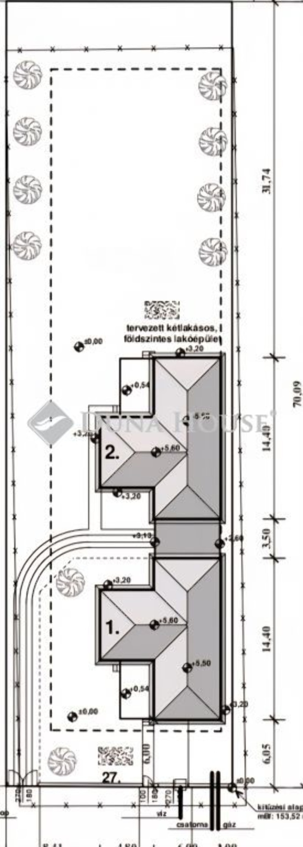
Kókán Új építésű Ikerház Garázs kapcsolattal!
Megvételre kínálok Kókán minőségi kivitelezéssel készülő Ikerház felet.
UTCA FRONTI INGATLAN!
Az Ingatlan nagyon jó csendes helyen helyezkedik el,a busz megállótól 10 perc sétára,ami közvetlen a Sülysápi Vasútállomás érkezik.
Számos Referencia munkával állunk rendelkezésre.
Az ingatlan felosztása:
- Szoba: 14,04 nm2
- Szoba: 12,15 nm2
- Szoba: 12,15 nm2
- Fürdőszoba: 6,6 nm2
- wc: 1,8 nm2
- Amerikai Konyha -Nappali : 27,44 nm2
- Szélfogó : 4,86 nm2
- Háztartási Helyiség : 3,96 nm2
- Közlekedő : 9,3 nm2
- Nyitott Terasz : 15,6 nm2
Az Ingatlan szerkezete B30-as Tégla 15 cm szigeteléssel.
A tető szerkezete fa födémes,20 cm kőzetgyapot szigeteléssel,plusz betoncserép fedéssel.
Az ingatlan teljes belső területe fűtéséről hőszivattyú gondoskodik,amely padlófűtéssel párosul.
700 nm2-es telek tartozik az ingatlanhoz,amely ideális mind a családi összejövetelek,grillezések és kikapcsolódás helyszíneként.
Klíma kiépítése lehetséges ezt a kivitelezővel kell előre egyeztetni.
Amely a vételárban benne van:
- Meleg burkolatok 3500,-
- Hideg burkolatok 4000,-
- Beltéri ajtók 30.000,-
- Csapok/db 15.000,-
- Kád: 40.000,-
- Mosdó 20.000,-
- Wc 20.000,-
- Terep rendezés.
Átadás várható ideje: 2026. első negyedév.
Várom megtisztelő hívását.Tekintsük meg együtt Álmai Otthonát!
Bank független hitel ügyintézővel is állok rendelkezésére.
Megvételre kínálok Kókán minőségi kivitelezéssel készülő Ikerház felet.
UTCA FRONTI INGATLAN!
Az Ingatlan nagyon jó csendes helyen helyezkedik el,a busz megállótól 10 perc sétára,ami közvetlen a Sülysápi Vasútállomás érkezik.
Számos Referencia munkával állunk rendelkezésre.
Az ingatlan felosztása:
- Szoba: 14,04 nm2
- Szoba: 12,15 nm2
- Szoba: 12,15 nm2
- Fürdőszoba: 6,6 nm2
- wc: 1,8 nm2
- Amerikai Konyha -Nappali : 27,44 nm2
- Szélfogó : 4,86 nm2
- Háztartási Helyiség : 3,96 nm2
- Közlekedő : 9,3 nm2
- Nyitott Terasz : 15,6 nm2
Az Ingatlan szerkezete B30-as Tégla 15 cm szigeteléssel.
A tető szerkezete fa födémes,20 cm kőzetgyapot szigeteléssel,plusz betoncserép fedéssel.
Az ingatlan teljes belső területe fűtéséről hőszivattyú gondoskodik,amely padlófűtéssel párosul.
700 nm2-es telek tartozik az ingatlanhoz,amely ideális mind a családi összejövetelek,grillezések és kikapcsolódás helyszíneként.
Klíma kiépítése lehetséges ezt a kivitelezővel kell előre egyeztetni.
Amely a vételárban benne van:
- Meleg burkolatok 3500,-
- Hideg burkolatok 4000,-
- Beltéri ajtók 30.000,-
- Csapok/db 15.000,-
- Kád: 40.000,-
- Mosdó 20.000,-
- Wc 20.000,-
- Terep rendezés.
Átadás várható ideje: 2026. első negyedév.
Várom megtisztelő hívását.Tekintsük meg együtt Álmai Otthonát!
Bank független hitel ügyintézővel is állok rendelkezésére.