Eladó Ház- házrész
Hirdetéskód: 9299750
Duna House - Új-Lak Bázis Kft.
Felújításhoz személyi kölcsönt keres? Kalkuláljon itt! →89.00 m2
ALAPTERÜLET4
SZOBASZÁMnincs megadva
ÉPÍTÉSnincs megadva
FŰTÉS- CSOK igénybe vehető nem
- Tetőtér beépíthető nem
- Építés éve 2026
- Klíma nem
- Szigetelt nem
A+++
A++
A+
A
B
C
D
E
F
G
H
I
Az ingatlan leírása
Új építésű házak között, nyugodt békés utcában épül az ingatlan.
920m2 sarok telek , ügyvédi megosztóval ketté választva, teljesen privát elkerített telekkel.
tetőtér beépítéses lakás:
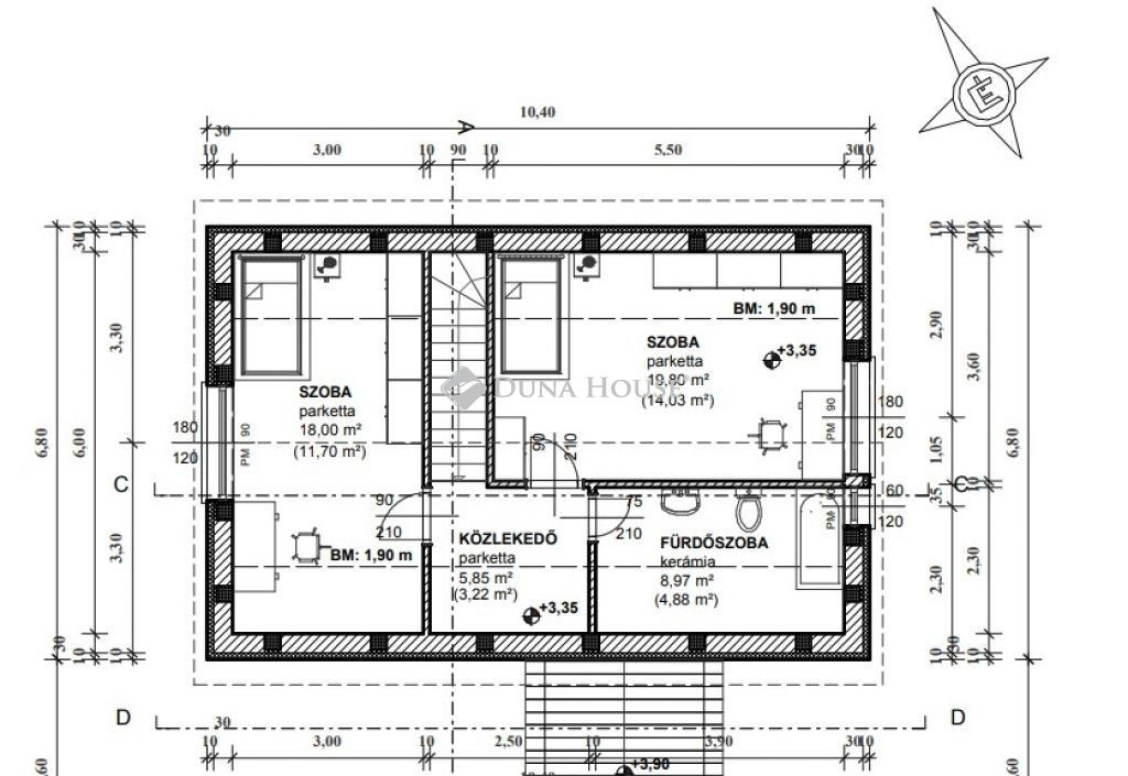
- nettó hasznos alapterület: 89,53 (az emeleten csak 1,8 m felett mérve, tehát valójában nagyobb)
- 30 cm PTH teherhordó tégla falazat 10 cm grafitos dryvit szigeteléssel
- monoblokkos hőszivattyús padlófűtési rendszer
- split klíma előkészítés egy végpontra
- szigetelt fafödém
- beton vagy kerámia cserépfedés
Burkolatok 5000ft/m2
Burkolatok:
- előtér, konyha, HTH-WC, fürdőszoba mázas kerámia járólap 33x33 cm méretig, fürdőszobában 2,0 m-ig fali csempe, konyhapult felett fali csempe, szoba, nappali laminált lap (5000ft/m2-ig állja a kivitelező)
Glettelés, festés:
- bandázsolás, glettelés, két réteg diszperziós falfestés fehér színre, látszó fa felületeken lazúrozás
Nyílászárók:
- műanyag homlokzati nyílászárók 3 réteg üvegezéssel min 76 mm vtg szerkezettel, bejárati ajtó MABISZ minősítéssel, beltéri ajtók CPL kivitelben utólag szerelhető tokkal fém kilinccsel
gépészet:
- monoblokkos levegő-víz hőszivattyús fűtés és meleg víz termelés, padlófűtés programozható WIFI-s termosztáttal, fürdőben 1 db elektromos fűtésű törölközőszárító radiátor, Alföldi vagy KOLO szaniterek, MOFÉM csaptelepek,
170 cm akril vagy lemezkád, álló- alsó kifolyású WC-k falon kívüli tartállyal, klíma előkészítés, (zuhanyfülke opcióban rendelhető)
A szanitereket a cég 500.000 ft-ig állja.
Elektromos szerelések:
- 3x16A elektromos áram bekötés légkábellel, kapcsolók, aljzatok Asfora vagy hasonló minőségben, 0,75-s MBCU vezetékek védőcsőben vezetve, internet részére egy végpontra csövezés
Helyiségenként 3 dugaj és 1 kapcsoló van az árban.
Külső munkák:
- közműbekötések, 150 cm drótkerítés betonoszlopokkal, simított beton járda bejáratnál, kb.: 16 m2 simított beton terasz, gk beálló zúzott kőből murva terítéssel.
A cég 25 éves makulátlan múlttal rendelkező, leellenőrizhető. Számtalan referencia munka!
Minden hitelre alkalmas az ingatlan!
- kivitelezés kezdete: 2026.1. negyedév
- kivitelezés befejezése : 2026.4. negyedév
Bármi kérdése van hívjon bizalommal!
920m2 sarok telek , ügyvédi megosztóval ketté választva, teljesen privát elkerített telekkel.
tetőtér beépítéses lakás:
- nettó hasznos alapterület: 89,53 (az emeleten csak 1,8 m felett mérve, tehát valójában nagyobb)
- 30 cm PTH teherhordó tégla falazat 10 cm grafitos dryvit szigeteléssel
- monoblokkos hőszivattyús padlófűtési rendszer
- split klíma előkészítés egy végpontra
- szigetelt fafödém
- beton vagy kerámia cserépfedés
Burkolatok 5000ft/m2
Burkolatok:
- előtér, konyha, HTH-WC, fürdőszoba mázas kerámia járólap 33x33 cm méretig, fürdőszobában 2,0 m-ig fali csempe, konyhapult felett fali csempe, szoba, nappali laminált lap (5000ft/m2-ig állja a kivitelező)
Glettelés, festés:
- bandázsolás, glettelés, két réteg diszperziós falfestés fehér színre, látszó fa felületeken lazúrozás
Nyílászárók:
- műanyag homlokzati nyílászárók 3 réteg üvegezéssel min 76 mm vtg szerkezettel, bejárati ajtó MABISZ minősítéssel, beltéri ajtók CPL kivitelben utólag szerelhető tokkal fém kilinccsel
gépészet:
- monoblokkos levegő-víz hőszivattyús fűtés és meleg víz termelés, padlófűtés programozható WIFI-s termosztáttal, fürdőben 1 db elektromos fűtésű törölközőszárító radiátor, Alföldi vagy KOLO szaniterek, MOFÉM csaptelepek,
170 cm akril vagy lemezkád, álló- alsó kifolyású WC-k falon kívüli tartállyal, klíma előkészítés, (zuhanyfülke opcióban rendelhető)
A szanitereket a cég 500.000 ft-ig állja.
Elektromos szerelések:
- 3x16A elektromos áram bekötés légkábellel, kapcsolók, aljzatok Asfora vagy hasonló minőségben, 0,75-s MBCU vezetékek védőcsőben vezetve, internet részére egy végpontra csövezés
Helyiségenként 3 dugaj és 1 kapcsoló van az árban.
Külső munkák:
- közműbekötések, 150 cm drótkerítés betonoszlopokkal, simított beton járda bejáratnál, kb.: 16 m2 simított beton terasz, gk beálló zúzott kőből murva terítéssel.
A cég 25 éves makulátlan múlttal rendelkező, leellenőrizhető. Számtalan referencia munka!
Minden hitelre alkalmas az ingatlan!
- kivitelezés kezdete: 2026.1. negyedév
- kivitelezés befejezése : 2026.4. negyedév
Bármi kérdése van hívjon bizalommal!