Eladó Ház- házrész
Hirdetéskód: 9249995
OTP Ingatlanpont - Takács Zsuzsanna
127.00 m2
ALAPTERÜLET5
SZOBASZÁMnincs megadva
ÉPÍTÉSGeotermikus
FŰTÉS- CSOK igénybe vehető nem
- Tetőtér beépíthető nem
- Építés éve 2026
- Fűtés Geotermikus
- Klíma nem
- Szigetelt nem
A+++
A++
A+
A
B
C
D
E
F
G
H
I
Az ingatlan leírása
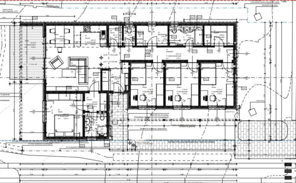
Kocson, a foci pálya közelében, eladásra kínálunk 2 db 127,55 nm-es, 5 szobás, földszintes, dupla komfortos, hőszivattyús családi házat. Az épület kiváló minőségű lesz, SIP technológiával épül, a szerkezetére 50 év gyártói garancia vonatkozik, szerződéskötéstől számítva az átadás 8 hónapon belül megvalósul, így Önnek lehetősége van a saját, egyedi igényeire szabni jövendő otthonát.
Az ingatlanok 1806 nm-es telken épülnek, a hátsó házhoz szolgalmi út tartozik, így a házakhoz tartozó telekterület 800 nm-es lesz.
A SIP technológiával épülő családi ház tökéletes választás mindazoknak, akik hosszú távra keresnek kényelmes, fenntartható otthont. A SIP panelek és a 10 cm vastag kőzetgyapot kombinációjával a falazat U-értéke kb. 0,13-0,14 W/m2K, így kiváló hőszigetelést biztosít az egész év folyamán, míg a tetőbe kerülő 30 cm-es szigetelés egész évben kellemes hőérzetet teremt. Az épület sávalappal készül, teljes közművel (víz, villany, csatorna) rendelkezik, a fűtést és a meleg vizet Panasonic hőszivattyú biztosítja, amely kedvezményes H tarifáról is üzemeltethető. A rendszer padlófűtést nyújt, és elő van készítve hűtésre (fain coil).
A Kömmerling nyílászárók, a nappali nagy méretű emelő-toló ajtaja és az elektromos alumínium redőnyök nemcsak esztétikusak, hanem praktikusak is. A hővisszanyerős központi szellőztető folyamatosan friss, egészséges levegőt biztosít.
Kocs egy kellemes, csendes település Budapesttől 70 km-re, Tatabányától 15 km-re, Győrtől 50 km-re.
A település központja rövid sétával elérhető, ahol boltok, óvoda, iskola és minden alapvető szolgáltatás megtalálható. A közeli útvonalaknak köszönhetően Tatabánya, Komárom vagy akár Budapest irányába is könnyen elindulhatunk autóval.
M320175
A kínálatunkból választott ingatlan finanszírozásához hitel- lízing megoldásokat kínálunk. Hitelhez kapcsolódó CSOK ügyintézés, amennyiben az ügyfél és az ingatlan a feltételeknek megfelel, babaváró hitel.
Az adásvételi szerződés megkötéséhez igény szerint megbízható ügyvédi közreműködést biztosítunk. Amennyiben felkeltettem érdeklődését, hívjon bizalommal!
Ha az új ingatlana megvásárlásához a jelenlegi ingatlanát el kell adnia, abban is szívesen segítünk.
Az ingatlanok 1806 nm-es telken épülnek, a hátsó házhoz szolgalmi út tartozik, így a házakhoz tartozó telekterület 800 nm-es lesz.
A SIP technológiával épülő családi ház tökéletes választás mindazoknak, akik hosszú távra keresnek kényelmes, fenntartható otthont. A SIP panelek és a 10 cm vastag kőzetgyapot kombinációjával a falazat U-értéke kb. 0,13-0,14 W/m2K, így kiváló hőszigetelést biztosít az egész év folyamán, míg a tetőbe kerülő 30 cm-es szigetelés egész évben kellemes hőérzetet teremt. Az épület sávalappal készül, teljes közművel (víz, villany, csatorna) rendelkezik, a fűtést és a meleg vizet Panasonic hőszivattyú biztosítja, amely kedvezményes H tarifáról is üzemeltethető. A rendszer padlófűtést nyújt, és elő van készítve hűtésre (fain coil).
A Kömmerling nyílászárók, a nappali nagy méretű emelő-toló ajtaja és az elektromos alumínium redőnyök nemcsak esztétikusak, hanem praktikusak is. A hővisszanyerős központi szellőztető folyamatosan friss, egészséges levegőt biztosít.
Kocs egy kellemes, csendes település Budapesttől 70 km-re, Tatabányától 15 km-re, Győrtől 50 km-re.
A település központja rövid sétával elérhető, ahol boltok, óvoda, iskola és minden alapvető szolgáltatás megtalálható. A közeli útvonalaknak köszönhetően Tatabánya, Komárom vagy akár Budapest irányába is könnyen elindulhatunk autóval.
M320175
A kínálatunkból választott ingatlan finanszírozásához hitel- lízing megoldásokat kínálunk. Hitelhez kapcsolódó CSOK ügyintézés, amennyiben az ügyfél és az ingatlan a feltételeknek megfelel, babaváró hitel.
Az adásvételi szerződés megkötéséhez igény szerint megbízható ügyvédi közreműködést biztosítunk. Amennyiben felkeltettem érdeklődését, hívjon bizalommal!
Ha az új ingatlana megvásárlásához a jelenlegi ingatlanát el kell adnia, abban is szívesen segítünk.