Eladó Ház- házrész
Hirdetéskód: 9310963
OTP Ingatlanpont Csongrád
Felújításhoz személyi kölcsönt keres? Kalkuláljon itt! →
Ez a hirdetés megfelelhet a FIX 3%-os programnak.
Tudj meg többet a részletekről itt.
87.00 m2
ALAPTERÜLET3
SZOBASZÁMnincs megadva
ÉPÍTÉSEgyéb fűtés
FŰTÉS- CSOK igénybe vehető nem
- Tetőtér beépíthető nem
- Építés éve 1980
- Fűtés Egyéb fűtés
- Klíma nem
- Szigetelt nem
A+++
A++
A+
A
B
C
D
E
F
G
H
I
Az ingatlan leírása
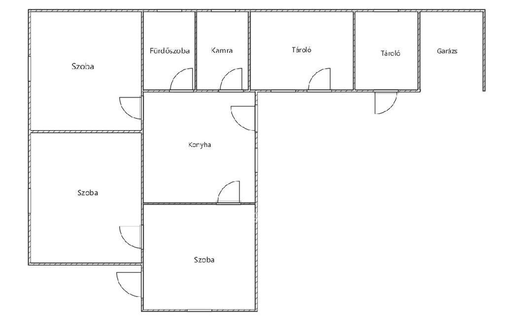
*** Csak az OTP Ingatlanpont kínálatában eladó ***Felújítandó, TÉGLA építésű családi ház eladó Kiskunmajsán! Kiskunmajsa csendes részén eladó egy 87 m2-es, téglaépítésű családi ház, 630 m2-es telken, amely kiváló lehetőség azok számára, akik saját igényeik szerint szeretnék kialakítani otthonukat. Az ingatlan 3 tágas szobával, konyhával, kamrával és fürdőszobával rendelkezik. A ház jelenleg felújítandó állapotú, ugyanakkor szerkezete stabil, a tető jó állapotban van, így kiváló alapot nyújt egy átalakításhoz vagy korszerűsítéshez.
Fűtés jelenleg nincs, azonban kályhás fűtés könnyedén megoldható, korábban is így használták az ingatlant. A meleg vizet villanybojler biztosítja. Jó hír, hogy a villanyhálózatot 2023-ban teljes körűenfelújították, réz vezetékekkel, így ezen a téren már nem szükséges beruházni. A telken található melléképület, amelyben 2 tárolóhelyiség és egy kisebb garázs kapott helyet, ideális műhelynek, raktárnak vagy akár hobbi célokra is. Az ingatlan jelen állapotában, a fűtés hiánya miatt hitelfelvételre nem alkalmas, de ha a vevőnek hitelre van szüksége a vásárláshoz, a tulajdonos gondoskodik a fűtésről, így már igénybevehető jelzáloghitel, CSOK+, vagy Otthon Start hitel is az ingatlan megvásárlásához.
Ez az ingatlan remek választás lehet befektetőknek, felújítást kedvelőknek, vagy mindazoknak, akik nyugodt környezetben, saját elképzeléseik szerint szeretnének otthont teremteni. Ne hagyja ki ezt a lehetőséget Kiskunmajsán! Amennyiben az OTP Ingatlanpont kínálatából választ, számíthat szakmai támogatásunkra a teljes vételi folyamat során az adásvételi szerződés megkötésétől a hitel-ügyintézésen át az ingatlan átadásáig. Ajánlom minden kedves ügyfelem részére az OTP Bank által közvetített Babaváró, CSOK PLUSZ, Otthon Start Hitelprogram vagy egyéb kölcsönök intézését. Az OTP Ingatlanpont kedvezményes pénzügyi konstrukciókkal áll ügyfelei rendelkezésére, és VIP-szolgáltatást nyújt az OTP-hiteltermékek, ügyintézésben. Kedvező hitelajánlatokkal (BABAVÁRÓ hitel, piaci hitel, és szabadfelhasználású hitel) várjuk jelentkezését. Számos konstrukció közül választhatnak. ***VÁLASSZUK KI EGYÜTT AZ ÖNNEK LEGMEGFELELŐBB AJÁNLATOT! BANKI SORBAN ÁLLÁS NÉLKÜL! ***
Fűtés jelenleg nincs, azonban kályhás fűtés könnyedén megoldható, korábban is így használták az ingatlant. A meleg vizet villanybojler biztosítja. Jó hír, hogy a villanyhálózatot 2023-ban teljes körűenfelújították, réz vezetékekkel, így ezen a téren már nem szükséges beruházni. A telken található melléképület, amelyben 2 tárolóhelyiség és egy kisebb garázs kapott helyet, ideális műhelynek, raktárnak vagy akár hobbi célokra is. Az ingatlan jelen állapotában, a fűtés hiánya miatt hitelfelvételre nem alkalmas, de ha a vevőnek hitelre van szüksége a vásárláshoz, a tulajdonos gondoskodik a fűtésről, így már igénybevehető jelzáloghitel, CSOK+, vagy Otthon Start hitel is az ingatlan megvásárlásához.
Ez az ingatlan remek választás lehet befektetőknek, felújítást kedvelőknek, vagy mindazoknak, akik nyugodt környezetben, saját elképzeléseik szerint szeretnének otthont teremteni. Ne hagyja ki ezt a lehetőséget Kiskunmajsán! Amennyiben az OTP Ingatlanpont kínálatából választ, számíthat szakmai támogatásunkra a teljes vételi folyamat során az adásvételi szerződés megkötésétől a hitel-ügyintézésen át az ingatlan átadásáig. Ajánlom minden kedves ügyfelem részére az OTP Bank által közvetített Babaváró, CSOK PLUSZ, Otthon Start Hitelprogram vagy egyéb kölcsönök intézését. Az OTP Ingatlanpont kedvezményes pénzügyi konstrukciókkal áll ügyfelei rendelkezésére, és VIP-szolgáltatást nyújt az OTP-hiteltermékek, ügyintézésben. Kedvező hitelajánlatokkal (BABAVÁRÓ hitel, piaci hitel, és szabadfelhasználású hitel) várjuk jelentkezését. Számos konstrukció közül választhatnak. ***VÁLASSZUK KI EGYÜTT AZ ÖNNEK LEGMEGFELELŐBB AJÁNLATOT! BANKI SORBAN ÁLLÁS NÉLKÜL! ***