Eladó Ház- házrész
Hirdetéskód: 9295269

Bicski Hajnalka

Felújításhoz személyi kölcsönt keres? Kalkuláljon itt! →
FIX 3% Program

Ez a hirdetés megfelelhet a FIX 3%-os programnak.
Tudj meg többet a részletekről itt.

100.00 m2
ALAPTERÜLET
4
SZOBASZÁM
Tégla
ÉPÍTÉS
Hőszivattyú
FŰTÉS
  • CSOK igénybe vehető igen
  • Belső szintek 1
  • Tetőtér beépíthető nem
  • Kilátás Utcai
  • Tájolás Délkelet
  • Ingatlan komfort Duplakomfortos
  • Parkolási lehetőség Udvari beálló
  • Építés éve 2026
  • Fűtés Hőszivattyú
  • Építőanyag Tégla
  • Erkély, terasz Terasz 20.00m2
  • Klíma igen
  • Szigetelt igen
  • Bútorozott nem
  • Akadálymentesített nem
  • Víz telken belül
  • Csatorna telken belül
  • Gáz utcában
  • Villany telken belül

Energetikai besorolás: A+

A+++
A++
A+
A
B
C
D
E
F
G
H
I

Az MBH Bank személyi kölcsön ajánlata

Fizetett hirdetés
1 millió Ft
6 évre
20 585 Ft/hó
THM: 14.5%
Részletek →
2 millió Ft
6 évre
41 169 Ft/hó
THM: 14.5%
Részletek →
3 millió Ft
6 évre
61 754 Ft/hó
THM: 14.5%
Részletek →

A tájékoztatás nem teljes körű és nem minősül ajánlattételnek.

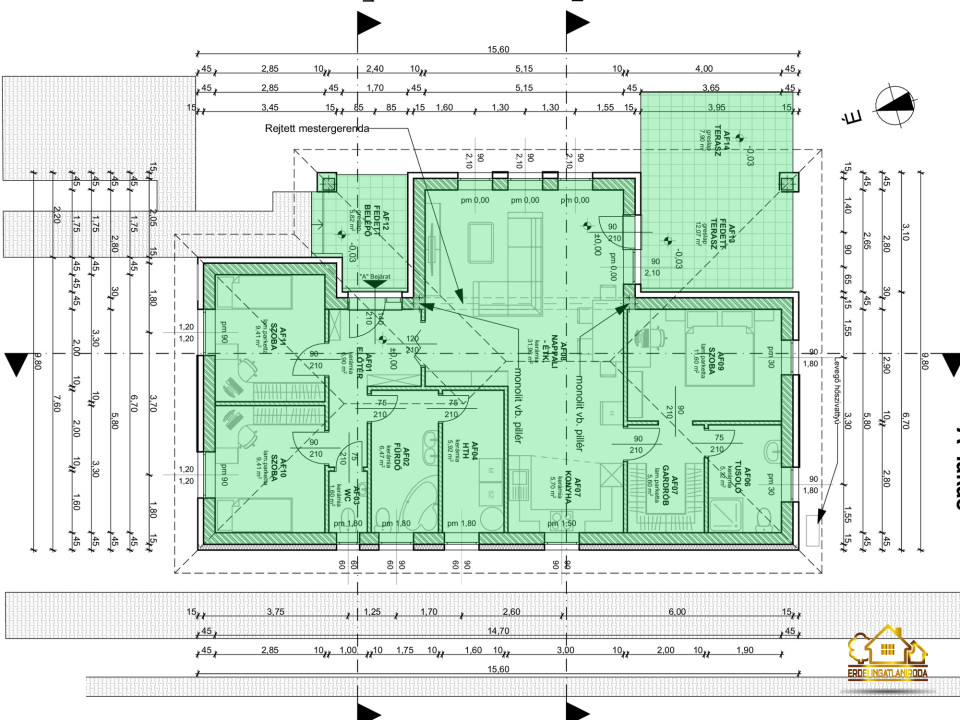
Az ingatlan leírása

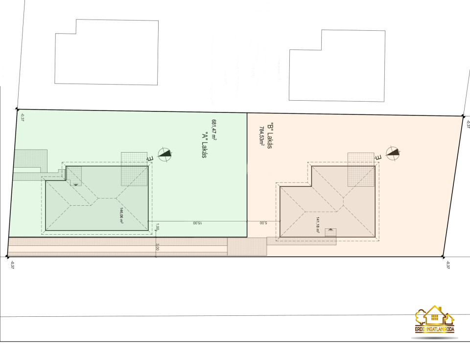
Eladó Kiskunlacházán egy új építésű, nettó 100 m² alapterületű, egyszintes családi ház.

A lakás belső elrendezése rendkívül praktikus és kényelmes 3 hálószoba, gardrób, fürdőszoba, külön WC helyiség, háztartási helyiség és előszoba áll rendelkezésre. A tágas amerikai konyhás nappaliból egy 20 m²-es fedett teraszra jutunk.


 


A saját elkerített telek nagysága 681 m².

Az ingatlan 30-as téglából, 15 cm-es külső hőszigeteléssel, 25 cm-es födémszigeteléssel, 3 rétegű műanyag nyílászárókkal, betoncserép fedéssel épül.

Fűtését megújuló energiás, hőszivattyús rendszer biztosítja, padlófűtéses hőleadással. A meleg víz Ariston villanybojlerről üzemel. A lakás H-tarifás órával és 1X32 A teljesítményű villanyórával kerül átadásra.



Energetikai besorolása A+

A burkolatok igény szerint választhatók, 4 000 Ft/m²-ig.


 


Az ár tartalmazza az utcafronti díszkerítést, térkövezett járdát és kocsibeállót.



A helyi busz megállója, bevásárlási lehetőség, iskola 10 perc sétára található.



CSOK és 3 % -os Otthon Start hitel igényelhető!


 


Várható átadás: 2026 nyár



Bővebb információért keressen bizalommal!

Térkép

Ingatlan adásvétel ügyvédi díja
418 050 Ft
a hirdetésben szereplő ár alapján
  • A vételár 0,45%-a
  • Szerződéscsomag teljeskörű képviselettel
  • Ingyenes tulajdoni lap ellenőrzés
  • Az ÁFA-t már tartalmazza
Érdekel az ajánlat →
A tájékoztatás nem teljes körű és nem minősül ajánlattételnek. Minimum díj: 150 000 Ft, maximum díj: 600 000 Ft. A díj kizárólag lakóingatlan adásvételére vonatkozik.

A hirdető elérhetősége

Erdei Ingatlaniroda

Bicski Hajnalka
+36 30 701