Eladó Ház- házrész
Hirdetéskód: 9289417
GDN Ingatlanhálózat - Sashalom
Felújításhoz személyi kölcsönt keres? Kalkuláljon itt! →
Ez a hirdetés megfelelhet a FIX 3%-os programnak.
Tudj meg többet a részletekről itt.
78.00 m2
ALAPTERÜLET3
SZOBASZÁMnincs megadva
ÉPÍTÉSElektromos
FŰTÉS- CSOK igénybe vehető nem
- Tetőtér beépíthető nem
- Fűtés Elektromos
- Klíma nem
- Szigetelt nem
A+++
A++
A+
A
B
C
D
E
F
G
H
I
Az ingatlan leírása
Dunapart közeli családi ház saját stéggel – Kiskunlacháza üdülőövezetében
Eladásra kínálok Kiskunlacháza közkedvelt, csendes üdülőövezeti részén egy jó állapotú, kanadai fagerendás szerkezetű, dupla szigeteléssel épült családi házat, mindössze pár lépésre a vízparttól.
A 370 m²-es telken elhelyezkedő ingatlan alapterülete 78 m², melyhez egy 20 m²-es fedett, kertre néző terasz kapcsolódik — van hogy a reggeli kávét mókusok társaságában élvezheti az ingatlan gazdája.
A természet közelsége és a Dunapart hangulata ideális választássá teszi állandó otthonnak, nyaralónak vagy befektetésnek is.
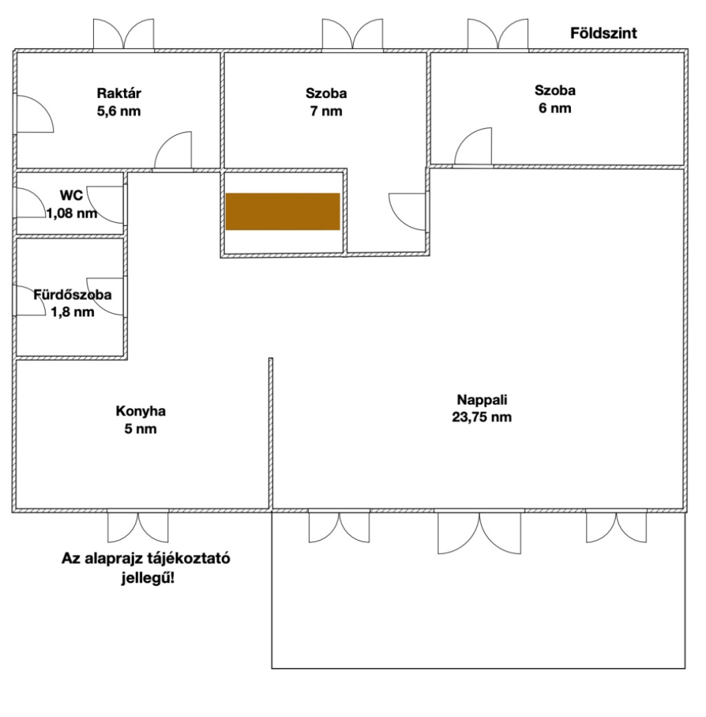
Helyiségek
Földszint:
tágas nappali
külön konyha (új mosogatógéppel)
fürdőszoba masszázszuhannyal
külön WC
tároló
2 félszoba (igény szerint egybenyitható)
Tetőtér:
2 szoba
gardrób
Műszaki tartalom
korszerűsített elektromos hálózat
okosvezérlésű, távirányítható elektromos fűtés
riasztórendszer
új kerítés és elektromos kapu
fa nyílászárók
fúrt kút + kerti csap
kerti tároló
Extra: saját stég
Az ingatlanhoz egy 16 m²-es saját stég is megvásárolható, amely két éve teljes felújításon esett át.
Stég ára: 10.000.000 Ft
Elhelyezkedés
Kiskunlacháza központ: 5 perc autóval
Ráckeve: 8 perc autóval
nyugodt, zöldövezeti környezet
Az ingatlan hitelezhető, valamint per- tehermentes. Díjmentes, bankfüggetlen hiteltanácsadást biztosítunk ügyfeleink számára, melynek keretében hitelcentrumunk az összes elérhető bank és hitelintézet ajánlatát összehasonlítja és versenyezteti az Ön érdekei mentén. A folyamat egyszerű és átlátható: egy személyes vagy telefonos konzultáció során munkatársunk felméri az Ön igényeit és lehetőségeit, majd ezek alapján a bankok számára optimalizált ajánlatokat kér be. Célunk, hogy Ön hosszú távon is a legkedvezőbb, legbiztonságosabb finanszírozási konstrukciót kapja meg. A beérkezett ajánlatok közül végül Ön hozza meg a döntést, teljes körű szakmai támogatás mellett.
Ha felkeltette az érdeklődését, ne habozzon — jöjjön el, nézzük meg együtt és hagyja, hogy ez a csodás környezet Önt is elvarázsolja. ...TOVÁBBI, TÖBBEZRES INGATLAN KÍNÁLAT: - GDN azonosító: 393180
Eladásra kínálok Kiskunlacháza közkedvelt, csendes üdülőövezeti részén egy jó állapotú, kanadai fagerendás szerkezetű, dupla szigeteléssel épült családi házat, mindössze pár lépésre a vízparttól.
A 370 m²-es telken elhelyezkedő ingatlan alapterülete 78 m², melyhez egy 20 m²-es fedett, kertre néző terasz kapcsolódik — van hogy a reggeli kávét mókusok társaságában élvezheti az ingatlan gazdája.
A természet közelsége és a Dunapart hangulata ideális választássá teszi állandó otthonnak, nyaralónak vagy befektetésnek is.
Helyiségek
Földszint:
tágas nappali
külön konyha (új mosogatógéppel)
fürdőszoba masszázszuhannyal
külön WC
tároló
2 félszoba (igény szerint egybenyitható)
Tetőtér:
2 szoba
gardrób
Műszaki tartalom
korszerűsített elektromos hálózat
okosvezérlésű, távirányítható elektromos fűtés
riasztórendszer
új kerítés és elektromos kapu
fa nyílászárók
fúrt kút + kerti csap
kerti tároló
Extra: saját stég
Az ingatlanhoz egy 16 m²-es saját stég is megvásárolható, amely két éve teljes felújításon esett át.
Stég ára: 10.000.000 Ft
Elhelyezkedés
Kiskunlacháza központ: 5 perc autóval
Ráckeve: 8 perc autóval
nyugodt, zöldövezeti környezet
Az ingatlan hitelezhető, valamint per- tehermentes. Díjmentes, bankfüggetlen hiteltanácsadást biztosítunk ügyfeleink számára, melynek keretében hitelcentrumunk az összes elérhető bank és hitelintézet ajánlatát összehasonlítja és versenyezteti az Ön érdekei mentén. A folyamat egyszerű és átlátható: egy személyes vagy telefonos konzultáció során munkatársunk felméri az Ön igényeit és lehetőségeit, majd ezek alapján a bankok számára optimalizált ajánlatokat kér be. Célunk, hogy Ön hosszú távon is a legkedvezőbb, legbiztonságosabb finanszírozási konstrukciót kapja meg. A beérkezett ajánlatok közül végül Ön hozza meg a döntést, teljes körű szakmai támogatás mellett.
Ha felkeltette az érdeklődését, ne habozzon — jöjjön el, nézzük meg együtt és hagyja, hogy ez a csodás környezet Önt is elvarázsolja. ...TOVÁBBI, TÖBBEZRES INGATLAN KÍNÁLAT: - GDN azonosító: 393180