Eladó Ház- házrész
Hirdetéskód: 9313133
OTP Ingatlanpont Csongrád
Felújításhoz személyi kölcsönt keres? Kalkuláljon itt! →135.00 m2
ALAPTERÜLET3
SZOBASZÁMnincs megadva
ÉPÍTÉSGáz (cirkó)
FŰTÉS- CSOK igénybe vehető nem
- Tetőtér beépíthető nem
- Építés éve 1984
- Fűtés Gáz (cirkó)
- Klíma nem
- Szigetelt nem
A+++
A++
A+
A
B
C
D
E
F
G
H
I
Az ingatlan leírása
Kétszintes családi ház eladó Kiskőrös kedvelt utcájában, sok lehetőséggel!
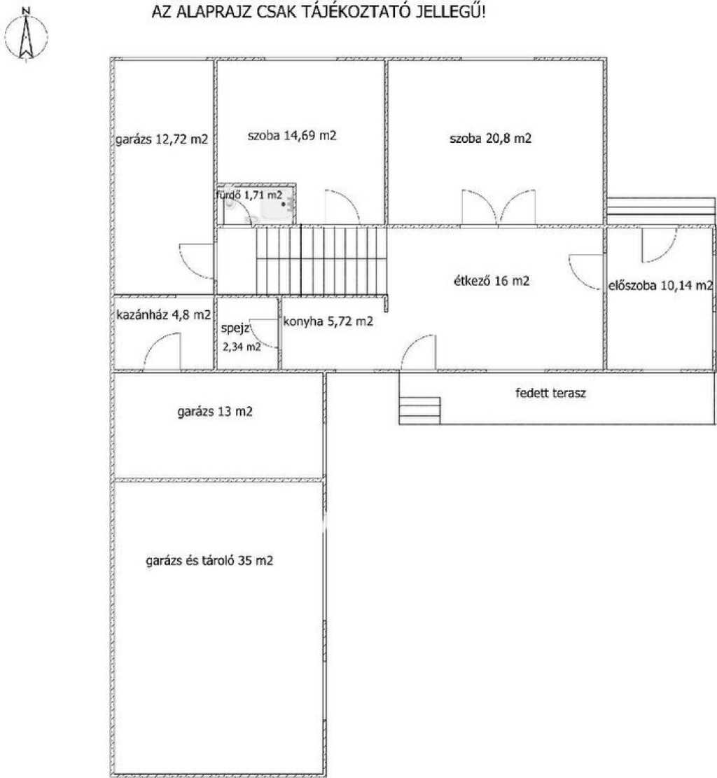
Bács-Kiskun vármegyében, Kiskőrös egyik közkedvelt, nyugodt utcájában eladó egy 1984-ben épült, kétszintes, 135 m2-es családi ház, 758 m2-es telken.
Az ingatlan vasalt beton alapra épült, tégla falazattal, stabil szerkezettel, praktikus elrendezéssel.
A ház elosztása:
Földszint: 2 szoba, konyha étkezővel, spejz, zuhanyzós fürdőszoba WC-vel, előszoba
Tetőtér: 2 szoba, .tágas fürdőszoba káddal, gardrób
A fűtés központi rendszerrel megoldott, amely gázkazánnal vagy vegyes tüzelésű kazánnal is működtethető. A kazánház a garázson keresztül, közvetlenül a házból közelíthető meg, ami kényelmes és praktikus megoldás.
Telek és melléképület
A 758 m2-es telken egy különálló melléképület is található, amelyben: egy garázs valamint egy kb. 35 m2-es helyiség kapott helyet. Ez a rész műhelynek, üzlethelyiségnek vagy akár külön lakrésznek is kialakítható.
Lehetőségek:
Az ingatlan méretének és elhelyezkedésének köszönhetően kiváló választás lehet:
-több generáció együttélésére
-vállalkozás indítására
-vendégház kialakítására
Vásárló ügyfeleink számára díjmentes hiteltanácsadást és teljes körű ügyintézést biztosítunk, valamint a piaci hiteleknél kedvezőbb konstrukciók elérésében is segítünk.
További információért vagy megtekintés egyeztetéséhez keressen bizalommal!
Bács-Kiskun vármegyében, Kiskőrös egyik közkedvelt, nyugodt utcájában eladó egy 1984-ben épült, kétszintes, 135 m2-es családi ház, 758 m2-es telken.
Az ingatlan vasalt beton alapra épült, tégla falazattal, stabil szerkezettel, praktikus elrendezéssel.
A ház elosztása:
Földszint: 2 szoba, konyha étkezővel, spejz, zuhanyzós fürdőszoba WC-vel, előszoba
Tetőtér: 2 szoba, .tágas fürdőszoba káddal, gardrób
A fűtés központi rendszerrel megoldott, amely gázkazánnal vagy vegyes tüzelésű kazánnal is működtethető. A kazánház a garázson keresztül, közvetlenül a házból közelíthető meg, ami kényelmes és praktikus megoldás.
Telek és melléképület
A 758 m2-es telken egy különálló melléképület is található, amelyben: egy garázs valamint egy kb. 35 m2-es helyiség kapott helyet. Ez a rész műhelynek, üzlethelyiségnek vagy akár külön lakrésznek is kialakítható.
Lehetőségek:
Az ingatlan méretének és elhelyezkedésének köszönhetően kiváló választás lehet:
-több generáció együttélésére
-vállalkozás indítására
-vendégház kialakítására
Vásárló ügyfeleink számára díjmentes hiteltanácsadást és teljes körű ügyintézést biztosítunk, valamint a piaci hiteleknél kedvezőbb konstrukciók elérésében is segítünk.
További információért vagy megtekintés egyeztetéséhez keressen bizalommal!