Eladó Ház- házrész
Hirdetéskód: 9291256

Győr Bajcsy-Zsilinszky út 27 - OTP Ingatlanpont Iroda

Felújításhoz személyi kölcsönt keres? Kalkuláljon itt! →
190.00 m2
ALAPTERÜLET
4
SZOBASZÁM
nincs megadva
ÉPÍTÉS
nincs megadva
FŰTÉS
  • CSOK igénybe vehető nem
  • Tetőtér beépíthető nem
  • Építés éve 1980
  • Klíma nem
  • Szigetelt nem
Energetikai besorolás: Nincs meghatározva
A+++
A++
A+
A
B
C
D
E
F
G
H
I

Az MBH Bank személyi kölcsön ajánlata

Fizetett hirdetés
1 millió Ft
6 évre
20 585 Ft/hó
THM: 14.5%
Részletek →
2 millió Ft
6 évre
41 169 Ft/hó
THM: 14.5%
Részletek →
3 millió Ft
6 évre
61 754 Ft/hó
THM: 14.5%
Részletek →

A tájékoztatás nem teljes körű és nem minősül ajánlattételnek.

Az ingatlan leírása

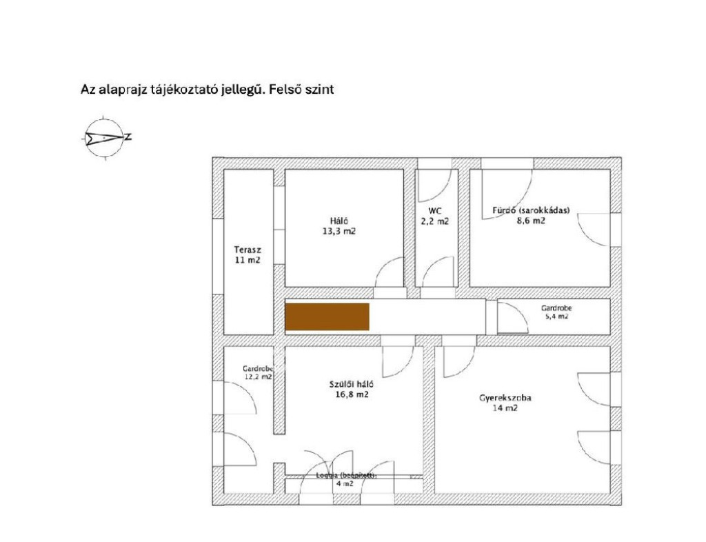
Győr-Moson-Sopron vármegyében, 10 percre Győrtől és az M1 autópályától, Kisbajcson kínálunk megvételre egy minden szempontból kitűnő adottságokkal rendelkező ingatlant. A mindösszesen 3.710 m2-es telken fekvő, nettó 190 m2-es ház, egy igazi családi otthon. Aszfaltos úton megközelíthető, csendes, átmenő forgalomtól mentes, családi házas övezetben helyezkedik el. Az egész telek karbantartott, összközműves, tele ősfákkal, füvesített, fúrt kút van a locsoláshoz. A tégla szerkezetű ház a 80-as években épült, mostanra már szigetelt, stabil beton alappal jól meg lett építve. A 4 élhető méretű szoba konyhával, étkezővel, külön WC és fürdővel mindkét szinten. A fűtést és meleg vizet, gáz kazán biztosítja radiátoros hőleadással. A nyílászárók le lettek cserélve thermo üvegre, az alsó szinten műanyag, míg a felső szinten fa tokozatúra. Sok ablak és fény jellemzi a házat, jó helykihasználással és elrendezéssel. Az alsó szint déli részén van a 28 m2-es fedett terasz. Az északi tájolású nappali hűvös marad nyáron, a téli időszakban pedig egy méretes kandalló szolgálja a kényelmet és meghittséget, amely most is működik. A felső szinten helyezkedik el a szülői háló, amelyhez kapcsolódik egy méretes (12 m2) gardrób, és egy beépített loggia, és további két szoba, egy újabb gardrób a ruha tárolására, egy sarok kádas fürdő és külön WC, na meg a 11 m2-es terasz.
Gépkocsi tárolására a házban van egy 16 m2-es garázs, ezen kívűl az udvarban egy három állásos garázs is van, tárolásra pedig egy 28 m2-es fészer.
Az ingatlan megvásárlásához igénybe vehető az Otthon Start Program.
Amennyiben felkeltette érdeklődését, keressen bizalommal elérhetőségeimen.

Térkép

A hirdető elérhetősége

Győr Bajcsy-Zsilinszky út 27 - OTP Ingatlanpont Iroda

Vörös Brigitta
+36 30 650