Eladó Ház- házrész
Hirdetéskód: 9301734
Csordás Ingatlan
Felújításhoz személyi kölcsönt keres? Kalkuláljon itt! →
Ez a hirdetés megfelelhet a FIX 3%-os programnak.
Tudj meg többet a részletekről itt.
80.00 m2
ALAPTERÜLET3
SZOBASZÁMnincs megadva
ÉPÍTÉSGáz (cirkó)
FŰTÉS- Belső szintek 2
- Építés éve 2026
- Fűtés Gáz (cirkó)
A+++
A++
A+
A
B
C
D
E
F
G
H
I
Az ingatlan leírása
ÚJ ÉPÍTÉSŰ, ENERGIA TAKARÉKOS családi ház eladó Királyszentistvánon.
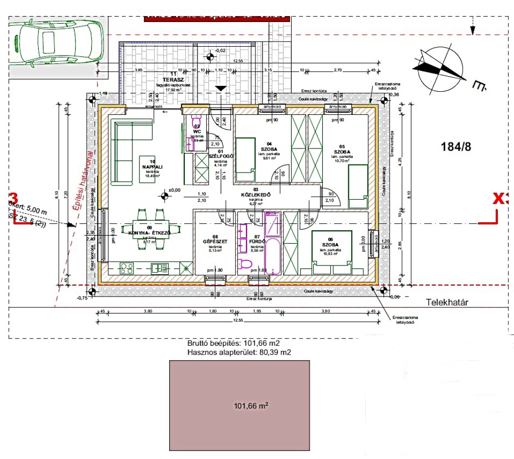
A MODERN, 80,39 m2 hasznos alapterületű, bruttó 101,66 m2-es, egyszintes családi ház külön utcáról megközelíthető, 417 m²-es telken valósul meg. A 3 szoba + nappalis családi ház kulcsrakész átadása 2027. tavaszra várható. A kiváló tájolású telekről körbe tekintve POMPÁS PANORÁMÁBAN gyönyörködhetünk a bakonyi dombokra és a Balatonra egyaránt.
A házba belépve egy kényelmes méretű előszobába érkezünk. Az előtérből nyílik egy külön WC kézmosóval. Jobbra egy IGAZÁN TÁGAS NAPPALI KONYHA-ÉTKEZŐVEL egy légtérben, ahonnan közvetlenül léphetünk ki a TÁGAS, 18 M2-NYI, NYUGATI FEKVÉSŰ, BURKOLT TERASZRA. A bejárattal szemben a gépészetet magában foglaló háztartási helyiség van. A bejárattól balra a három, JÓL BÚTOROZHATÓ, VILÁGOS HÁLÓSZOBA, valamint a TÁGAS FÜRDŐSZOBA található.
Az ENERGIATAKARÉKOS HÁZ korszerű műszaki tartalommal és szerkezettel épül:
- 30 cm-es Ytong falazat
- 15 cm-es homlokzati hőszigetelés
- 30 cm-es kőzetgyapot födémszigetelés
- 15 cm-es hőszigetelés az aljzatban
Cserép fedésű tető
- Hőszivattyús padlófűtésű rendszer
- Háromrétegű műanyag nyílászárók, a redőnyökhöz elektromos előkészítéssel
- Hideg- és meleg burkolatok egyedi kiválasztási lehetőséggel
- (meleg burkolat 8.000 Ft/m², hidegburkolat 11.000 Ft/m²)
- Beltéri ajtók 70.000ft-/db áron szerepelnek az árban
- tartalmazza az 5kW teljesítményű, sziget rendszerű napelem rendszert
- 1 db 3,5kw hűtő-fűtő klíma
Igény esetén lehetőség van garázs vagy féltető megvalósítására is, illetve a belső térkialakítás személyre szabására külön megállapodás alapján.
HIBÁTLAN VÁLASZTÁS ez a RENDKÍVÜL ALACSONY REZSIVEL rendelkező, modern családi otthon.
HÍVJON, hogy Öné legyen ez a remek adottságú ingatlan!
A kivitelező két évtizedes építési tapasztalattal rendelkezik, így megbízható, rugalmas és magas minőségű kivitelezést biztosít.
A vásárláshoz CSOK PLUSZ, FALUSI CSOK, ILLETÉKMENTESSÉG, OTTHON START HITEL igényelhető.
Bankfüggetlen INGYENES hitelügyintézés, INGYENES CSOK ügyintézés. Ön csak kitalálja, mire keres megoldást és nyugodtan hátra dőlhet, a többit elintézzük.
A MODERN, 80,39 m2 hasznos alapterületű, bruttó 101,66 m2-es, egyszintes családi ház külön utcáról megközelíthető, 417 m²-es telken valósul meg. A 3 szoba + nappalis családi ház kulcsrakész átadása 2027. tavaszra várható. A kiváló tájolású telekről körbe tekintve POMPÁS PANORÁMÁBAN gyönyörködhetünk a bakonyi dombokra és a Balatonra egyaránt.
A házba belépve egy kényelmes méretű előszobába érkezünk. Az előtérből nyílik egy külön WC kézmosóval. Jobbra egy IGAZÁN TÁGAS NAPPALI KONYHA-ÉTKEZŐVEL egy légtérben, ahonnan közvetlenül léphetünk ki a TÁGAS, 18 M2-NYI, NYUGATI FEKVÉSŰ, BURKOLT TERASZRA. A bejárattal szemben a gépészetet magában foglaló háztartási helyiség van. A bejárattól balra a három, JÓL BÚTOROZHATÓ, VILÁGOS HÁLÓSZOBA, valamint a TÁGAS FÜRDŐSZOBA található.
Az ENERGIATAKARÉKOS HÁZ korszerű műszaki tartalommal és szerkezettel épül:
- 30 cm-es Ytong falazat
- 15 cm-es homlokzati hőszigetelés
- 30 cm-es kőzetgyapot födémszigetelés
- 15 cm-es hőszigetelés az aljzatban
Cserép fedésű tető
- Hőszivattyús padlófűtésű rendszer
- Háromrétegű műanyag nyílászárók, a redőnyökhöz elektromos előkészítéssel
- Hideg- és meleg burkolatok egyedi kiválasztási lehetőséggel
- (meleg burkolat 8.000 Ft/m², hidegburkolat 11.000 Ft/m²)
- Beltéri ajtók 70.000ft-/db áron szerepelnek az árban
- tartalmazza az 5kW teljesítményű, sziget rendszerű napelem rendszert
- 1 db 3,5kw hűtő-fűtő klíma
Igény esetén lehetőség van garázs vagy féltető megvalósítására is, illetve a belső térkialakítás személyre szabására külön megállapodás alapján.
HIBÁTLAN VÁLASZTÁS ez a RENDKÍVÜL ALACSONY REZSIVEL rendelkező, modern családi otthon.
HÍVJON, hogy Öné legyen ez a remek adottságú ingatlan!
A kivitelező két évtizedes építési tapasztalattal rendelkezik, így megbízható, rugalmas és magas minőségű kivitelezést biztosít.
A vásárláshoz CSOK PLUSZ, FALUSI CSOK, ILLETÉKMENTESSÉG, OTTHON START HITEL igényelhető.
Bankfüggetlen INGYENES hitelügyintézés, INGYENES CSOK ügyintézés. Ön csak kitalálja, mire keres megoldást és nyugodtan hátra dőlhet, a többit elintézzük.