Eladó Ház- házrész
Hirdetéskód: 9301539

Csordás Ingatlan

Felújításhoz személyi kölcsönt keres? Kalkuláljon itt! →
FIX 3% Program

Ez a hirdetés megfelelhet a FIX 3%-os programnak.
Tudj meg többet a részletekről itt.

80.00 m2
ALAPTERÜLET
4
SZOBASZÁM
Tégla
ÉPÍTÉS
Padlófűtés
FŰTÉS
  • CSOK igénybe vehető igen
  • Kilátás Panorámás
  • Tájolás Délnyugat
  • Ingatlan komfort Összkomfortos
  • Parkolási lehetőség Udvari beálló
  • Építés éve 2026
  • Fűtés Padlófűtés
  • Építőanyag Tégla
  • Erkély, terasz Terasz 22.00m2
  • Klíma igen
  • Szigetelt igen
  • Víz telken belül
  • Csatorna telken belül
  • Gáz nincs
  • Villany telken belül

Energetikai besorolás: A+

A+++
A++
A+
A
B
C
D
E
F
G
H
I

Az MBH Bank személyi kölcsön ajánlata

Fizetett hirdetés
1 millió Ft
6 évre
20 585 Ft/hó
THM: 14.5%
Részletek →
2 millió Ft
6 évre
41 169 Ft/hó
THM: 14.5%
Részletek →
3 millió Ft
6 évre
61 754 Ft/hó
THM: 14.5%
Részletek →

A tájékoztatás nem teljes körű és nem minősül ajánlattételnek.

Az ingatlan leírása

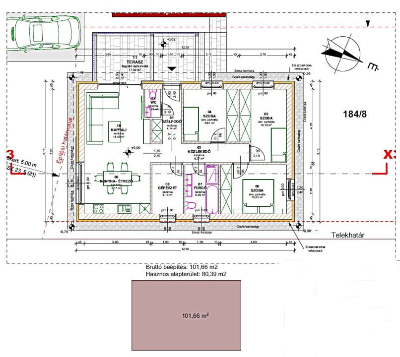
ÚJ ÉPÍTÉSŰ, ENERGIA TAKARÉKOS családi ház eladó Királyszentistvánon.


  A MODERN, 80,39 m2 hasznos alapterületű, bruttó 101,66 m2-es, egyszintes családi ház külön utcáról megközelíthető, 417 m²-es telken valósul meg. A 3 szoba + nappalis családi ház kulcsrakész átadása 2027. tavaszra várható. A kiváló tájolású telekről körbe tekintve POMPÁS PANORÁMÁBAN gyönyörködhetünk a bakonyi dombokra és a Balatonra egyaránt.


   A házba belépve egy kényelmes méretű előszobába érkezünk. Az előtérből nyílik egy külön WC kézmosóval. Jobbra egy IGAZÁN TÁGAS NAPPALI KONYHA-ÉTKEZŐVEL egy légtérben, ahonnan közvetlenül léphetünk ki a TÁGAS, 18 M2-NYI, NYUGATI FEKVÉSŰ, BURKOLT TERASZRA. A bejárattal szemben a gépészetet magában foglaló háztartási helyiség van. A bejárattól balra a három, JÓL BÚTOROZHATÓ, VILÁGOS HÁLÓSZOBA, valamint a TÁGAS FÜRDŐSZOBA található.


        Az ENERGIATAKARÉKOS HÁZ korszerű műszaki tartalommal és szerkezettel épül:
       - 30 cm-es Ytong falazat
       - 15 cm-es homlokzati hőszigetelés
       - 30 cm-es kőzetgyapot födémszigetelés
       - 15 cm-es hőszigetelés az aljzatban



  • Cserép fedésű tető


- Hőszivattyús padlófűtésű rendszer
- Háromrétegű műanyag nyílászárók, a redőnyökhöz elektromos előkészítéssel
- Hideg- és meleg burkolatok egyedi kiválasztási lehetőséggel
- (meleg burkolat 8.000 Ft/m², hidegburkolat 11.000 Ft/m²)
- Beltéri ajtók 70.000ft-/db áron szerepelnek az árban
- tartalmazza az 5kW teljesítményű, sziget rendszerű napelem rendszert


-  1 db 3,5kw hűtő-fűtő klíma
Igény esetén lehetőség van garázs vagy féltető megvalósítására is, illetve a belső térkialakítás személyre szabására külön megállapodás alapján.


HIBÁTLAN VÁLASZTÁS ez a RENDKÍVÜL ALACSONY REZSIVEL rendelkező, modern családi otthon.


                  HÍVJON, hogy Öné legyen ez a remek adottságú ingatlan!
A kivitelező két évtizedes építési tapasztalattal rendelkezik, így megbízható, rugalmas és magas minőségű kivitelezést biztosít. 


A vásárláshoz CSOK PLUSZ, FALUSI CSOK, ILLETÉKMENTESSÉG, OTTHON START HITEL igényelhető.


                  Bankfüggetlen INGYENES hitelügyintézés, INGYENES CSOK ügyintézés. Ön csak kitalálja, mire keres megoldást és nyugodtan hátra dőlhet, a többit elintézzük.

Térkép

Ingatlan adásvétel ügyvédi díja
376 200 Ft
a hirdetésben szereplő ár alapján
  • A vételár 0,45%-a
  • Szerződéscsomag teljeskörű képviselettel
  • Ingyenes tulajdoni lap ellenőrzés
  • Az ÁFA-t már tartalmazza
Érdekel az ajánlat →
A tájékoztatás nem teljes körű és nem minősül ajánlattételnek. Minimum díj: 150 000 Ft, maximum díj: 600 000 Ft. A díj kizárólag lakóingatlan adásvételére vonatkozik.

A hirdető elérhetősége

Csordás Ingatlan

Csordás János
+36 20 460