Eladó Ház- házrész
Hirdetéskód: 9222302
Veszprém Kossuth utca 8 - OTP Ingatlanpont Iroda
Felújításhoz személyi kölcsönt keres? Kalkuláljon itt! →
Ez a hirdetés megfelelhet a FIX 3%-os programnak.
Tudj meg többet a részletekről itt.
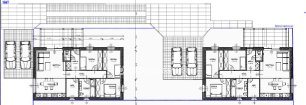
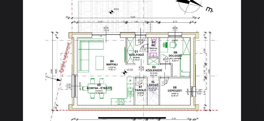
80.00 m2
ALAPTERÜLET4
SZOBASZÁMnincs megadva
ÉPÍTÉSEgyéb fűtés
FŰTÉS- CSOK igénybe vehető nem
- Belső szintek 1
- Tetőtér beépíthető nem
- Építés éve 2026
- Fűtés Egyéb fűtés
- Klíma nem
- Szigetelt nem
A+++
A++
A+
A
B
C
D
E
F
G
H
I
Az ingatlan leírása
Balatonfűzfőtől 7 km-re, Királyszentistvánon prémium újépítésű családi házak leköthetőek csodás tájpanorámával!
Az ingatlanok kivitelezésének indulása 2026. február 20.
2026-ban ajándékba jár az ingatlanokhoz 5kW-os sziget üzemű napelem rendszer és annak telepítése, valamint 1 db 3,5kW-os klíma.
Most még teljes mértékben Ön döntheti el milyen otthont szeretne:
-80 nm vagy 125nm?
-földszintes vagy emeletes?
-3 vagy 4 szobás?
-kék, barna vagy zöld burkolatok?
Nem kell kompromisszumot kötnie, hiszen a kivitelező partner az elképzelései megvalósításában.
Mindezt prémium megoldásokkal, energiatakarékos kivitelezéssel, minőségi környezetben.
- Ytong falazat
- 20 cm-es homlokzati hőszigetelés
- 30 cm-es kőzetgyapot tetőszigetelés
- 15 cm-es aljzatszigetelés
Műszaki tartalom:
-Hőszivattyús fűtésrendszer
-3 rétegű műanyag nyílászárók
-Egyedileg választható hideg-és melegburkolatok a megadott keretek közt
-Egyedileg választható beltéri ajtók
-Napelem rendszer
-Hűtő-fűtő klíma
Ugye Ön sem szeretne lemaradni erről az egyedülálló lehetőségről!
Hívjon még ma a részletek miatt és tegye le voksát egy modern és kényelmes otthon mellett!
Az ingatlanok kivitelezésének indulása 2026. február 20.
2026-ban ajándékba jár az ingatlanokhoz 5kW-os sziget üzemű napelem rendszer és annak telepítése, valamint 1 db 3,5kW-os klíma.
Most még teljes mértékben Ön döntheti el milyen otthont szeretne:
-80 nm vagy 125nm?
-földszintes vagy emeletes?
-3 vagy 4 szobás?
-kék, barna vagy zöld burkolatok?
Nem kell kompromisszumot kötnie, hiszen a kivitelező partner az elképzelései megvalósításában.
Mindezt prémium megoldásokkal, energiatakarékos kivitelezéssel, minőségi környezetben.
- Ytong falazat
- 20 cm-es homlokzati hőszigetelés
- 30 cm-es kőzetgyapot tetőszigetelés
- 15 cm-es aljzatszigetelés
Műszaki tartalom:
-Hőszivattyús fűtésrendszer
-3 rétegű műanyag nyílászárók
-Egyedileg választható hideg-és melegburkolatok a megadott keretek közt
-Egyedileg választható beltéri ajtók
-Napelem rendszer
-Hűtő-fűtő klíma
Ugye Ön sem szeretne lemaradni erről az egyedülálló lehetőségről!
Hívjon még ma a részletek miatt és tegye le voksát egy modern és kényelmes otthon mellett!