Eladó Ház- házrész
Hirdetéskód: 9213619
OTP Ingatlanpont Siófok
96 m2
ALAPTERÜLET2
SZOBASZÁMnincs megadva
ÉPÍTÉSnincs megadva
FŰTÉS- CSOK igénybe vehető nem
- Tetőtér beépíthető nem
- Építés éve 1980
- Klíma nem
- Szigetelt nem
A+++
A++
A+
A
B
C
D
E
F
G
H
I
Az ingatlan leírása
Balatoni településen ELADÓ felújított sorházi lakás Keszthely üdülőövezetében, a Balaton közelében
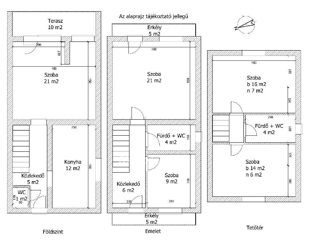
Keszthely egyik kedvelt üdülőövezetében eladó egy hangulatos, 96 m2-es háromszintes sorházi lakás, amely az 1980-as években épült, de az elmúlt években teljes körű felújításon esett át. Az épület téglafalai 10 cm vastag hőszigetelést kaptak, a tetőfedés korszerű cserepeslemezre lett cserélve. A modernizálás részeként minden nyílászáró új, háromrétegű üvegezésű ablakra lett cserélve, továbbá megújult a villamos és fűtésrendszer is.
A ház fűtését fatüzelésű kályha és egy 800 literes puffertartály biztosítja, amely a radiátoros rendszeren keresztül oszlatja el a meleget.
A lakáshoz egy tágas terasz, valamint gondozott, hangulatos, 300 m2-es kertrész tartozik, kerti sütögetővel és tárolóval. Az udvaron két autó számára kialakított kocsibeálló áll rendelkezésre.
Az ingatlan elhelyezkedése ideális: a Balaton partja néhány száz méterre található, a legközelebbi strandok gyalogosan mindössze 10-15 perc alatt megközelíthetők. A környék csendes, mégis közel van a város szolgáltatásaihoz és a tóparti kikapcsolódási lehetőségekhez.
Amennyiben felkeltette érdeklődését és szeretné megtekinteni személyesen is az ingatlant kérem hívjon!
Keszthely egyik kedvelt üdülőövezetében eladó egy hangulatos, 96 m2-es háromszintes sorházi lakás, amely az 1980-as években épült, de az elmúlt években teljes körű felújításon esett át. Az épület téglafalai 10 cm vastag hőszigetelést kaptak, a tetőfedés korszerű cserepeslemezre lett cserélve. A modernizálás részeként minden nyílászáró új, háromrétegű üvegezésű ablakra lett cserélve, továbbá megújult a villamos és fűtésrendszer is.
A ház fűtését fatüzelésű kályha és egy 800 literes puffertartály biztosítja, amely a radiátoros rendszeren keresztül oszlatja el a meleget.
A lakáshoz egy tágas terasz, valamint gondozott, hangulatos, 300 m2-es kertrész tartozik, kerti sütögetővel és tárolóval. Az udvaron két autó számára kialakított kocsibeálló áll rendelkezésre.
Az ingatlan elhelyezkedése ideális: a Balaton partja néhány száz méterre található, a legközelebbi strandok gyalogosan mindössze 10-15 perc alatt megközelíthetők. A környék csendes, mégis közel van a város szolgáltatásaihoz és a tóparti kikapcsolódási lehetőségekhez.
Amennyiben felkeltette érdeklődését és szeretné megtekinteni személyesen is az ingatlant kérem hívjon!