Eladó Ház- házrész
Hirdetéskód: 9197286
GDN Ingatlanhálózat - Örs Vezér tér
Felújításhoz személyi kölcsönt keres? Kalkuláljon itt! →
Ez a hirdetés megfelelhet a FIX 3%-os programnak.
Tudj meg többet a részletekről itt.
108.00 m2
ALAPTERÜLET4
SZOBASZÁMnincs megadva
ÉPÍTÉSEgyéb fűtés
FŰTÉS- CSOK igénybe vehető nem
- Tetőtér beépíthető nem
- Fűtés Egyéb fűtés
- Klíma nem
- Szigetelt nem
A+++
A++
A+
A
B
C
D
E
F
G
H
I
Az ingatlan leírása
Panoráma. Kert. Terasz.
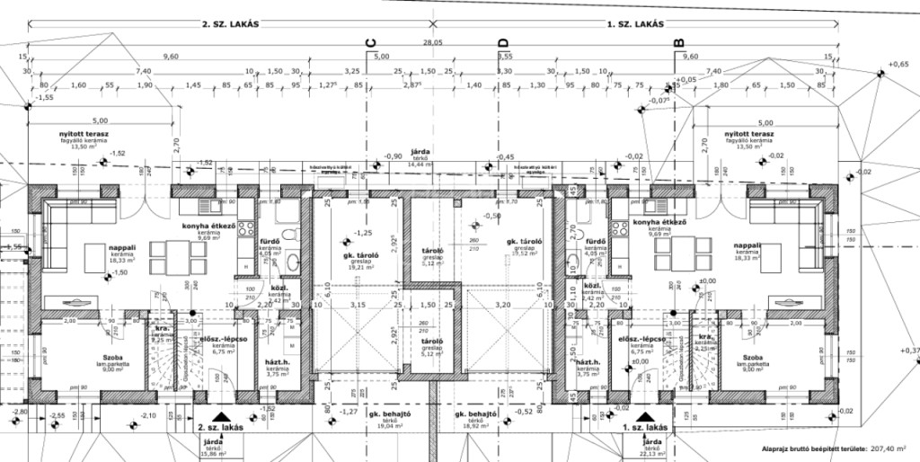
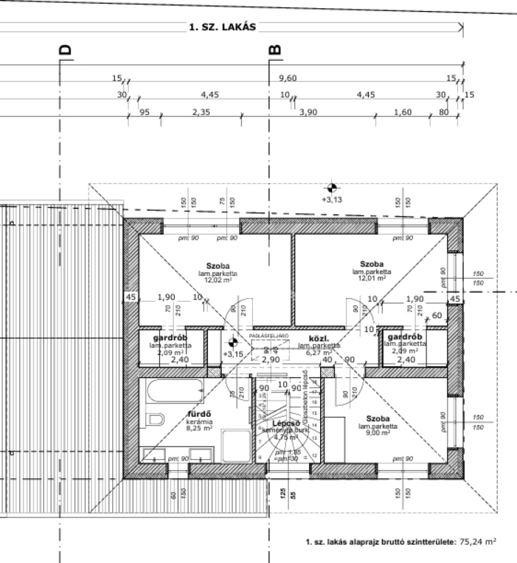
Eladó Kerepes legszebb részén, a Panoráma lakóparkban egy 134 m²-es, félig kész ikerházfél 390 m² saját telekkel és 13 m² terasszal – most bevezető áron: 65,5 millió Ft-ért.(Az ár a jelenlegi, befejezés előtti állapotra vonatkozik.) A közcsatornázás 2027 eleji moratóriumfeloldásig fúrt kúttal és szikkasztóval megoldott, így a mindennapi használat biztosított. Az ikerházfél akár egyben is megvásárolható a másik féllel!
A nettó 108 m²-es lakótérhez garázs, tároló és padlás tartozik. Az alsó szinten amerikai konyhás nappali, teraszkapcsolat és vendégszoba, az emeleten három külön nyíló szoba és tágas fürdő kapott helyet. A telekről lenyűgöző örökpanoráma nyílik, a környék csendes, mégis könnyen elérhető Budapest.
Ritka lehetőség: saját igényeid szerint fejezheted be, miközben már most értéket képvisel – CSOK és államilag támogatott hitel is igénybe vehető. ...TOVÁBBI, TÖBBEZRES INGATLAN KÍNÁLAT: - GDN azonosító: 388995
Eladó Kerepes legszebb részén, a Panoráma lakóparkban egy 134 m²-es, félig kész ikerházfél 390 m² saját telekkel és 13 m² terasszal – most bevezető áron: 65,5 millió Ft-ért.(Az ár a jelenlegi, befejezés előtti állapotra vonatkozik.) A közcsatornázás 2027 eleji moratóriumfeloldásig fúrt kúttal és szikkasztóval megoldott, így a mindennapi használat biztosított. Az ikerházfél akár egyben is megvásárolható a másik féllel!
A nettó 108 m²-es lakótérhez garázs, tároló és padlás tartozik. Az alsó szinten amerikai konyhás nappali, teraszkapcsolat és vendégszoba, az emeleten három külön nyíló szoba és tágas fürdő kapott helyet. A telekről lenyűgöző örökpanoráma nyílik, a környék csendes, mégis könnyen elérhető Budapest.
Ritka lehetőség: saját igényeid szerint fejezheted be, miközben már most értéket képvisel – CSOK és államilag támogatott hitel is igénybe vehető. ...TOVÁBBI, TÖBBEZRES INGATLAN KÍNÁLAT: - GDN azonosító: 388995