Eladó Ház- házrész
Hirdetéskód: 9143827
HOUSE36 Ingatlanhálózat
Felújításhoz személyi kölcsönt keres? Kalkuláljon itt! →
Ez a hirdetés megfelelhet a FIX 3%-os programnak.
Tudj meg többet a részletekről itt.
119.00 m2
ALAPTERÜLET4
SZOBASZÁMnincs megadva
ÉPÍTÉSnincs megadva
FŰTÉS- CSOK igénybe vehető nem
- Tetőtér beépíthető nem
- Építés éve 2025
- Klíma nem
- Szigetelt nem
A+++
A++
A+
A
B
C
D
E
F
G
H
I
Az ingatlan leírása
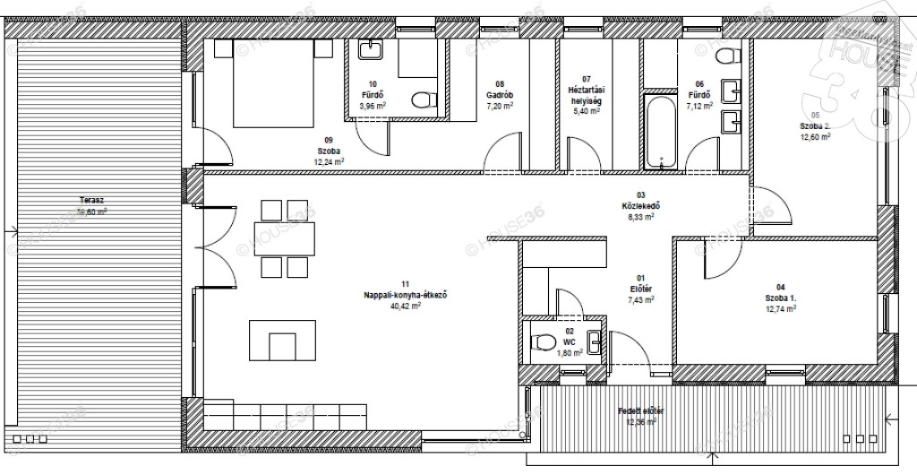
Eladó ÚJ nappali + 3 szobás 119,24 m2-es családi ház 39,6+12,36 m2-es terasszal!
Jellemzők:
- Porotherm NF 38-as tégla
- 10 cm-es homlokzati- és 30 cm födémszigetelés
- 3 rétegű üveg, fehér műanyag ablakok 6 légkamrás fokozott hőszigetelésű profilból, szúnyoghálóval, redőnnyel
- fűtés és melegvíz-ellátás korszerű kondenzációs 24 KW-os kondenzációs gáztüzelésű kazánnal és padlófűtéssel
- fehér műanyag hőszigetelet bejárati ajtó választható kivitelben
- CPL fóliás teli beltéri ajtók kilinccsel (nettó 85 ezer forint értékben)
- hidegburkolat: nettó 5500 huf/m2-ig az árban 2,1 méter magasságban
- melegburkolat: vízálló laminált padló nettó 4500 huf/m2-ig az árban
- 2 db 3,5 KW-os klíma
- riasztó előkészítés
- 80(!) db elektromos kiállás
- A++ energetika
- ÉPÍTÉSI IDŐ 8 HÓNAP
- A FELTÜNTETT ÖSSZEG A TELEK ÁRÁT NEM TARTALMAZZA!
Figyelem! Az adatlap megbízónktól kapott információk alapján készült, pontosságáért felelősséget nem tudunk vállalni! Amennyiben a hirdetés felkeltette érdeklődését, illetve eladó ingatlana van, forduljon hozzám bizalommal!
Jellemzők:
- Porotherm NF 38-as tégla
- 10 cm-es homlokzati- és 30 cm födémszigetelés
- 3 rétegű üveg, fehér műanyag ablakok 6 légkamrás fokozott hőszigetelésű profilból, szúnyoghálóval, redőnnyel
- fűtés és melegvíz-ellátás korszerű kondenzációs 24 KW-os kondenzációs gáztüzelésű kazánnal és padlófűtéssel
- fehér műanyag hőszigetelet bejárati ajtó választható kivitelben
- CPL fóliás teli beltéri ajtók kilinccsel (nettó 85 ezer forint értékben)
- hidegburkolat: nettó 5500 huf/m2-ig az árban 2,1 méter magasságban
- melegburkolat: vízálló laminált padló nettó 4500 huf/m2-ig az árban
- 2 db 3,5 KW-os klíma
- riasztó előkészítés
- 80(!) db elektromos kiállás
- A++ energetika
- ÉPÍTÉSI IDŐ 8 HÓNAP
- A FELTÜNTETT ÖSSZEG A TELEK ÁRÁT NEM TARTALMAZZA!
Figyelem! Az adatlap megbízónktól kapott információk alapján készült, pontosságáért felelősséget nem tudunk vállalni! Amennyiben a hirdetés felkeltette érdeklődését, illetve eladó ingatlana van, forduljon hozzám bizalommal!