Eladó Ház- házrész
Hirdetéskód: 9302073

HOUSE36 Ingatlanhálózat

Felújításhoz személyi kölcsönt keres? Kalkuláljon itt! →
FIX 3% Program

Ez a hirdetés megfelelhet a FIX 3%-os programnak.
Tudj meg többet a részletekről itt.

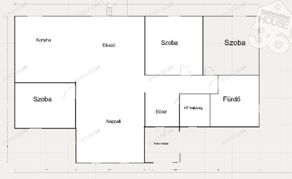
92.00 m2
ALAPTERÜLET
3
SZOBASZÁM
nincs megadva
ÉPÍTÉS
Egyéb fűtés
FŰTÉS
  • CSOK igénybe vehető nem
  • Tetőtér beépíthető nem
  • Építés éve 2026
  • Fűtés Egyéb fűtés
  • Klíma nem
  • Szigetelt nem
Energetikai besorolás: Nincs meghatározva
A+++
A++
A+
A
B
C
D
E
F
G
H
I

Az MBH Bank személyi kölcsön ajánlata

Fizetett hirdetés
1 millió Ft
6 évre
20 585 Ft/hó
THM: 14.5%
Részletek →
2 millió Ft
6 évre
41 169 Ft/hó
THM: 14.5%
Részletek →
3 millió Ft
6 évre
61 754 Ft/hó
THM: 14.5%
Részletek →

A tájékoztatás nem teljes körű és nem minősül ajánlattételnek.

Az ingatlan leírása

Kecskeméten eladó egy április végén, május elején költözhető új családi ház.

-könnyűszerkezetes
-okos ház
-beépített, gépesített konyha
-nagy nappali étkezővel
-3 szoba
-minőségi burkolatok
-92 m2 nettó lakótér
-hőszivattyú
-légkondi
-480 m2 telek
-hőszigetelt

A ház további előnyeit egy személyes találkozó alkalmával ismertetjük.
Megtekintés akár hét végén is.
A HOUSE36 kínálatában lévő összes ingatlannal kapcsolatban tudok felvilágosítást nyújtani.
Szolgáltatásaink kereső ügyfeleink részére ingyenesek.
Figyelem az adatlap megbízónktól kapott adatok alapján készült pontosságáért felelősséget vállalni nem tudunk.

Térkép

Ingatlan adásvétel ügyvédi díja
391 500 Ft
a hirdetésben szereplő ár alapján
  • A vételár 0,45%-a
  • Szerződéscsomag teljeskörű képviselettel
  • Ingyenes tulajdoni lap ellenőrzés
  • Az ÁFA-t már tartalmazza
Érdekel az ajánlat →
A tájékoztatás nem teljes körű és nem minősül ajánlattételnek. Minimum díj: 150 000 Ft, maximum díj: 600 000 Ft. A díj kizárólag lakóingatlan adásvételére vonatkozik.

A hirdető elérhetősége

HOUSE36 Ingatlanhálózat

Biró Ramóna
+36 70 645