Eladó Ház- házrész
Hirdetéskód: 9302043
HOUSE36 Ingatlanhálózat
Felújításhoz személyi kölcsönt keres? Kalkuláljon itt! →92.00 m2
ALAPTERÜLET3
SZOBASZÁMnincs megadva
ÉPÍTÉSnincs megadva
FŰTÉS- CSOK igénybe vehető nem
- Tetőtér beépíthető nem
- Építés éve 2026
- Klíma nem
- Szigetelt nem
A+++
A++
A+
A
B
C
D
E
F
G
H
I
Az ingatlan leírása
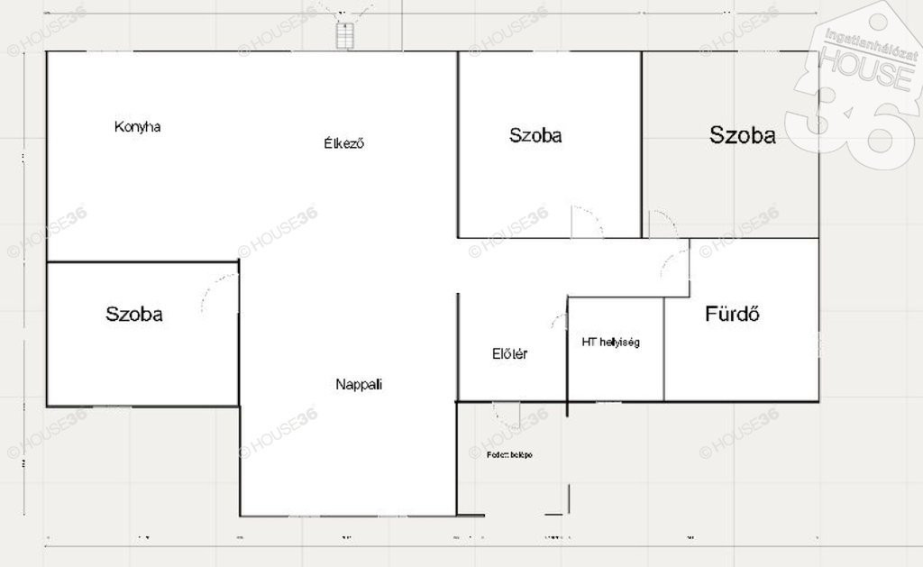
Kecskeméten eladó egy április végén, május elején költözhető új családi ház.
-könnyűszerkezetes
-okos ház
-beépített, gépesített konyha
-nagy nappali étkezővel
-3 hálószoba
-minőségi burkolatok
-92 m2 nettó lakótér
-hőszivattyú
-légkondi
-472 m2 telek
-hőszigetelt
A ház további előnyeit egy személyes találkozó alkalmával ismertetjük.
Megtekintés akár hét végén is.
A HOUSE36 kínálatában lévő összes ingatlannal kapcsolatban tudok felvilágosítást nyújtani.
Szolgáltatásaink kereső ügyfeleink részére ingyenesek.
Figyelem az adatlap megbízónktól kapott adatok alapján készült pontosságáért felelősséget vállalni nem tudunk.
-könnyűszerkezetes
-okos ház
-beépített, gépesített konyha
-nagy nappali étkezővel
-3 hálószoba
-minőségi burkolatok
-92 m2 nettó lakótér
-hőszivattyú
-légkondi
-472 m2 telek
-hőszigetelt
A ház további előnyeit egy személyes találkozó alkalmával ismertetjük.
Megtekintés akár hét végén is.
A HOUSE36 kínálatában lévő összes ingatlannal kapcsolatban tudok felvilágosítást nyújtani.
Szolgáltatásaink kereső ügyfeleink részére ingyenesek.
Figyelem az adatlap megbízónktól kapott adatok alapján készült pontosságáért felelősséget vállalni nem tudunk.