Eladó Ház- házrész
Hirdetéskód: 9164229

HOUSE36 Ingatlanhálózat

Felújításhoz személyi kölcsönt keres? Kalkuláljon itt! →
FIX 3% Program

Ez a hirdetés megfelelhet a FIX 3%-os programnak.
Tudj meg többet a részletekről itt.

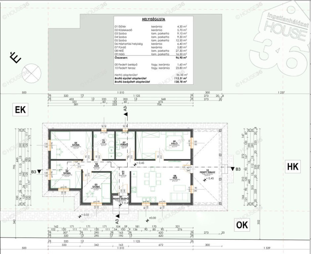
96.00 m2
ALAPTERÜLET
4
SZOBASZÁM
nincs megadva
ÉPÍTÉS
Egyéb fűtés
FŰTÉS
  • CSOK igénybe vehető nem
  • Tetőtér beépíthető nem
  • Építés éve 2026
  • Fűtés Egyéb fűtés
  • Klíma nem
  • Szigetelt nem
Energetikai besorolás: Nincs meghatározva
A+++
A++
A+
A
B
C
D
E
F
G
H
I

Az MBH Bank személyi kölcsön ajánlata

Fizetett hirdetés
1 millió Ft
6 évre
20 585 Ft/hó
THM: 14.5%
Részletek →
2 millió Ft
6 évre
41 169 Ft/hó
THM: 14.5%
Részletek →
3 millió Ft
6 évre
61 754 Ft/hó
THM: 14.5%
Részletek →

A tájékoztatás nem teljes körű és nem minősül ajánlattételnek.

Az ingatlan leírása

Kényelmes, nagy, új építésű családi ház egy remek lakóparkban ELADÓ!
Alkalmas 3 %-os hitelre és csok-ra is.


- 96,9 m2 nettó lakótér
+ 1,6 m2 fedett belépő
+ 24,4 m2 fedett terasz
- 575 m2 telek

- 4 szoba
- 2 Wc
- 26 m2 fedett terasz
- fedett belépő
- nagy nappali,konyha ,étkező
- 138.78 m2 bruttó
- padlófűtés
- hőszivattyú
Nézzük meg akár hét végén is minta házainkat.






Választható színek, szaniterek, nyílászárók, burkolatok.

Műszaki tartalomért hívja értékesítőinket.
További tájékoztatásokért várjuk önt irodáinkban.

A HOUSE36 kínálatában lévő összes ingatlannal kapcsolatban tudok felvilágosítást nyújtani.
Szolgáltatásaink kereső ügyfeleink részére ingyenesek.

Térkép

Ingatlan adásvétel ügyvédi díja
382 500 Ft
a hirdetésben szereplő ár alapján
  • A vételár 0,45%-a
  • Szerződéscsomag teljeskörű képviselettel
  • Ingyenes tulajdoni lap ellenőrzés
  • Az ÁFA-t már tartalmazza
Érdekel az ajánlat →
A tájékoztatás nem teljes körű és nem minősül ajánlattételnek. Minimum díj: 150 000 Ft, maximum díj: 600 000 Ft. A díj kizárólag lakóingatlan adásvételére vonatkozik.

A hirdető elérhetősége

HOUSE36 Ingatlanhálózat

Kocsis Zsuzsanna
+36 70 795