Eladó Ház- házrész
Hirdetéskód: 9275430
Wiskó Kft.
Felújításhoz személyi kölcsönt keres? Kalkuláljon itt! →97.00 m2
ALAPTERÜLET4
SZOBASZÁMnincs megadva
ÉPÍTÉSnincs megadva
FŰTÉS- CSOK igénybe vehető nem
- Tetőtér beépíthető nem
- Építés éve 2026
- Klíma nem
- Szigetelt nem
A+++
A++
A+
A
B
C
D
E
F
G
H
I
Az ingatlan leírása
Eladó a Vacsiközben, egy új építésű, nappali + 3 szobás családi ház , hangulatos 17 m²-es terasszal és tágas, 20 m²-es garázzsal.
A vételár tartalmazza a telket is!
Várható átadás: 2026. december
Épületszerkezet:
- 11 sor Wienerberger Porotherm 30 tégla teherhordó falazat ( 270 cm-es belmagasság)
- 45 cm széles, 90 cm mély sávalap betonvassal kengyelezve
- 2 sor magas, 30 cm széles Leier lábazati beton falazóelem
- Wienerberger Porotherm 10 tégla válaszfal
Szigetelés:
- Austrotherm AT-H80 EPS homlokzati hőszigetelés 15 cm
- Austrotherm TOP P GK XPS lábazati hőszigetelés 12 cm
- Knauf Insulation Supafil fújható üveggyapot födém szigetelés 30 cm
- Austrotherm EPS AT-N150 padlószigetelés 10 cm
Tető:
- Leier Granite Classic Carbon síkcserép
- Antracit bádog csatornarendszer
Külső-belső nyílászáró, párkány, árnyékolás:
- Gealan Linear külső nyílászáró rendszer (kívül antracit, belül fehér színben)
- Fukotherm IN-22 bejárati ajtó H6/Z 800 tolópajzzsal és homokfúvott üveggel
- Dupla szárnyas teraszajtó aluküszöbbel
- Borovi Szcília (CPL) beltéri ajtó (választható színben), Br.: 5.000 Ft-ig választható kilinccsel
- Kívül műkő ablakpárkány választható Rioletto Beige (mészkő) színben
- Belül műanyag ablakpárkány fehér színbe
- Árnyákolástechnika (redőny): Kérhető, viszont az ár nem tartalmazza!
Gépészet + egyéb:
- Bosch 6000 prémium levegő-víz hőszivattyú padlófűtéssel
- 2db klíma előkészítés
Burkolatok, burkolás és szaniterek:
- Hidegburkolat: Br.: 8.500 Ft/m2-ig
- Hidegburkolattal ellátott helyiségek (padló): Konyha, étkező, háztartási helység, fürdőszoba, WC, kamra, előtér
- Hidegburkolattal ellátott helyiségek (fal 270 cm-ig): Fürdőszoba, WC
- Melegburkolat: Br.: 8.000 Ft/m2-ig
- Szaniterek: Br.: 708.000 Ft értékhatárig
- Geberit Basic falba építhető WC szett
Villanyszerelés:
- Schneider Asfora elektromos szerelvényrendszer fehér színben
Garázskapu:
- Hörmann Renomatic szekcionált garázskapu antracit színben
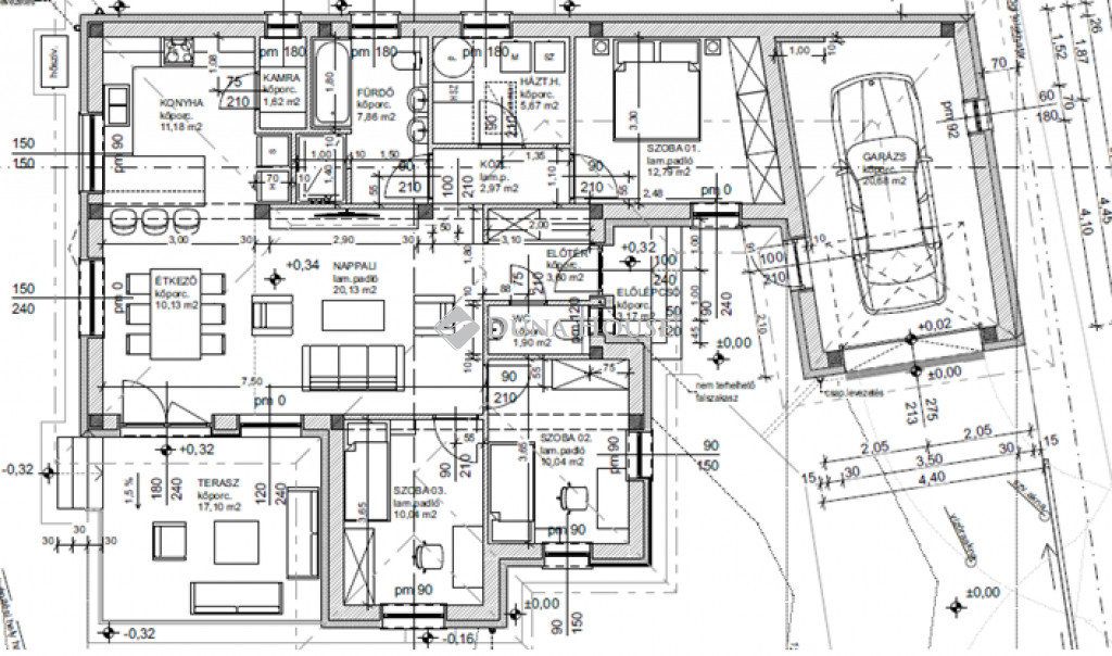
Helyiséglista:
- előtér: 3,6 m2
- wc: 1,9 m2
- nappali: 20,13m2
- étkező: 10,13m2
- konyha: 11,18m2
- kamra: 1,62m2
- közlekedő: 2,97m2
- fürdő: káddal, tusolóval, wc-vel: 7,86m2
- házt.hely.: 5,67m2
- szoba 1: 12,79m2
- szoba 2: 10,04m2
- szoba 3: 10,04m2
- fedetlen terasz: 17,1m2
- garázs: 20,68m2
Az ingatlan hőszivattyús fűtéssel rendelkezik, ezért jelenleg nincs szükség gázra. Ugyanakkor a gáz az utcában elérhető, ami egy plusz lehetőség a jövőre nézve, ha valaki alternatív fűtési megoldásban gondolkodna.
Az ár kulcsrakész állapotban történő átadással értendő, konyhabútor és lámpatestek nélkül!
A vételár tartalmazza a telket is!
Várható átadás: 2026. december
Épületszerkezet:
- 11 sor Wienerberger Porotherm 30 tégla teherhordó falazat ( 270 cm-es belmagasság)
- 45 cm széles, 90 cm mély sávalap betonvassal kengyelezve
- 2 sor magas, 30 cm széles Leier lábazati beton falazóelem
- Wienerberger Porotherm 10 tégla válaszfal
Szigetelés:
- Austrotherm AT-H80 EPS homlokzati hőszigetelés 15 cm
- Austrotherm TOP P GK XPS lábazati hőszigetelés 12 cm
- Knauf Insulation Supafil fújható üveggyapot födém szigetelés 30 cm
- Austrotherm EPS AT-N150 padlószigetelés 10 cm
Tető:
- Leier Granite Classic Carbon síkcserép
- Antracit bádog csatornarendszer
Külső-belső nyílászáró, párkány, árnyékolás:
- Gealan Linear külső nyílászáró rendszer (kívül antracit, belül fehér színben)
- Fukotherm IN-22 bejárati ajtó H6/Z 800 tolópajzzsal és homokfúvott üveggel
- Dupla szárnyas teraszajtó aluküszöbbel
- Borovi Szcília (CPL) beltéri ajtó (választható színben), Br.: 5.000 Ft-ig választható kilinccsel
- Kívül műkő ablakpárkány választható Rioletto Beige (mészkő) színben
- Belül műanyag ablakpárkány fehér színbe
- Árnyákolástechnika (redőny): Kérhető, viszont az ár nem tartalmazza!
Gépészet + egyéb:
- Bosch 6000 prémium levegő-víz hőszivattyú padlófűtéssel
- 2db klíma előkészítés
Burkolatok, burkolás és szaniterek:
- Hidegburkolat: Br.: 8.500 Ft/m2-ig
- Hidegburkolattal ellátott helyiségek (padló): Konyha, étkező, háztartási helység, fürdőszoba, WC, kamra, előtér
- Hidegburkolattal ellátott helyiségek (fal 270 cm-ig): Fürdőszoba, WC
- Melegburkolat: Br.: 8.000 Ft/m2-ig
- Szaniterek: Br.: 708.000 Ft értékhatárig
- Geberit Basic falba építhető WC szett
Villanyszerelés:
- Schneider Asfora elektromos szerelvényrendszer fehér színben
Garázskapu:
- Hörmann Renomatic szekcionált garázskapu antracit színben
Helyiséglista:
- előtér: 3,6 m2
- wc: 1,9 m2
- nappali: 20,13m2
- étkező: 10,13m2
- konyha: 11,18m2
- kamra: 1,62m2
- közlekedő: 2,97m2
- fürdő: káddal, tusolóval, wc-vel: 7,86m2
- házt.hely.: 5,67m2
- szoba 1: 12,79m2
- szoba 2: 10,04m2
- szoba 3: 10,04m2
- fedetlen terasz: 17,1m2
- garázs: 20,68m2
Az ingatlan hőszivattyús fűtéssel rendelkezik, ezért jelenleg nincs szükség gázra. Ugyanakkor a gáz az utcában elérhető, ami egy plusz lehetőség a jövőre nézve, ha valaki alternatív fűtési megoldásban gondolkodna.
Az ár kulcsrakész állapotban történő átadással értendő, konyhabútor és lámpatestek nélkül!