Eladó Ház- házrész
Hirdetéskód: 9189992
HOUSE36 Ingatlanhálózat
Ez a hirdetés megfelelhet a FIX 3%-os programnak.
Tudj meg többet a részletekről itt.
104 m2
ALAPTERÜLET4
SZOBASZÁMnincs megadva
ÉPÍTÉSnincs megadva
FŰTÉS- CSOK igénybe vehető nem
- Tetőtér beépíthető nem
- Építés éve 2025
- Klíma nem
- Szigetelt nem
A+++
A++
A+
A
B
C
D
E
F
G
H
I
Az ingatlan leírása
ÚJ ÉPÍTÉSŰ CSALÁDI HÁZ ELADÓ KADAFALVA HATÁRÁN!
Kecskemét–Kadafalva határán, a Határ út közelében, új építésű családi házak környezetében kínáljuk megvételre ezt a modern, energiatakarékos, új építésű családi házat.
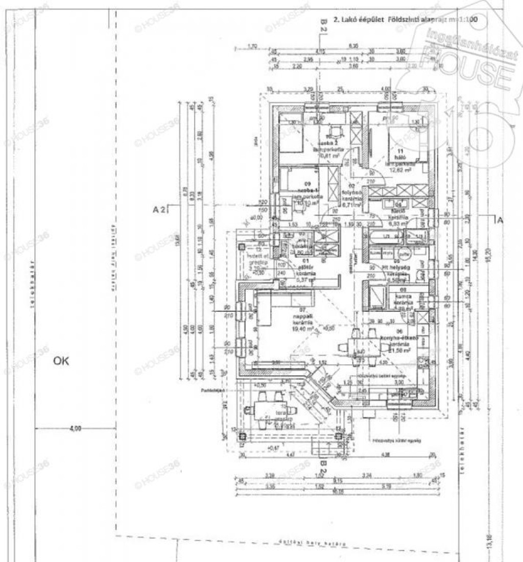
A 846 m²-es telken épülő, nappali + 3 szobás ingatlan igényes kivitelezéssel, minőségi anyagokból készül.
Főbb jellemzők:
Telek mérete: 846 m², egyszerű drótkerítéssel körbekerítve
Lakótér: bruttó 149,52 m² / nettó 104,17 m²
Fedett előtér és terasz összesen: 18,38 m²
Elrendezés: előtér, folyosó, WC, fürdő, háztartási helyiség, konyha + étkező, nappali, kamra, 3 külön nyíló hálószoba
Falazat: síkra csiszolt Wienerberger tégla + 15 cm homlokzati szigetelés
Tetőszerkezet: ácsolt
Fűtés: hőszivattyús rendszer – korszerű, energiahatékony megoldás
Nyílászárók: fehér műanyag, 3 rétegű üvegezéssel
Burkolatok: kerámia és laminált parketta (választhatók 7.000 Ft/m²-ig)
Fedett kocsibeálló: fagerendás kivitelben (az ár tartalmazza)
Közművek: villany és városi víz telken belül, gáz az utcában
Pince, melléképület nincs
Osztatlan közös telken, belső telekhányadon épül
A bejárat murvával szórt
Fontos tudnivalók:
A vételár nem tartalmazza: konyhabútort és kertrendezést
Várható átadás: 2026. június
Az adatok a megbízótól származnak, pontosságukért felelősséget vállalni nem tudunk.
Modern, új építésű otthon nyugodt környezetben, mégis Kecskeméthez közel – ideális választás családoknak, akik hosszú távra terveznek!
89900000 Ft
Kecskemét–Kadafalva határán, a Határ út közelében, új építésű családi házak környezetében kínáljuk megvételre ezt a modern, energiatakarékos, új építésű családi házat.
A 846 m²-es telken épülő, nappali + 3 szobás ingatlan igényes kivitelezéssel, minőségi anyagokból készül.
Főbb jellemzők:
Telek mérete: 846 m², egyszerű drótkerítéssel körbekerítve
Lakótér: bruttó 149,52 m² / nettó 104,17 m²
Fedett előtér és terasz összesen: 18,38 m²
Elrendezés: előtér, folyosó, WC, fürdő, háztartási helyiség, konyha + étkező, nappali, kamra, 3 külön nyíló hálószoba
Falazat: síkra csiszolt Wienerberger tégla + 15 cm homlokzati szigetelés
Tetőszerkezet: ácsolt
Fűtés: hőszivattyús rendszer – korszerű, energiahatékony megoldás
Nyílászárók: fehér műanyag, 3 rétegű üvegezéssel
Burkolatok: kerámia és laminált parketta (választhatók 7.000 Ft/m²-ig)
Fedett kocsibeálló: fagerendás kivitelben (az ár tartalmazza)
Közművek: villany és városi víz telken belül, gáz az utcában
Pince, melléképület nincs
Osztatlan közös telken, belső telekhányadon épül
A bejárat murvával szórt
Fontos tudnivalók:
A vételár nem tartalmazza: konyhabútort és kertrendezést
Várható átadás: 2026. június
Az adatok a megbízótól származnak, pontosságukért felelősséget vállalni nem tudunk.
Modern, új építésű otthon nyugodt környezetben, mégis Kecskeméthez közel – ideális választás családoknak, akik hosszú távra terveznek!
89900000 Ft