Eladó Ház- házrész
Hirdetéskód: 9190928
HOUSE36 Ingatlanhálózat
Ez a hirdetés megfelelhet a FIX 3%-os programnak.
Tudj meg többet a részletekről itt.
104 m2
ALAPTERÜLET4
SZOBASZÁMnincs megadva
ÉPÍTÉSnincs megadva
FŰTÉS- CSOK igénybe vehető nem
- Tetőtér beépíthető nem
- Építés éve 2025
- Klíma nem
- Szigetelt nem
A+++
A++
A+
A
B
C
D
E
F
G
H
I
Az ingatlan leírása
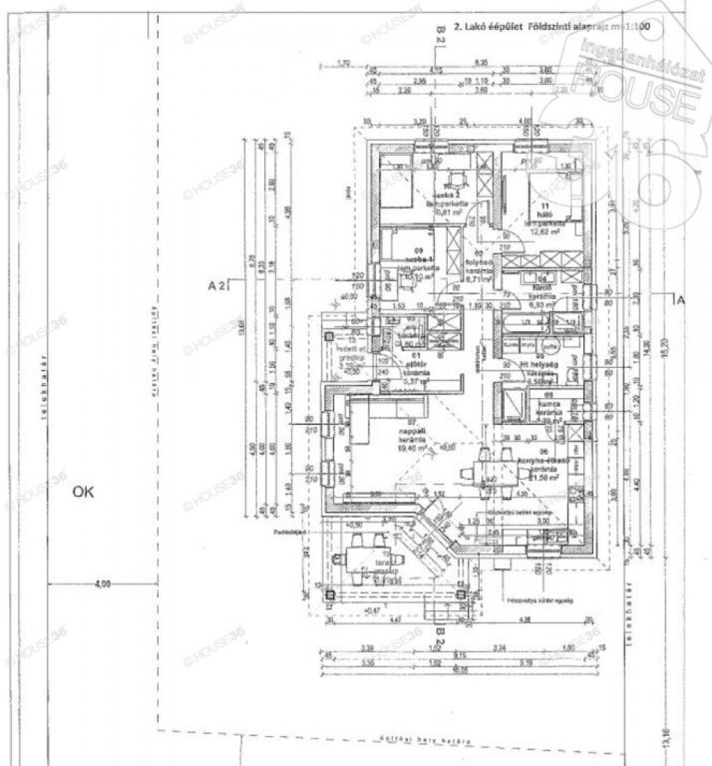
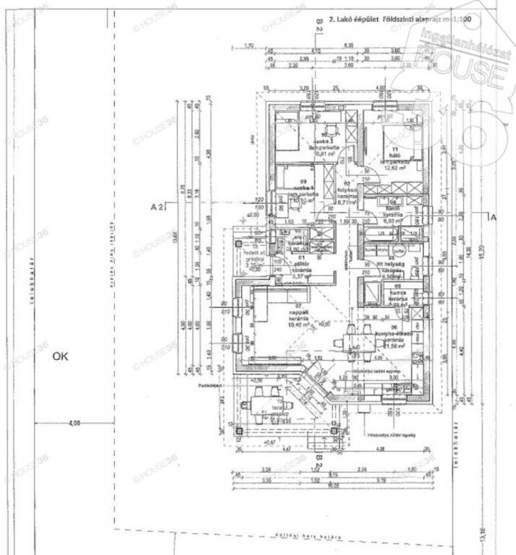
Kadafalvahatárán, a Határ út közvetlen közelében, új építésű családi házak szomszédságában, 846 m2-es telken épülő, nappali + 3 szobás családi ház eladó
Jellemzők:
telekméret: 846 m2, egyszerű drótkerítéssel bekerített,
közmű: villany és városi víz, gáz az utcában
Lakótér mérete: bruttó 149,52 m2 – nettó 104,17 m2
Fedett előtér és a terasz mérete együttesen: 18,38 m2
Helyiségek:
előtér (5,37 m2), folyosó (6,71m2), WC (1,8 m2), fürdő (6,83m2), Ht helyiség (6,58m2),
konyha + étkező (21,56m2), nappali (19,4m2), kamra (2,39m2), szoba1(10,1 m2), szoba2(10,81m2), szoba3 (12,68m2)
Burkolatok: kerámia és laminált parketta
Tetőszerkezet: ácsolt
Falazat: síkra csiszolt Wienerberger tégla, 15 cm-es homlokzat szigeteléssel
Fűtés: hőszivattyú
Nyílászárók: fehér műanyag, 3 rétegű üveggel
Burkolatok: választhatók, 7.000.- Ft/m2-ig
Fedett kocsibeálló fagerendából ácsolt / ár tartalmazza /
Osztatlan közös tulajdonú telken belső telekhányadon történik az építkezés, a bejárat murvával szórt
Vételár nem tartalmazza: Konyhabútort, kertrendezést
Átadás várható időpontja: 2026. JÚNIUS
Figyelem az adatlap megbízótól kapott adatok alapján készült, pontosságáért felelősséget vállalni nem tudunk !
A HOUSE36 kínálatában található összes ingatlannal kapcsolatban tudok felvilágosítást nyújtani !
Hívjon bizalommal !
Szolgáltatásaink Kereső Ügyfeleink számára INGYENESEK !
Jellemzők:
telekméret: 846 m2, egyszerű drótkerítéssel bekerített,
közmű: villany és városi víz, gáz az utcában
Lakótér mérete: bruttó 149,52 m2 – nettó 104,17 m2
Fedett előtér és a terasz mérete együttesen: 18,38 m2
Helyiségek:
előtér (5,37 m2), folyosó (6,71m2), WC (1,8 m2), fürdő (6,83m2), Ht helyiség (6,58m2),
konyha + étkező (21,56m2), nappali (19,4m2), kamra (2,39m2), szoba1(10,1 m2), szoba2(10,81m2), szoba3 (12,68m2)
Burkolatok: kerámia és laminált parketta
Tetőszerkezet: ácsolt
Falazat: síkra csiszolt Wienerberger tégla, 15 cm-es homlokzat szigeteléssel
Fűtés: hőszivattyú
Nyílászárók: fehér műanyag, 3 rétegű üveggel
Burkolatok: választhatók, 7.000.- Ft/m2-ig
Fedett kocsibeálló fagerendából ácsolt / ár tartalmazza /
Osztatlan közös tulajdonú telken belső telekhányadon történik az építkezés, a bejárat murvával szórt
Vételár nem tartalmazza: Konyhabútort, kertrendezést
Átadás várható időpontja: 2026. JÚNIUS
Figyelem az adatlap megbízótól kapott adatok alapján készült, pontosságáért felelősséget vállalni nem tudunk !
A HOUSE36 kínálatában található összes ingatlannal kapcsolatban tudok felvilágosítást nyújtani !
Hívjon bizalommal !
Szolgáltatásaink Kereső Ügyfeleink számára INGYENESEK !