Eladó Ház- házrész
Hirdetéskód: 9258138
HOUSE36 Ingatlanhálózat
96.00 m2
ALAPTERÜLET4
SZOBASZÁMnincs megadva
ÉPÍTÉSnincs megadva
FŰTÉS- CSOK igénybe vehető nem
- Tetőtér beépíthető nem
- Építés éve 2026
- Klíma nem
- Szigetelt nem
A+++
A++
A+
A
B
C
D
E
F
G
H
I
Az ingatlan leírása
Kényelmes, nagy, új építésű családi ház egy remek lakóparkban ELADÓ!
Alkalmas 3 %-os hitelre és csok-ra is.
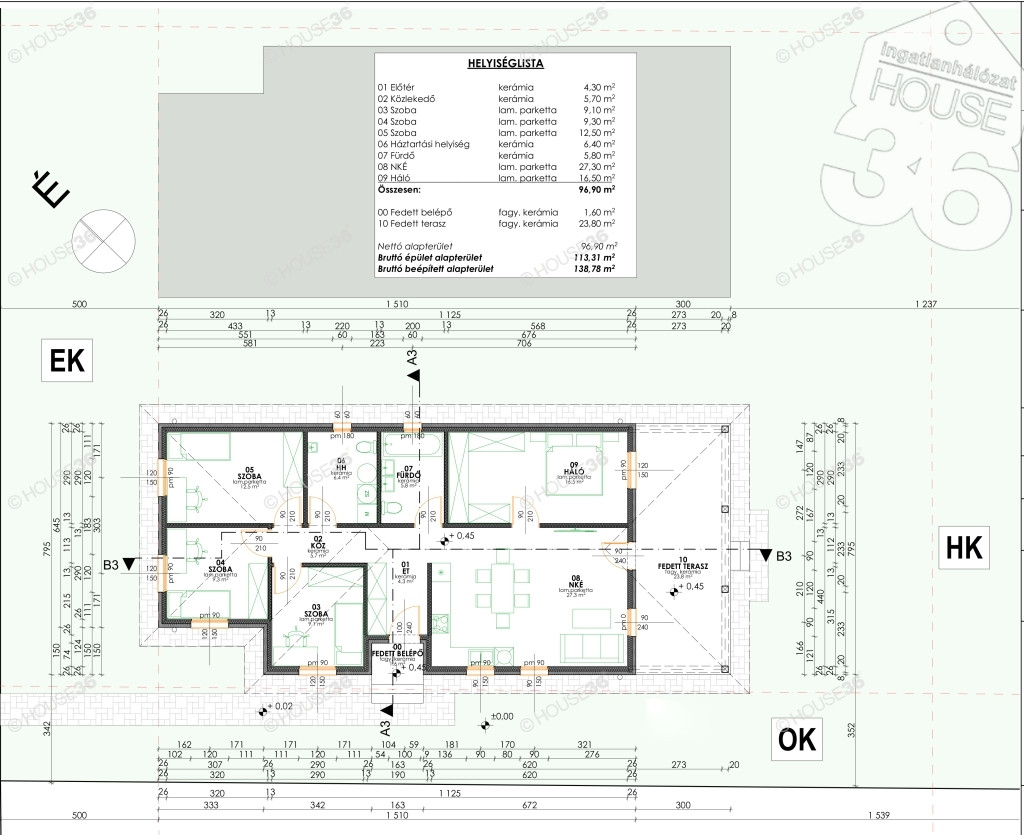
- 96,9 m2 nettó lakótér
+ 1,6 m2 fedett belépő
+ 24,4 m2 fedett terasz
- 575 m2 telek
- 4 szoba
- 2 Wc
- 26 m2 fedett terasz
- fedett belépő
- nagy nappali,konyha ,étkező
- 138.78 m2 bruttó
- padlófűtés
- hőszivattyú
Nézzük meg akár hét végén is minta házainkat.
Választható színek, szaniterek, nyílászárók, burkolatok.
Műszaki tartalomért hívja értékesítőinket.
További tájékoztatásokért várjuk önt irodáinkban.
A HOUSE36 kínálatában lévő összes ingatlannal kapcsolatban tudok felvilágosítást nyújtani.
Szolgáltatásaink kereső ügyfeleink részére ingyenesek.
Alkalmas 3 %-os hitelre és csok-ra is.
- 96,9 m2 nettó lakótér
+ 1,6 m2 fedett belépő
+ 24,4 m2 fedett terasz
- 575 m2 telek
- 4 szoba
- 2 Wc
- 26 m2 fedett terasz
- fedett belépő
- nagy nappali,konyha ,étkező
- 138.78 m2 bruttó
- padlófűtés
- hőszivattyú
Nézzük meg akár hét végén is minta házainkat.
Választható színek, szaniterek, nyílászárók, burkolatok.
Műszaki tartalomért hívja értékesítőinket.
További tájékoztatásokért várjuk önt irodáinkban.
A HOUSE36 kínálatában lévő összes ingatlannal kapcsolatban tudok felvilágosítást nyújtani.
Szolgáltatásaink kereső ügyfeleink részére ingyenesek.