Eladó Ház- házrész
Hirdetéskód: 9207423
GDN Ingatlanhálózat - Csombók ELAN
Ez a hirdetés megfelelhet a FIX 3%-os programnak.
Tudj meg többet a részletekről itt.
105 m2
ALAPTERÜLET3
SZOBASZÁMnincs megadva
ÉPÍTÉSEgyéb fűtés
FŰTÉS- CSOK igénybe vehető nem
- Tetőtér beépíthető nem
- Fűtés Egyéb fűtés
- Klíma nem
- Szigetelt nem
A+++
A++
A+
A
B
C
D
E
F
G
H
I
Az ingatlan leírása
Eladó önálló családi ház Kecskeméten!
Kecskeméten a Boróka lakópark közelében kínálunk megvételre egy 105 nm alapterületű, 1972-ben salaktéglából épült, önálló családi házat 900 nm-es telken.
Az ingatlan közepes állapotú, tágas, nagy terekkel rendelkezik.
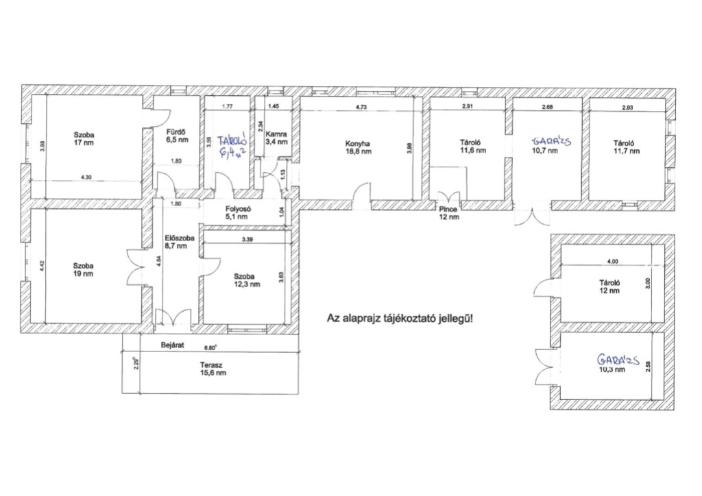
Beosztása:
- előszoba 8,7 mm,
- szoba 17 nm,
- szoba 19 nm,
- szoba 12,3 nm,
- konyha 18,8 nm,
- kamra 3,4 nm,
- fűrdőszoba+ WC 6,5 nm,
- folyosó 5,1 nm,
- tároló 6,4 nm,
_------------------------------
Összesen: 97,2 nm
- fedett terasz 15,6 nm,
- pince 12,0 nm,
- tároló 11,6 nm,
- tároló 11,7 nm,
- tároló 12,0 nm,
- garázs 10,7 nm,
- garázs 10,3 nm,
Közművek tekintetében, víz, villany, gáz a házba bekötve,csatorna nincs.
Az ingatlan ügyvédi megosztással kerül értékesítésre, akár nagyobb telekkel is megvásárolható. Teljes telek terület 2502 nm.
Amivel segítjük az Ön ingatlanvásárlását:
- ingyenes hitelügyintézés,
- jogi háttér,
- földhivatali ügyintézés,
- energetikai tanúsítvány,
- a vevő számára az ingatlanközvetítés ingyenes.
Irodánk 30 éves szakmai tapasztalattal áll ügyfelei rendelkezésére!
Várom szíves megkeresését! ...TOVÁBBI, TÖBBEZRES INGATLAN KÍNÁLAT: - GDN azonosító: 389153
Kecskeméten a Boróka lakópark közelében kínálunk megvételre egy 105 nm alapterületű, 1972-ben salaktéglából épült, önálló családi házat 900 nm-es telken.
Az ingatlan közepes állapotú, tágas, nagy terekkel rendelkezik.
Beosztása:
- előszoba 8,7 mm,
- szoba 17 nm,
- szoba 19 nm,
- szoba 12,3 nm,
- konyha 18,8 nm,
- kamra 3,4 nm,
- fűrdőszoba+ WC 6,5 nm,
- folyosó 5,1 nm,
- tároló 6,4 nm,
_------------------------------
Összesen: 97,2 nm
- fedett terasz 15,6 nm,
- pince 12,0 nm,
- tároló 11,6 nm,
- tároló 11,7 nm,
- tároló 12,0 nm,
- garázs 10,7 nm,
- garázs 10,3 nm,
Közművek tekintetében, víz, villany, gáz a házba bekötve,csatorna nincs.
Az ingatlan ügyvédi megosztással kerül értékesítésre, akár nagyobb telekkel is megvásárolható. Teljes telek terület 2502 nm.
Amivel segítjük az Ön ingatlanvásárlását:
- ingyenes hitelügyintézés,
- jogi háttér,
- földhivatali ügyintézés,
- energetikai tanúsítvány,
- a vevő számára az ingatlanközvetítés ingyenes.
Irodánk 30 éves szakmai tapasztalattal áll ügyfelei rendelkezésére!
Várom szíves megkeresését! ...TOVÁBBI, TÖBBEZRES INGATLAN KÍNÁLAT: - GDN azonosító: 389153