Eladó Ház- házrész
Hirdetéskód: 9245879
HOUSE36 Ingatlanhálózat
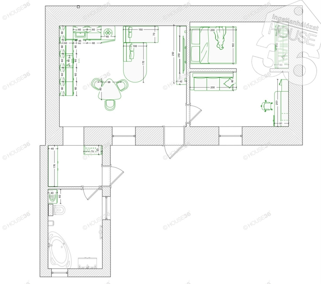
55.00 m2
ALAPTERÜLET2
SZOBASZÁMnincs megadva
ÉPÍTÉSnincs megadva
FŰTÉS- CSOK igénybe vehető nem
- Tetőtér beépíthető nem
- Építés éve 1960
- Klíma nem
- Szigetelt nem
A+++
A++
A+
A
B
C
D
E
F
G
H
I
Az ingatlan leírása
Megvételre kínálok egy teljeskörűen felújított, 55 m2- es, nappali + 1 szobás kertes házat, Kecskemét belvárosától 5 perc távolságra. Az ingatlan februárban költözhető és felújítás követően senki nem lakta.
A felújítás minden részletre kiterjedően és minőségi anyagokkal készült.
Jellemzői:
amerikai konyhás nappali + 1 szoba
188 m2 telek
25 m2 fedett terasz
20 m2 betonozott kocsibeálló
Felújítás részletei:
új villamosházózat 3x20 A
hőszigetelt, színezett homlokzat
20 cm födémszigetelés
új műanyag nyílászárók
5 cm aljzatszigetelés, új ajzatbeton
vízszigetelt alap
padlófűtés+ klíma
új vízvezeték hálózat
új burkolatok, konyha és szaniterek
Kecskemét belvárosa 5 perc alatt elérhető autóval, az utca végén található buszmegálló és élelmiszer bolt is sétatávolságra van. Ideális választás fiatal pároknak, családoknak, egyedülállóknak vagy idősek számára akik egy alacsony fenntartású, mégis saját kertes otthonra vágynak, panellakás áráért.
Forduljon hozzám bizalommal amennyiben felkeltette érdeklődését ez a remek lehetőség, ha eladó ingatlana van, illetve ha hitelre van szüksége! Szolgáltatásaink kereső ügyfeleink részére ingyenesek!
Figyelem az adatlap megbízónktól kapott adatok alapján készült, pontosságáért felelősséget nem tudunk vállalni!
A felújítás minden részletre kiterjedően és minőségi anyagokkal készült.
Jellemzői:
amerikai konyhás nappali + 1 szoba
188 m2 telek
25 m2 fedett terasz
20 m2 betonozott kocsibeálló
Felújítás részletei:
új villamosházózat 3x20 A
hőszigetelt, színezett homlokzat
20 cm födémszigetelés
új műanyag nyílászárók
5 cm aljzatszigetelés, új ajzatbeton
vízszigetelt alap
padlófűtés+ klíma
új vízvezeték hálózat
új burkolatok, konyha és szaniterek
Kecskemét belvárosa 5 perc alatt elérhető autóval, az utca végén található buszmegálló és élelmiszer bolt is sétatávolságra van. Ideális választás fiatal pároknak, családoknak, egyedülállóknak vagy idősek számára akik egy alacsony fenntartású, mégis saját kertes otthonra vágynak, panellakás áráért.
Forduljon hozzám bizalommal amennyiben felkeltette érdeklődését ez a remek lehetőség, ha eladó ingatlana van, illetve ha hitelre van szüksége! Szolgáltatásaink kereső ügyfeleink részére ingyenesek!
Figyelem az adatlap megbízónktól kapott adatok alapján készült, pontosságáért felelősséget nem tudunk vállalni!