Eladó Ház- házrész
Hirdetéskód: 9275422
Wiskó Kft.
Felújításhoz személyi kölcsönt keres? Kalkuláljon itt! →207.00 m2
ALAPTERÜLET5
SZOBASZÁMnincs megadva
ÉPÍTÉSnincs megadva
FŰTÉS- CSOK igénybe vehető nem
- Tetőtér beépíthető nem
- Építés éve 2014
- Klíma nem
- Szigetelt nem
A+++
A++
A+
A
B
C
D
E
F
G
H
I
Az ingatlan leírása
Eladásra kínálunk egy különleges, 2014-ben épült családi házat Kecskeméten, amely minden részletében a minőséget, igényességet és az átgondolt tervezést képviseli.
A ház betonút mellett, csendes, rendezett környezetben helyezkedik el, egy 2878 m²-es, parkosított telken, ahol a zöld növényzet, az öntözőrendszerrel gondozott kert és a tágas terek azonnal magával ragadják az embert.
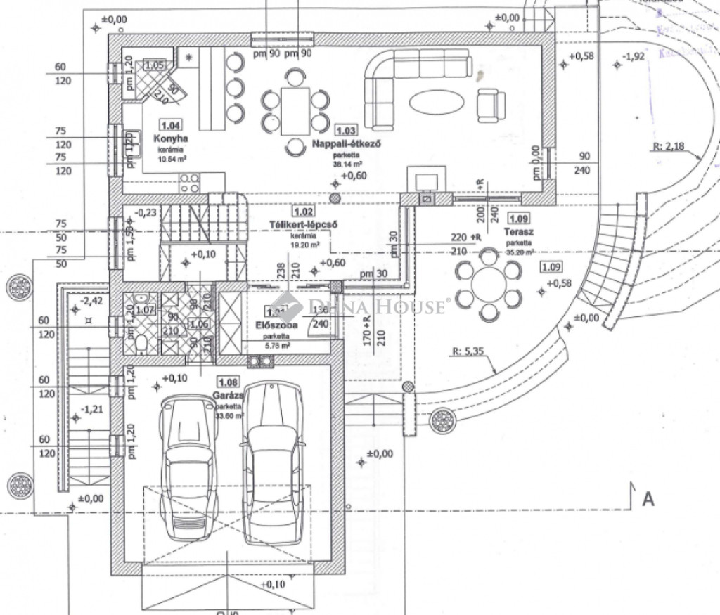
A földszinti lakótér (81 m²) központi eleme a napfényes nappali és étkező, amelyhez közvetlenül kapcsolódik a dupla garázs (34 m2), egy praktikus előtér és vendég toalett.
A tetőtér (94 m2) egyedi megoldása két eltérő padlószintje nemcsak különleges hangulatot, hanem kiváló térkihasználást is biztosít:
az alsó szinten két hálószoba, toalett és háztartási helyiség,
a felső szinten hálószoba, fürdőszoba és egy hangulatos közösségi tér várja új tulajdonosait.
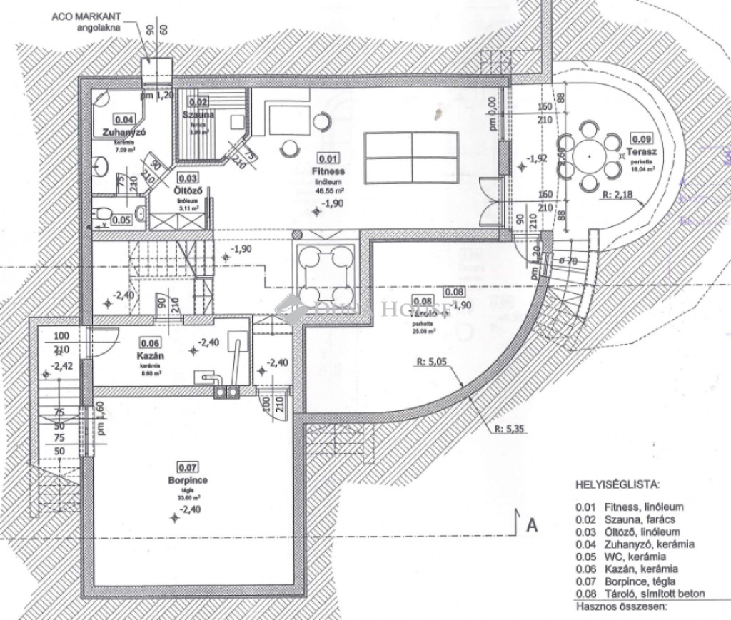
A pincetér (129 m2) jelentős része lakótér jellegű, mely teraszkapcsolattal rendelkezik így akár önálló lakrésznek, fitneszteremnek, irodának vagy kozmetikának is ideális.
A szinten fürdőszoba és mosdó is található, így teljes értékű élettérként funkcionál.
Az 53 m² összterületű teraszok a gondosan ápolt kertre néznek, igazi nyugalomszigetet teremtve.
A ház riasztóval, klímával, hőszigetelt fa nyílászárókkal felszerelt, építése során pedig természetes, időtálló anyagokat használtak.
Ez az otthon tökéletes választás azoknak, akik minőségi kivitelezésű, akár többgenerációs családi házat keresnek Kecskemét kedvelt térségében, ahol a nyugalom és az elegancia kéz a kézben jár.
Az ingatlan hitelezhető (CSOK), kifüggesztés nem szükséges.
Irányár: 165000000 Ft
A ház betonút mellett, csendes, rendezett környezetben helyezkedik el, egy 2878 m²-es, parkosított telken, ahol a zöld növényzet, az öntözőrendszerrel gondozott kert és a tágas terek azonnal magával ragadják az embert.
A földszinti lakótér (81 m²) központi eleme a napfényes nappali és étkező, amelyhez közvetlenül kapcsolódik a dupla garázs (34 m2), egy praktikus előtér és vendég toalett.
A tetőtér (94 m2) egyedi megoldása két eltérő padlószintje nemcsak különleges hangulatot, hanem kiváló térkihasználást is biztosít:
az alsó szinten két hálószoba, toalett és háztartási helyiség,
a felső szinten hálószoba, fürdőszoba és egy hangulatos közösségi tér várja új tulajdonosait.
A pincetér (129 m2) jelentős része lakótér jellegű, mely teraszkapcsolattal rendelkezik így akár önálló lakrésznek, fitneszteremnek, irodának vagy kozmetikának is ideális.
A szinten fürdőszoba és mosdó is található, így teljes értékű élettérként funkcionál.
Az 53 m² összterületű teraszok a gondosan ápolt kertre néznek, igazi nyugalomszigetet teremtve.
A ház riasztóval, klímával, hőszigetelt fa nyílászárókkal felszerelt, építése során pedig természetes, időtálló anyagokat használtak.
Ez az otthon tökéletes választás azoknak, akik minőségi kivitelezésű, akár többgenerációs családi házat keresnek Kecskemét kedvelt térségében, ahol a nyugalom és az elegancia kéz a kézben jár.
Az ingatlan hitelezhető (CSOK), kifüggesztés nem szükséges.
Irányár: 165000000 Ft