Eladó Ház- házrész
Hirdetéskód: 9310974
OTP Ingatlanpont Csongrád
Felújításhoz személyi kölcsönt keres? Kalkuláljon itt! →
Ez a hirdetés megfelelhet a FIX 3%-os programnak.
Tudj meg többet a részletekről itt.
133.00 m2
ALAPTERÜLET3
SZOBASZÁMnincs megadva
ÉPÍTÉSHázközponti
FŰTÉS- CSOK igénybe vehető nem
- Tetőtér beépíthető nem
- Építés éve 1960
- Fűtés Házközponti
- Klíma nem
- Szigetelt nem
A+++
A++
A+
A
B
C
D
E
F
G
H
I
Az ingatlan leírása
Eladásra kínálunk Békés vármegyében Kardos község külterületén egy családi házat szántóval.
Maga a nyugalom szigete, körben szántóföld, amerre a szem ellát, őzek, nyulak szaladgálnak. A földhivatali nyilvántartás szerint kivett lakóház, udvar, gazdasági épület 2003 m2-en, hozzá a szántó 3680 m2-en helyezkedik el. A szántó aranykorona értéke 16,63.
A ház 60 cm-es vályog falazatú, amihez a folyosót kiszélesítve hozzáépítettek. Az új rész tégla és beton építésű. Egyedül ezen a folyosón van metlaki, a ház többi része betonozott. Összkomfortos, van fürdőszobája, ahol fatüzelésű meleg víz tároló van, ugyanitt helyezték el a vegyes tüzelésű kazánt, ami központi fűtésként látja el az egész családi ház fűtését radiátoros hőleadással.
A tető kb. 2019-ben lett felújítva. Víz fúrt kútról van, ami 54 m mély, ez a víz került bevezetésre a házba is.
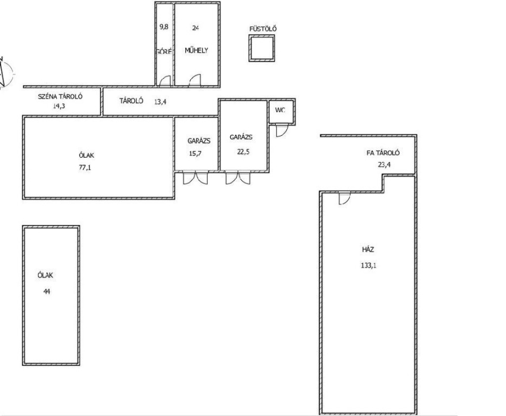
Csatorna hálózat ezen a környéken nincs, így a szennyvíz szabályszerűen szennyvíz gödörbe (derítő) van elvezetve a házból. A ház felújítása elkezdődött, de az új tulajdonos feladata lesz azt befejezni. Az igazán szép nagy 133 m2-es családi ház jelenleg 3 szobás, de akár további 2 is kialakítható. Mellette egy fatároló van, ami 23,4 m2.
Az ingatlan adottságai mellett nagyon fontos megemlíteni, hogy állattartásra kifejezetten kialakított az udvar. Rengeteg kisebb ól (44 m2) szárnyasoknak, nagyobb ólak (77 m2) disznó, marha, akár lovak tartására is. Szénatároló (14 m2), góré (10 m2), műhely (24 m2), 2 zárt garázs is, az egyik 15,6 m2, a másik pedig 22,5 m2. Disznó vágáshoz eszközök, még füstölő helyiség is van. Tökéletes hely elvonulni a nyüzsgéstől, aki szeretne egy önellátó életet elkezdeni, vagy csak szeretne állatokat tartani.
Hitel és CSOK nem igényelhető az ingatlanra, ezért csak készpénzes vásárlóknak ajánljuk. Az OTP Ingatlanpont a banki háttérrel eladóink, és vevőink igényeit teljes körűen ki tudja szolgálni, az eladástól a vevői finanszírozásig. Hitel igénylés esetén akár egyedi kamatkedvezménnyel, jogosultság esetén az állami támogatásokhoz kapcsolódó felvilágosítással, teljeskörű pénzügyi tanácsadással és ügyintézéssel állunk ügyfeleink rendelkezésére. A pénzügyi tanácsadás és ügyintézői szolgáltatásunk díjmentes. Irodáink Szentes, Petőfi utca 12. A buszmegálló felől, és Csongrád, Fő utca 54. szám alatt várja a személyes érdeklődőket. ***VÁLASSZUK KI EGYÜTT AZ ÖNNEK LEGMEGFELELŐBB AJÁNLATOT! BANKI SORBAN ÁLLÁS NÉLKÜL! ***
Maga a nyugalom szigete, körben szántóföld, amerre a szem ellát, őzek, nyulak szaladgálnak. A földhivatali nyilvántartás szerint kivett lakóház, udvar, gazdasági épület 2003 m2-en, hozzá a szántó 3680 m2-en helyezkedik el. A szántó aranykorona értéke 16,63.
A ház 60 cm-es vályog falazatú, amihez a folyosót kiszélesítve hozzáépítettek. Az új rész tégla és beton építésű. Egyedül ezen a folyosón van metlaki, a ház többi része betonozott. Összkomfortos, van fürdőszobája, ahol fatüzelésű meleg víz tároló van, ugyanitt helyezték el a vegyes tüzelésű kazánt, ami központi fűtésként látja el az egész családi ház fűtését radiátoros hőleadással.
A tető kb. 2019-ben lett felújítva. Víz fúrt kútról van, ami 54 m mély, ez a víz került bevezetésre a házba is.
Csatorna hálózat ezen a környéken nincs, így a szennyvíz szabályszerűen szennyvíz gödörbe (derítő) van elvezetve a házból. A ház felújítása elkezdődött, de az új tulajdonos feladata lesz azt befejezni. Az igazán szép nagy 133 m2-es családi ház jelenleg 3 szobás, de akár további 2 is kialakítható. Mellette egy fatároló van, ami 23,4 m2.
Az ingatlan adottságai mellett nagyon fontos megemlíteni, hogy állattartásra kifejezetten kialakított az udvar. Rengeteg kisebb ól (44 m2) szárnyasoknak, nagyobb ólak (77 m2) disznó, marha, akár lovak tartására is. Szénatároló (14 m2), góré (10 m2), műhely (24 m2), 2 zárt garázs is, az egyik 15,6 m2, a másik pedig 22,5 m2. Disznó vágáshoz eszközök, még füstölő helyiség is van. Tökéletes hely elvonulni a nyüzsgéstől, aki szeretne egy önellátó életet elkezdeni, vagy csak szeretne állatokat tartani.
Hitel és CSOK nem igényelhető az ingatlanra, ezért csak készpénzes vásárlóknak ajánljuk. Az OTP Ingatlanpont a banki háttérrel eladóink, és vevőink igényeit teljes körűen ki tudja szolgálni, az eladástól a vevői finanszírozásig. Hitel igénylés esetén akár egyedi kamatkedvezménnyel, jogosultság esetén az állami támogatásokhoz kapcsolódó felvilágosítással, teljeskörű pénzügyi tanácsadással és ügyintézéssel állunk ügyfeleink rendelkezésére. A pénzügyi tanácsadás és ügyintézői szolgáltatásunk díjmentes. Irodáink Szentes, Petőfi utca 12. A buszmegálló felől, és Csongrád, Fő utca 54. szám alatt várja a személyes érdeklődőket. ***VÁLASSZUK KI EGYÜTT AZ ÖNNEK LEGMEGFELELŐBB AJÁNLATOT! BANKI SORBAN ÁLLÁS NÉLKÜL! ***