Eladó Ház- házrész
Hirdetéskód: 9238208
Velence Tópart utca 47 - OTP Ingatlanpont Iroda
100 m2
ALAPTERÜLET3
SZOBASZÁMnincs megadva
ÉPÍTÉSElektromos
FŰTÉS- CSOK igénybe vehető nem
- Tetőtér beépíthető nem
- Építés éve 2026
- Fűtés Elektromos
- Klíma nem
- Szigetelt nem
A+++
A++
A+
A
B
C
D
E
F
G
H
I
Az ingatlan leírása
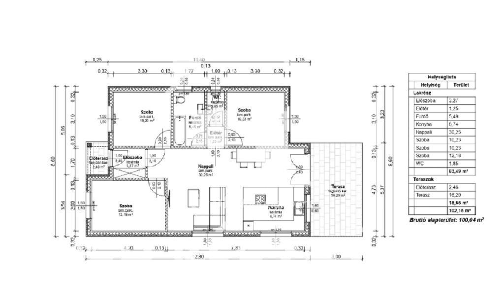
Eladó Kápolnásnyéken egy új építésű, modern 100 nm-es családi ház egy 750 nm-es telken!
Az ingatlan kiváló elrendezésének köszönhetően kényelmes életteret biztosít: három ideális méretű hálószoba, világos amerikai konyhás nappali, külön WC, valamint egy fürdőszoba az ingatlan beosztása. A házhoz továbbá egy 18 nm-es terasz is kapcsolódik, amely tökéletes helyszín lehet a pihenéshez vagy baráti összejövetelekhez.
A fűtés korszerű elektromos rendszerrel megoldott, a parkolás pedig a telken belül több autó számára is kényelmesen biztosított.
Ha szeretne egy modern, jól megtervezett otthont Kápolnásnyék kedvelt részén, ne habozzon kapcsolatba lépni velem! Akár hétvégén is elérhető vagyok.
Ügyfeleink részére díjmentesen biztosítunk előzetes hitelbírálatot, piaci hitelek esetén egyedi kamatot, valamint teljes körű ügyintézést egészen a birtokbaadásig!
74000000 Ft
Az ingatlan kiváló elrendezésének köszönhetően kényelmes életteret biztosít: három ideális méretű hálószoba, világos amerikai konyhás nappali, külön WC, valamint egy fürdőszoba az ingatlan beosztása. A házhoz továbbá egy 18 nm-es terasz is kapcsolódik, amely tökéletes helyszín lehet a pihenéshez vagy baráti összejövetelekhez.
A fűtés korszerű elektromos rendszerrel megoldott, a parkolás pedig a telken belül több autó számára is kényelmesen biztosított.
Ha szeretne egy modern, jól megtervezett otthont Kápolnásnyék kedvelt részén, ne habozzon kapcsolatba lépni velem! Akár hétvégén is elérhető vagyok.
Ügyfeleink részére díjmentesen biztosítunk előzetes hitelbírálatot, piaci hitelek esetén egyedi kamatot, valamint teljes körű ügyintézést egészen a birtokbaadásig!
74000000 Ft