Eladó Ház- házrész
Hirdetéskód: 9259982
Eger Kertész utca 25 - OTP Ingatlanpont Iroda
110.00 m2
ALAPTERÜLET4
SZOBASZÁMnincs megadva
ÉPÍTÉSnincs megadva
FŰTÉS- CSOK igénybe vehető nem
- Tetőtér beépíthető nem
- Építés éve 1975
- Klíma nem
- Szigetelt nem
A+++
A++
A+
A
B
C
D
E
F
G
H
I
Az ingatlan leírása
Heves vármegye, Kál 110 m2-es családi ház eladó.
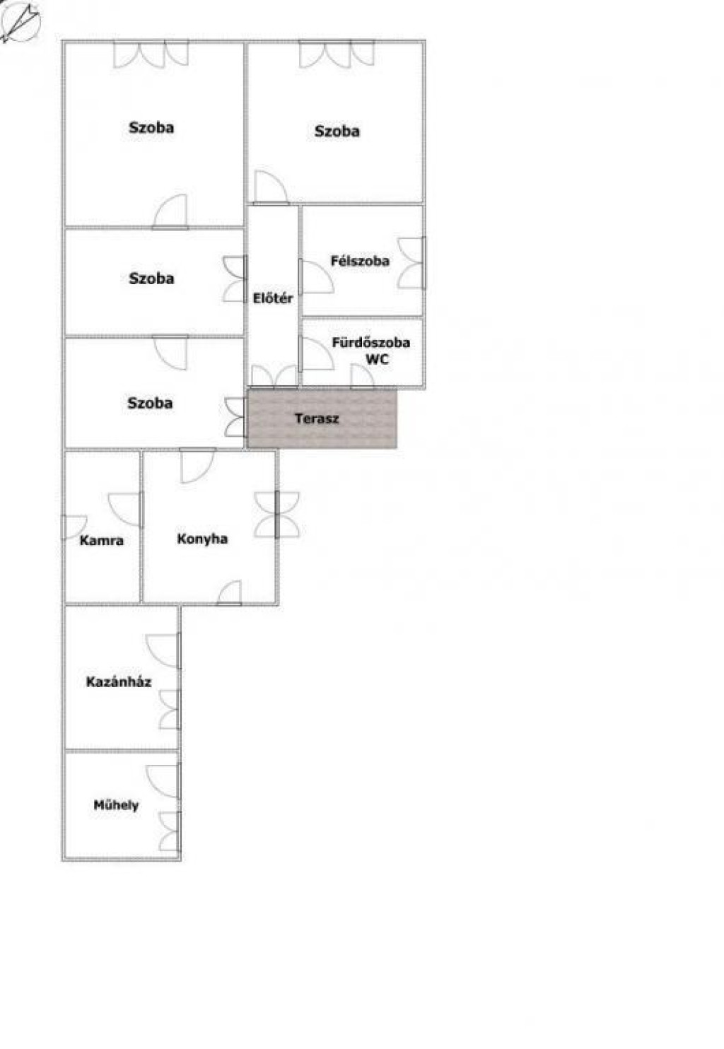
Az ingatlan Egertől 30 km-re a Füzesabonyi járásban, az Alföld és a Mátra találkozásánál a Tarna-patak völgyében keletkezett település egyik csendes mellékutcájában található; 1571 m2 alapterületű telek, gazdasági melléképületek, gyümölcsfákkal beültetett - gyűrűskútról öntözhető - hangulatos kert tartozik hozzá. A portára épült eredeti vályog falazatú házat 1975-ben szilikát szerkezetű résszel bővítették; cseréppel fedett tetőszerkezete jó állapotú. A Kádár-kocka jellegű ház L alakban nyúlik az udvar irányába befelé, két bejárati ajtóval rendelkezik, a főbejárat előtt 9 m2-es kertre néző fedett teraszt alakítottak ki. A jó elrendezésű lakóépület tágas helyiségei jól elkülönülnek egymástól: 4 szoba, 1 félszoba, 1 konyha, 1 kamra, 1 fürdőszoba-WC, 1 előtér tartozik hozzá. A ház belső terei alapvetően felújításra szorulnak: a burkolatok (járólap, parketta, gyantázott furnérlap, PVC, hajópadló), és a fából készült nyílászárók anyaga elöregedett. Az ablakokat, és a bejárati ajtót redőny védi. A fűtésről a gázkazán mellett vegyestüzelésű kazán gondoskodik radiátoros rendszeren keresztül, alternatív megoldás gyanánt kályhát helyeztek az egyik szobába; a meleg vizet villanybojler adja. A házba a szennyvízelvezetés kivételével az összes közművet bekötötték, a csatornacsatlakozás a telken belül elérhető. Némi ráfordítással az ingatlanból kellemes életkörülményeket, nyugodt családi életet biztosító otthon varázsolható.
Amennyiben felkeltette érdeklődését az ingatlan, jöjjön el, és győződjön meg személyesen is a leírtakról! Ingatlanirodánk ügyvédi háttérrel, CSOK, babaváró hitel, valamint kamatkedvezményes hitel ügyintézésével támogatja ügyfelei ingatlanvásárlását! Kérem érdeklődéskor hivatkozzon az M305336 számra.
Otthon Start Hitelprogram
Az ingatlan Egertől 30 km-re a Füzesabonyi járásban, az Alföld és a Mátra találkozásánál a Tarna-patak völgyében keletkezett település egyik csendes mellékutcájában található; 1571 m2 alapterületű telek, gazdasági melléképületek, gyümölcsfákkal beültetett - gyűrűskútról öntözhető - hangulatos kert tartozik hozzá. A portára épült eredeti vályog falazatú házat 1975-ben szilikát szerkezetű résszel bővítették; cseréppel fedett tetőszerkezete jó állapotú. A Kádár-kocka jellegű ház L alakban nyúlik az udvar irányába befelé, két bejárati ajtóval rendelkezik, a főbejárat előtt 9 m2-es kertre néző fedett teraszt alakítottak ki. A jó elrendezésű lakóépület tágas helyiségei jól elkülönülnek egymástól: 4 szoba, 1 félszoba, 1 konyha, 1 kamra, 1 fürdőszoba-WC, 1 előtér tartozik hozzá. A ház belső terei alapvetően felújításra szorulnak: a burkolatok (járólap, parketta, gyantázott furnérlap, PVC, hajópadló), és a fából készült nyílászárók anyaga elöregedett. Az ablakokat, és a bejárati ajtót redőny védi. A fűtésről a gázkazán mellett vegyestüzelésű kazán gondoskodik radiátoros rendszeren keresztül, alternatív megoldás gyanánt kályhát helyeztek az egyik szobába; a meleg vizet villanybojler adja. A házba a szennyvízelvezetés kivételével az összes közművet bekötötték, a csatornacsatlakozás a telken belül elérhető. Némi ráfordítással az ingatlanból kellemes életkörülményeket, nyugodt családi életet biztosító otthon varázsolható.
Amennyiben felkeltette érdeklődését az ingatlan, jöjjön el, és győződjön meg személyesen is a leírtakról! Ingatlanirodánk ügyvédi háttérrel, CSOK, babaváró hitel, valamint kamatkedvezményes hitel ügyintézésével támogatja ügyfelei ingatlanvásárlását! Kérem érdeklődéskor hivatkozzon az M305336 számra.
Otthon Start Hitelprogram