Eladó Ház- házrész
Hirdetéskód: 9286847
Nagy Ingatlan
Felújításhoz személyi kölcsönt keres? Kalkuláljon itt! →
Ez a hirdetés megfelelhet a FIX 3%-os programnak.
Tudj meg többet a részletekről itt.
90.00 m2
ALAPTERÜLET4
SZOBASZÁMnincs megadva
ÉPÍTÉSGáz (cirkó)
FŰTÉS- CSOK igénybe vehető nem
- Tetőtér beépíthető nem
- Fűtés Gáz (cirkó)
- Klíma nem
- Szigetelt nem
A+++
A++
A+
A
B
C
D
E
F
G
H
I
Az ingatlan leírása
◉ Modern, energiatakarékos új építésű ikerház eladó – Budapesttől karnyújtásnyira! ◉
Szeretne a főváros közelében élni, mégis nyugodt, kertvárosi környezetben, alacsony rezsivel? Ez a nettó 90,31 m²-es, 3 hálószobás ikerház ideális választás mindazok számára, akik a minőségi kivitelezést, az átgondolt elrendezést és a saját kert nyújtotta szabadságot keresik.
Az ingatlan a hátsó telken található szomszédos házzal egy 15 méter hosszú, félig fedett tárolón keresztül kapcsolódik. A két lakóegység külön helyrajzi számon szerepel, így jogilag teljesen rendezett, önálló ingatlanként funkcionál.
◉ Kiváló elhelyezkedés – közel a városhoz, távol a nyüzsgéstől ◉
◉ Átgondolt belső elrendezés – élhető, jól kihasználható terek ◉
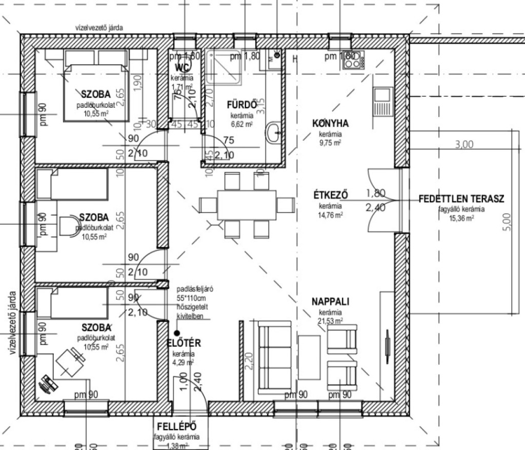
➡ Nappali: 21,53 m²
➡ Étkező: 14,76 m²
➡ Konyha: 9,75 m²
➡ 3 különnyíló hálószoba: egyenként 10,55 m²
➡ Fürdőszoba: 6,62 m²
➡ Előtér: 4,29 m²
➡ Külön WC: 1,71 m²
Kültér:
➡ 24,36 m²-es, UV-szűrős polikarbonáttal fedett terasz
➡ 6 m²-es szigetelt kamra
➡ 4,5 m²-es szerszámtároló
Mert a ház nem ér véget a falaknál.
◉ A kert – az önfenntartás és a pihenés tere ◉
A 450 m²-es, teljesen kiépített telek gondosan megtervezett, ugyanakkor teret hagy az új tulajdonos elképzeléseinek is.
➡ Előkészített magaságyások és üvegház a saját termesztéshez
➡ Összesen 2350 liter vízgyűjtő kapacitás (1000 literes tartály szivattyúval)
➡ A felesleges csapadékvíz elvezetése szikkasztó blokkokkal megoldott
➡ 48 m²-es murvázott gépkocsibeálló, ahol két autó kényelmesen elfér
◉ Kiemelkedő műszaki tartalom és energiatudatos megoldások ◉
➡ 10 cm homlokzati és lépésálló lábazati szigetelés
➡ 30 cm ásványgyapot födémszigetelés
➡ 3 rétegű, 6 kamrás prémium nyílászárók
➡ Kondenzációs kazán: Ariston
– Padlófűtés a közös terekben
– Radiátorok a hálószobákban
➡ Wifi-s hővisszanyerős szellőztető rendszer
➡ A++ Fisher hűtő-fűtő klíma
Előkészített jövő:
➡ 3 fázisú elektromos kiállás napelemes rendszer inverterének fogadására
➡ Ethernet- és koaxiális csatlakozás minden szobában
➡ Kamerás kaputelefon: Hikvision
➡ Elektromos kapu távnyitással és rádióvezérlésű autókapu
Az ingatlan teljes építési dokumentációja – a vezetékek elhelyezkedését bemutató fotókkal együtt – rendelkezésre áll, így a műszaki állapot teljes mértékben transzparens.
Az ingatlan a község központjában található, környezetében fiatalos, modern lakóházak és 300 m távolságra a közvetlen természet. Bölcsőde, óvoda, iskola gyalog 5 perc.
A községben minden megtalálható ami a hétköznapi élethez nélkülözhetetlen:
Önkormányzat ( Polgárőrség szigorúan üzemel) bölcsödék, óvoda iskola, orvosi rendelők, gyógyszertár, számos bolt.
A környéken számos a lehetőség wellness és szabadidős tevékenységhez , kúriák, udvarházak, lovardák, autó-motor pálya rendezvényekkel ( Kakucs Ring)
Budapestre jutás tömegközlekedéssel a félóránként induló, Népligetig közlekedő Volánbusz járattal lehetséges, továbbá a szomszéd településen áthaladó vasúttal is megközelíthető.
Budapest autóval az M5-ösön 30–40 perc alatt elérhető.
Legközelebbi város Dabas, Kakucstól 10 percre, ahol minden megtalálható, szolgáltatók (Bankok, Földhivatal, Kormányablak, NAV, Bíróság, Rendőrség, Gimnázium, Szakiskola) továbbá a bevásárlásokat is helyben lehet intézni ( Lidl,Tesco, Aldi, Spar, Pepco, rengeteg kis üzlet, havonta kirakodóvásár).
Irodánk teljes körű INGYENES hitelügyintézést vállal az ország összes bankjával! Kulcsátadásig követjük az ügymenetet. Szerződéskötéshez, és bármilyen jogi kérdésben saját ügyvédeink állnak rendelkezésre !
Ha megtekintené keressen akár hétvégén is!
Szeretne a főváros közelében élni, mégis nyugodt, kertvárosi környezetben, alacsony rezsivel? Ez a nettó 90,31 m²-es, 3 hálószobás ikerház ideális választás mindazok számára, akik a minőségi kivitelezést, az átgondolt elrendezést és a saját kert nyújtotta szabadságot keresik.
Az ingatlan a hátsó telken található szomszédos házzal egy 15 méter hosszú, félig fedett tárolón keresztül kapcsolódik. A két lakóegység külön helyrajzi számon szerepel, így jogilag teljesen rendezett, önálló ingatlanként funkcionál.
◉ Kiváló elhelyezkedés – közel a városhoz, távol a nyüzsgéstől ◉
◉ Átgondolt belső elrendezés – élhető, jól kihasználható terek ◉
➡ Nappali: 21,53 m²
➡ Étkező: 14,76 m²
➡ Konyha: 9,75 m²
➡ 3 különnyíló hálószoba: egyenként 10,55 m²
➡ Fürdőszoba: 6,62 m²
➡ Előtér: 4,29 m²
➡ Külön WC: 1,71 m²
Kültér:
➡ 24,36 m²-es, UV-szűrős polikarbonáttal fedett terasz
➡ 6 m²-es szigetelt kamra
➡ 4,5 m²-es szerszámtároló
Mert a ház nem ér véget a falaknál.
◉ A kert – az önfenntartás és a pihenés tere ◉
A 450 m²-es, teljesen kiépített telek gondosan megtervezett, ugyanakkor teret hagy az új tulajdonos elképzeléseinek is.
➡ Előkészített magaságyások és üvegház a saját termesztéshez
➡ Összesen 2350 liter vízgyűjtő kapacitás (1000 literes tartály szivattyúval)
➡ A felesleges csapadékvíz elvezetése szikkasztó blokkokkal megoldott
➡ 48 m²-es murvázott gépkocsibeálló, ahol két autó kényelmesen elfér
◉ Kiemelkedő műszaki tartalom és energiatudatos megoldások ◉
➡ 10 cm homlokzati és lépésálló lábazati szigetelés
➡ 30 cm ásványgyapot födémszigetelés
➡ 3 rétegű, 6 kamrás prémium nyílászárók
➡ Kondenzációs kazán: Ariston
– Padlófűtés a közös terekben
– Radiátorok a hálószobákban
➡ Wifi-s hővisszanyerős szellőztető rendszer
➡ A++ Fisher hűtő-fűtő klíma
Előkészített jövő:
➡ 3 fázisú elektromos kiállás napelemes rendszer inverterének fogadására
➡ Ethernet- és koaxiális csatlakozás minden szobában
➡ Kamerás kaputelefon: Hikvision
➡ Elektromos kapu távnyitással és rádióvezérlésű autókapu
Az ingatlan teljes építési dokumentációja – a vezetékek elhelyezkedését bemutató fotókkal együtt – rendelkezésre áll, így a műszaki állapot teljes mértékben transzparens.
Az ingatlan a község központjában található, környezetében fiatalos, modern lakóházak és 300 m távolságra a közvetlen természet. Bölcsőde, óvoda, iskola gyalog 5 perc.
A községben minden megtalálható ami a hétköznapi élethez nélkülözhetetlen:
Önkormányzat ( Polgárőrség szigorúan üzemel) bölcsödék, óvoda iskola, orvosi rendelők, gyógyszertár, számos bolt.
A környéken számos a lehetőség wellness és szabadidős tevékenységhez , kúriák, udvarházak, lovardák, autó-motor pálya rendezvényekkel ( Kakucs Ring)
Budapestre jutás tömegközlekedéssel a félóránként induló, Népligetig közlekedő Volánbusz járattal lehetséges, továbbá a szomszéd településen áthaladó vasúttal is megközelíthető.
Budapest autóval az M5-ösön 30–40 perc alatt elérhető.
Legközelebbi város Dabas, Kakucstól 10 percre, ahol minden megtalálható, szolgáltatók (Bankok, Földhivatal, Kormányablak, NAV, Bíróság, Rendőrség, Gimnázium, Szakiskola) továbbá a bevásárlásokat is helyben lehet intézni ( Lidl,Tesco, Aldi, Spar, Pepco, rengeteg kis üzlet, havonta kirakodóvásár).
Irodánk teljes körű INGYENES hitelügyintézést vállal az ország összes bankjával! Kulcsátadásig követjük az ügymenetet. Szerződéskötéshez, és bármilyen jogi kérdésben saját ügyvédeink állnak rendelkezésre !
Ha megtekintené keressen akár hétvégén is!